Вы здесь
Двери ДУ для вентиляционных камер
Двери типа ДУ предназначены для установки в вентиляционных камерах, в составе центральных кондиционеров, а также в вентиляционных каналах. Они обеспечивают удобный доступ к оборудованию и служат для герметичного закрытия технических проёмов.
Конструкция и особенности
Конструкция дверей включает оцинкованный стальной корпус и слой теплоизоляции. В качестве утеплителя используется пенополистирол толщиной 32 мм, что обеспечивает надёжную защиту от теплопотерь. Монтаж дверей осуществляется механическим способом непосредственно на месте установки.
Нормативная документация
Изготовление дверей ДУ производится в соответствии с техническими условиями ТУ 4863-084-11865045-2011.
Условия эксплуатации
Двери предназначены для использования в климатических зонах с умеренными условиями (категория размещения 3) и в районах с умеренно холодным климатом (категории размещения 3 и 4) согласно требованиям ГОСТ 15150.
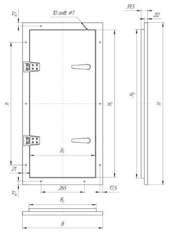
Габаритные размеры ДУ
Обозначение | Н | Н1 | Н2 | В | В1 | В2 | h | Масса, кг |
ДУ 0,9 х 0,4 | 990 | 906 | 910 | 490 | 406 | 410 | 750 | 13,7 |
ДУ 1,25 х 0,5 | 1340 | 1256 | 1260 | 590 | 506 | 510 | 1035 | 20,6 |
Условное обозначение
Пример обозначения при заказе
- ДУ 0,9х0,4-У3 – дверь утепленная для вентиляционной камеры с сечением 900х400 мм для районов с умеренным климатом 3-й категории размещения.