Вы здесь
Жироуловитель под мойку Alta M-In 1.5-150
Жироуловитель под мойку Alta M-In 1.5-150 предназначен для эффективной очистки сточных вод от жиров растительного и животного происхождения. Он используется на кухнях предприятий общественного питания: в кафе, столовых и ресторанах.
Компактное устройство устанавливается непосредственно под мойкой, перед попаданием стоков в канализацию, обеспечивая надежную защиту канализационных трубопроводов от жировых отложений и засоров.
Оборудование изготовлено из пищевого пластика и имеет все необходимые разрешения для эксплуатации. Жироуловитель соответствует санитарно-эпидемиологическому заключению №77.01.03.485.П.014961.03.10 от 16.03.2010 года, что позволяет производить его монтаж непосредственно в помещениях кухонь.
Ключевые преимущества модели
- Современные инновации в конструкции повышают эффективность очистки стоков.
- Продуманная конструкция обеспечивает удобный доступ к накопителю жиров.
- Компактные размеры и простота конструкции снижают затраты на монтаж и установку.
- Гарантийный срок эксплуатации — 5 лет.
- Использование современных полимерных материалов обеспечивает срок службы более 50 лет.
Автоматизация контроля с датчиком Alta Sensor
Для автоматического контроля и своевременного оповещения о необходимости обслуживания жироуловителя рекомендуется использовать универсальный сигнализатор уровня Alta Alarm в комплекте с датчиками Alta Sensor. Данный комплект сигнализации поставляется опционально и обеспечивает надежное предупреждение о критическом уровне скопления жира или воды в устройстве.
Система сигнализации отличается простотой монтажа и эксплуатации. Она оснащена локальной световой индикацией на корпусе, а также возможностью подключения внешних устройств для дистанционной передачи данных и оповещения. Это обеспечивает максимально удобный и непрерывный контроль за работой жироуловителя, предотвращая аварийные ситуации.

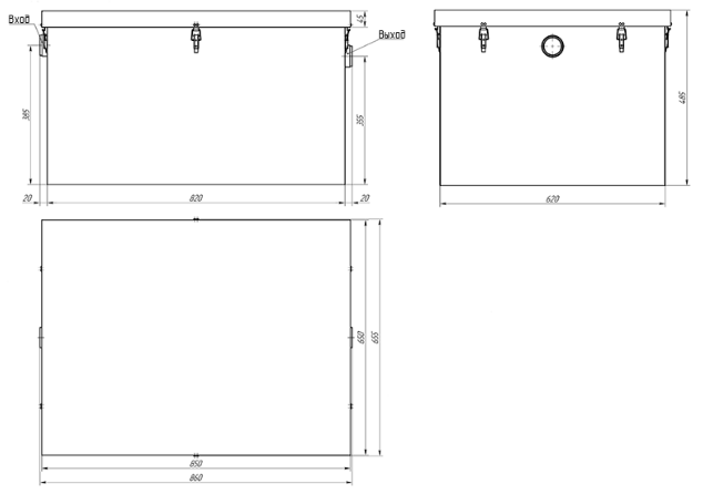
Габаритные размеры Alta M-In 1.5-150

Технические характеристики Alta M-In 1.5-150
| Производительность, л/сек | 0,42 |
| Производительность, м³/час | 1,5 |
| Макс. залповый сброс, л/час | 150 |
| Транспортировочный вес, кг | 52 |
| Габариты (Длина х Ширина х Высота), мм | 860х655х485 |
| Высота до вх/вых патрубка, мм | 360/330 |
| Диаметр патрубков, мм | 50 |



