Вы здесь
Преобразователь частоты FXDM18
Частотный преобразователь FXDM18 предназначен для регулирования температуры или давления в вентиляционных каналах систем климат-контроля.
Устройство поддерживает как автоматический режим работы с двумя предустановленными программами, так и ручное управление параметрами.
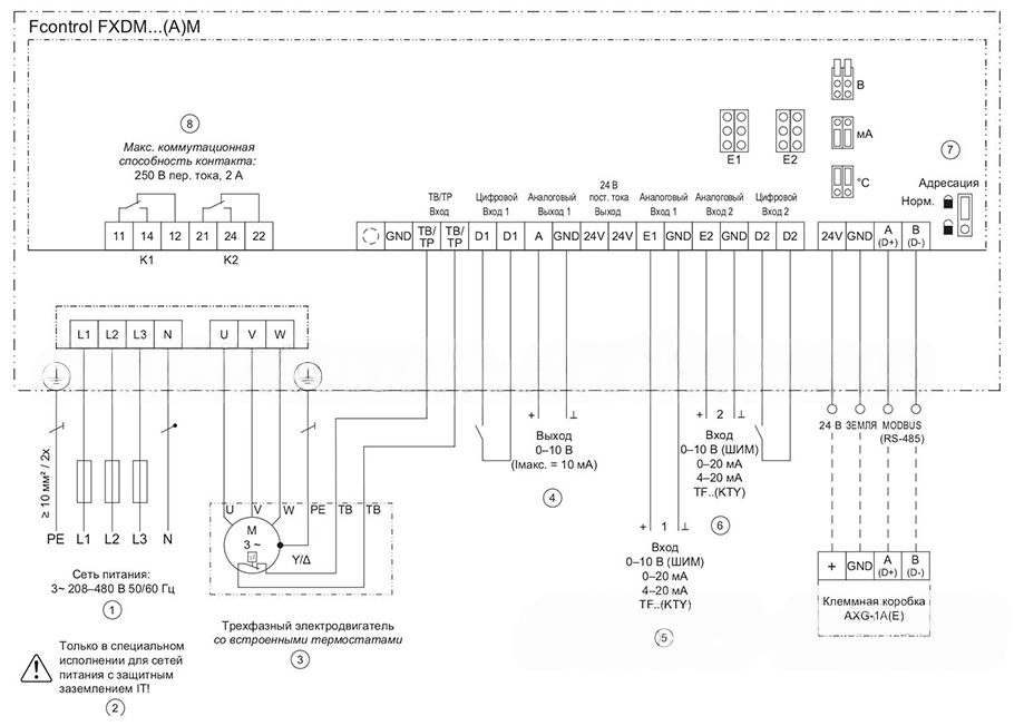
FXDM18 оснащён четырьмя входами — двумя аналоговыми и двумя цифровыми, одним стандартным выходом 0–10 В и двумя релейными переключателями.
Встроенный синусоидальный фильтр снижает помехи, а возможность выбора одного из трёх скоростных режимов и установки верхнего и нижнего порогов позволяет точно настраивать работу оборудования.
Устройство может одновременно управлять несколькими электродвигателями. Для удобства настройки предусмотрен дисплей с многоязычным интерфейсом.
Степень защиты корпуса — IP54. Номинальный ток — 18 А.
Технические характеристики FXDM18
FXDM | 5 | 8 | 13 | 18 |
Артикул | 31387 | 31388 | 31389 | 31390 |
Напряжение | 208...480 | 208...480 | 208...480 | 208...480 |
Фаза | 3 | 3 | 3 | 3 |
Частота | 50/60 | 50/60 | 50/60 | 50/60 |
Макс. ток | 5 | 8 | 14 | 18 |
Рекомендуемый предохранитель макс. A | 10 | 10 | 20 | 20 |
Температура окружающей среды | 40 | 40 | 40 | 40 |
Класс защиты | 54 | 54 | 54 | 54 |
Вес | 7.2 | 7.9 | 8.7 | 14.2 |
Ширина | 252 | 252 | 252 | 252 |
Высота | 302 | 302 | 302 | 302 |
Глубина | 195.5 | 195.5 | 195.5 | 195.5 |