Вы здесь
Кран шаровый фланцевый КШ.Ф ALSO BV M
Фланцевые стальные шаровые краны ALSO с измерительным блоком относятся к запорной трубопроводной арматуре промышленного назначения.
Предназначены для монтажа в трубопроводах для транспортировки нефти и газа, системах тепловодоснабжения, различных системах, могут устанавливаться на трубопровод в произвольном положении.
Основные применяемые стали
- Ст. 20, подвижные части ст. 20Х13 (обычное исполнение);
- Ст. 09Г2С, подвижные части ст. 20Х13 (хладостойкое исполнение);
- Ст. 12Х18Н10Т (коррозионностойкое исполнение).
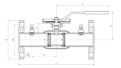
Габаритно-присоединительные размеры

| Ду | PN | Каталожное обозначение | D | D1 | D2 | n | d | l | L | L1 | h | H | Вес.кг |
| 20 | 40 | КШ.Ф.BV.М.020.40-01 | 105 | 75 | 14 | 4 | 15 | 150 | 250 | 65 | 18 | 72 | 2.8 |
| 25 | 40 | КШ.Ф.BV.М.025.40-01 | 115 | 85 | 14 | 4 | 18 | 150 | 240 | 65 | 18 | 76 | 3.3 |
| 32 | 40 | КШ.Ф.BV.М.032.40-01 | 135 | 100 | 18 | 4 | 24 | 150 | 280 | 80 | 18 | 80 | 4.1 |
| 40 | 40 | КШ.Ф.BV.М.040.40-01 | 145 | 110 | 18 | 4 | 30 | 220 | 270 | 80 | 34 | 105 | 5.3 |
| 50 | 40 | КШ.Ф.BV.М.050.40-01 | 160 | 125 | 18 | 4 | 40 | 220 | 310 | 100 | 41 | 114 | 7 |
| 65 | 16 | КШ.Ф.BV.М.065.16-01 | 180 | 145 | 18 | 4 | 48 | 220 | 310 | 110 | 36 | 119 | 9.8 |
| 65 | 25 | КШ.Ф.BV.М.065.25-01 | 180 | 145 | 18 | 8 | 48 | 220 | 310 | 110 | 36 | 119 | 10.7 |
| 80 | 16 | КШ.Ф.BV.М.080.16-01 | 195 | 160 | 18 | 4 | 63 | 295 | 310 | 110 | 58 | 152 | 12.6 |
| 80 | 25 | КШ.Ф.BV.М.080.25-01 | 195 | 160 | 18 | 8 | 63 | 295 | 310 | 110 | 58 | 152 | 14.4 |
| 100 | 16 | КШ.Ф.BV.М.100.16-01 | 215 | 180 | 18 | 8 | 75 | 295 | 350 | 122.5 | 58 | 162 | 16.8 |
| 100 | 25 | КШ.Ф.BV.М.100.25-01 | 230 | 190 | 22 | 8 | 75 | 295 | 350 | 122.5 | 58 | 162 | 18.8 |
| 125* | 16 | КШ.Ф.BV.М.125.16-01 | 245 | 210 | 18 | 8 | 100 | 514 | 360 | 137.5 | 94 | 193 | 25.6 |
| 125* | 25 | КШ.Ф.BV.М.125.25-01 | 270 | 220 | 26 | 8 | 100 | 514 | 360 | 137.5 | 94 | 193 | 30.6 |
| 150* | 16 | КШ.Ф.BV.М.150.16-01 | 280 | 240 | 22 | 8 | 125 | 514 | 390 | 150 | 98 | 210 | 34.1 |
| 150* | 25 | КШ.Ф.BV.М.150.25-01 | 300 | 250 | 26 | 8 | 125 | 514 | 390 | 150 | 98 | 210 | 38.8 |
* Редуктор в комплекте
Таблица регулировки
| Значение положения | DN20 | DN25 | DN32 | DN40 | DN50 | DN65 | DN80 | DN100 | DN125 | DN150 |
| 9 | 6.25 | 8.55 | 14.20 | 26.50 | 57.30 | 71.10 | 138.40 | 192.40 | 349.60 | 527.40 |
| 8 | 5.17 | 7.08 | 11.81 | 21.00 | 43.10 | 56.70 | 111.80 | 155.60 | 281.90 | 424.30 |
| 7 | 4.09 | 5.55 | 9.42 | 15.50 | 35.00 | 42.20 | 85.30 | 118.80 | 214.90 | 322.10 |
| 6 | 3.07 | 4.17 | 7.18 | 10.20 | 24.60 | 28.60 | 59.90 | 83.60 | 151.30 | 224.80 |
| 5 | 2.11 | 2.90 | 5.09 | 6.90 | 15.30 | 19.40 | 37.30 | 53.60 | 95.90 | 146.30 |
| 4 | 1.32 | 1.83 | 3.31 | 5.00 | 10.10 | 13.40 | 25.30 | 37.50 | 67.90 | 104.40 |
| 3 | 0.71 | 0.97 | 1.88 | 3.30 | 6.40 | 8.50 | 16.30 | 24.40 | 44.30 | 69.80 |
| 2 | 0.23 | 0.36 | 0.81 | 2.00 | 3.50 | 4.60 | 9.10 | 13.90 | 25.60 | 42.00 |
| 1 | - | - | 0.15 | 0.80 | 1.20 | 1.70 | 3.70 | 5.90 | 11.20 | 20.90 |
Таблца обозначения шаровых кранов ALSO




