Вы здесь
Кран шаровый фланцевый КШ.Ф.П.ALSO
Фланцевые полнопроходные стальные шаровые краны ALSO относятся к запорной трубопроводной арматуре промышленного назначения.
Предназначены для монтажа в трубопроводах для транспортировки нефти и газа, системах тепловодоснабжения, различных системах, могут устанавливаться на трубопровод в произвольном положении.
Основные применяемые стали
- Ст. 20, подвижные части ст. 20Х13 (обычное исполнение);
- Ст. 09Г2С, подвижные части ст. 20Х13 (хладостойкое исполнение);
- Ст. 12Х18Н10Т (коррозионностойкое исполнение).
Модели универсальной серии
- КШ.Ф.П. DN 15-200 PN 16-40 фланец/фланец;
- КШ.Ф.П. DN 250-500 PN 16-25 под редуктор, фланец/фланец.
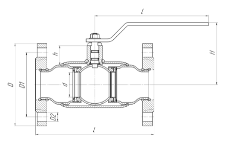
Габаритно-присоединительные размеры
DN | PN | Каталожное обозначение | d | D | D1 | D2 | n отв | h | Н | I | L | Вес.кг |
15 | 40 | КШ.Ф.П. 015.40-01 | 15 | 95 | 65 | 14 | 4 | 21 | 72 | 150 | 120 | 1.7 |
20 | 40 | КШ.Ф.П. 020.40-01 | 18 | 105 | 75 | 14 | 4 | 21 | 76 | 150 | 140 | 2.4 |
25 | 40 | КШ.Ф.П. 025.40-01 | 24 | 115 | 85 | 14 | 4 | 21 | 80 | 150 | 140 | 2.9 |
32 | 40 | КШ.Ф.П. 032.40-01 | 30 | 135 | 100 | 18 | 4 | 40 | 105 | 220 | 165 | 4.4 |
40 | 40 | КШ.Ф.П. 040.40-01 | 40 | 145 | 110 | 18 | 4 | 44 | 114 | 220 | 200 | 5.1 |
50 | 40 | КШ.Ф.П. 050.40-01 | 48 | 160 | 125 | 18 | 4 | 39 | 119 | 220 | 230 | 7.4 |
65 | 16 | КШ.Ф.П. 065.16-01 | 63 | 180 | 145 | 18 | 4 | 61 | 152 | 295 | 270 | 10.5 |
65 | 25 | КШ.Ф.П. 065.25-01 | 63 | 180 | 145 | 18 | 8 | 61 | 152 | 295 | 270 | 10.95 |
80 | 16 | КШ.Ф.П. 080.16-01 | 75 | 195 | 160 | 18 | 4 | 61 | 162 | 295 | 280 | 13.4 |
80 | 25 | КШ.Ф.П. 080.25-01 | 75 | 195 | 160 | 18 | 8 | 61 | 162 | 295 | 280 | 15.14 |
100 | 16 | КШ.Ф.П. 100.16-01 | 100 | 215 | 180 | 18 | 8 | 94 | 193 | 514 | 350 | 22.22 |
100 | 25 | КШ.Ф.П. 100.25-01 | 100 | 230 | 190 | 22 | 8 | 94 | 193 | 514 | 350 | 25.42 |
125 | 16 | КШ.Ф.П. 125.16-01 | 125 | 245 | 210 | 18 | 8 | 98 | 210 | 514 | 380 | 31.8 |
125 | 25 | КШ.Ф.П. 125.25-01 | 125 | 270 | 220 | 26 | 8 | 98 | 210 | 514 | 380 | 35.36 |
150* | 16 | КШ.Ф.П. 150.16-01 | 148 | 280 | 240 | 22 | 8 | 112 | 238 | 514 | 410 | 44.5 |
150* | 25 | КШ.Ф.П. 150.25-01 | 148 | 300 | 250 | 26 | 8 | 112 | 238 | 514 | 410 | 49.12 |
200* | 16 | КШ.Ф.П. 200.16-01 | 200 | 335 | 295 | 22 | 12 | 127 | 269 | 630 | 530 | 85.5 |
200* | 25 | КШ.Ф.П. 200.25-01 | 200 | 360 | 310 | 26 | 12 | 127 | 269 | 630 | 530 | 92.5 |
* Рекомендуется установка редуктора
DN | PN | Каталожное обозначение | d | D | D1 | D2 | n отв | h | Н | I | L | Вес.кг |
250** | 16 | КШ.Ф.П. 250.16-01 | 240 | 405 | 335 | 26 | 12 | 138 | 371 | - | 750 | 180 |
250** | 25 | КШ.Ф.П. 250.25-01 | 240 | 425 | 370 | 30 | 12 | 138 | 371 | - | 750 | 180 |
300** | 16 | КШ.Ф.П. 300.16-01 | 300 | 460 | 410 | 26 | 12 | 220 | 455 | - | 750 | 265 |
300** | 25 | КШ.Ф.П. 300.25-01 | 300 | 485 | 430 | 30 | 16 | 220 | 455 | - | 750 | 279 |
350** | 16 | КШ.Ф.П. 350.16-01 | 390 | 520 | 470 | 26 | 16 | 219 | 532 | - | 990 | 430 |
350** | 25 | КШ.Ф.П. 350.25-01 | 390 | 550 | 490 | 33 | 16 | 219 | 532 | - | 990 | 455 |
400** | 16 | КШ.Ф.П. 400.16-01 | 390 | 580 | 525 | 30 | 16 | 219 | 532 | - | 990 | 444 |
400** | 25 | КШ.Ф.П. 400.25-01 | 390 | 610 | 550 | 33 | 16 | 219 | 532 | - | 990 | 484 |
500** | 16 | КШ.Ф.П. 500.16-01 | 500 | 710 | 650 | 33 | 20 | 264 | 654 | - | 1017 | 1025 |
500** | 25 | КШ.Ф.П. 500.25-01 | 500 | 730 | 660 | 39 | 20 | 264 | 654 | - | 1017 | 1048 |
** В комплекте с механическим редуктором PRO GEAR/ROTORK