Вы здесь
Кран шаровый комбинированый КШ.К.ALSO RS
Шаровые редуцированные краны ALSO относятся к запорной трубопроводной арматуре промышленного назначения.
Эти шаровые краны предназначены для монтажа в трубопроводах для транспортировки нефти и газа, системах тепловодоснабжения, различных системах. Могут устанавливаться на трубопровод в произвольном положении.
Основные применяемые стали
- Ст. 20, подвижные части ст. 20Х13 (обычное исполнение);
- Ст. 09Г2С, подвижные части ст. 20Х13 (хладостойкое исполнение);
- Ст. 12Х18Н10Т (коррозионностойкое исполнение).
Модели серии RS
- КШ.К.RS DN 15-600 PN 16-40 фланец/приварка, муфта/приварка, фланец/муфта.
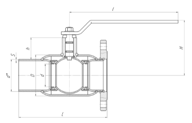
Габаритно-присоединительные размеры

| DN | PN | Каталожное обозначение | d | d* | S | D | H | h | I | L | Вес.кг |
| 15 | 40 | КШ.К.RS.015.40-02 | 10.5 | 22 | 3 | 32 | 66 | 20.5 | 150 | 170 | 1.3 |
| 20 | 40 | КШ.К.RS.020.40-02 | 15 | 27 | 3 | 42 | 72 | 21 | 150 | 190 | 1.6 |
| 25 | 40 | КШ.К.RS.025.40-02 | 18 | 32 | 3.5 | 48 | 76 | 21 | 150 | 195 | 2 |
| 32 | 40 | КШ.К.RS.032.40-02 | 24 | 42.3 | 3 | 57 | 80 | 21 | 150 | 220 | 2.55 |
| 40 | 40 | КШ.К.RS.040.40-02 | 30 | 48 | 4 | 60 | 105 | 40 | 220 | 230 | 3.6 |
| 50 | 40 | КШ.К.RS.050.40-02 | 40 | 57 | 3.5 | 76 | 114 | 44 | 220 | 265 | 4.4 |
| 65 | 25 | КШ.К.RS.065.25-02 | 48 | 76 | 4 | 89 | 119 | 39 | 220 | 315 | 6.25 |
| 80 | 25 | КШ.К.RS.080.25-02 | 63 | 89 | 4 | 114 | 152 | 61 | 295 | 325 | 8.45 |
| 100 | 25 | КШ.К.RS.100.25-02 | 75 | 108 | 5 | 133 | 162 | 61 | 295 | 345 | 11.65 |
| 125 | 25 | КШ.К.RS.125.25-02 | 100 | 133 | 5 | 180 | 193 | 94 | 514 | 358 | 19.4 |
| 150 | 25 | КШ.К.RS.150.25-02 | 125 | 159 | 6 | 219 | 210 | 98 | 514 | 370 | 26.5 |
| 200* | 25 | КШ.К.RS.200.16-02 | 148 | 219 | 8 | 273 | 238 | 93 | 514 | 415 | 45.85 |
| 250* | 25 | КШ.К.RS.250.25-02 | 200 | 273 | 8 | 351 | 269 | 100 | 630 | 636 | 94.3 |
| 300** | 16 | КШ.К.RS.300.16-02 | 240 | 325 | 10 | 426 | 371 | 138 | - | 740 | 163.5 |
| 300** | 25 | КШ.К.RS.300.25-02 | 240 | 325 | 10 | 426 | 371 | 138 | - | 740 | 147.5 |
| 350** | 16 | КШ.К.RS.350.16-02 | 300 | 377 | 10 | 530 | 455 | 194 | - | 740 | 226 |
| 350** | 25 | КШ.К.RS.350.25-02 | 300 | 377 | 10 | 530 | 455 | 194 | - | 740 | 226 |
| 400** | 16 | КШ.К.RS.400.16-02 | 300 | 426 | 10 | 530 | 455 | 169 | - | 870 | 272.5 |
| 400** | 25 | КШ.К.RS.400.25-02 | 300 | 426 | 10 | 530 | 455 | 169 | - | 870 | 287.5 |
| 500** | 16 | КШ.К.RS.500.16-02 | 390 | 530 | 10 | 630 | 532 | 167 | - | 980 | 440 |
| 500** | 25 | КШ.К.RS.500.25-02 | 390 | 530 | 10 | 630 | 532 | 167 | - | 980 | 460 |
| 600** | 16 | КШ.К.RS.600.16-02 | 500 | 630 | 10 | 820 | 214 | 654 | - | 1003.5 | 995 |
| 600** | 25 | КШ.К.RS.600.25-02 | 500 | 630 | 10 | 820 | 214 | 654 | - | 1003.5 | 1003 |
* Рекомендуется установка редуктора
** В комплекте с механическим редуктором PRO GEAR/ROTORK
Таблца обозначения шаровых кранов ALSO




