Вы здесь
Кран шаровый комбинированый КШ.К.П.ALSO
Шаровые полнопроходные краны ALSO относятся к запорной трубопроводной арматуре промышленного назначения.
Эти шаровые краны предназначены для монтажа в трубопроводах для транспортировки нефти и газа, системах тепловодоснабжения, различных системах. Могут устанавливаться на трубопровод в произвольном положении.
Основные применяемые стали
- Ст. 20, подвижные части ст. 20Х13 (обычное исполнение);
- Ст. 09Г2С, подвижные части ст. 20Х13 (хладостойкое исполнение);
- Ст. 12Х18Н10Т (коррозионностойкое исполнение).
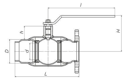
Габаритно-присоединительные размеры

| DN | PN | Каталожное обозначение | d | D | h | H | I | L(П/Ф) | Вес(П/Ф),кг | L(П/М) | Вес(П/М),кг | L(Ф/М) | Вес(Ф/М),кг |
| 10 | 40 | КШ.К.П. 010.40-01 | 10.5 | 42 | 24 | 72 | 150 | - | - | 157.5 | 0.9 | - | - |
| 15 | 40 | КШ.К.П. 015.40-01 | 15 | 42 | 21 | 72 | 150 | 160 | 1.3 | 167.5 | 1 | 127.5 | 1.4 |
| 20 | 40 | КШ.К.П. 020.40-01 | 18 | 48 | 21 | 76 | 150 | 185 | 1.8 | 182.5 | 1.3 | 137.5 | 1.9 |
| 25 | 40 | КШ.К.П. 025.40-01 | 24 | 57 | 21 | 80 | 150 | 185 | 2.2 | 182.5 | 1.5 | 137.5 | 2.3 |
| 32 | 40 | КШ.К.П. 032.40-01 | 30 | 60 | 40 | 105 | 220 | 207.5 | 3.3 | 202.5 | 2.2 | 160 | 3.3 |
| 40 | 40 | КШ.К.П. 040.40-01 | 40 | 76 | 44 | 114 | 220 | 235 | 3.9 | 220 | 3 | 185 | 4.3 |
| 50 | 40 | КШ.К.П. 050.40-01 | 48 | 89 | 39 | 119 | 220 | 255 | 5.6 | 235 | 4.3 | 210 | 6.2 |
| 65 | 16/25 | КШ.К.П. 065.16/25-01 | 63 | 114 | 61 | 152 | 295 | 275 | 8/8.2 | 240 | 6.1 | 235 | 8.6/8.8 |
| 80 | 16/25 | КШ.К.П. 080.16/25-01 | 75 | 133 | 61 | 162 | 295 | 290 | 10.3/11.2 | 270 | 10.1 | 260 | 13.2/14.1 |
| 100 | 16/25 | КШ.К.П. 100.16/25-01 | 100 | 180 | 94 | 193 | 514 | 340 | 17.8/19.4 | - | - | - | - |
| 125 | 16/25 | КШ.К.П. 125.16/25-01 | 125 | 219 | 98 | 210 | 514 | 370 | 25.3/27.1 | - | - | - | - |
| 150* | 16/25 | КШ.К.П. 150.16/25-01 | 148 | 273 | 112 | 238 | 514 | 400 | 36.3/38.6 | - | - | - | - |
| 200* | 16/25 | КШ.К.П. 200.16/25-01 | 200 | 351 | 127 | 269 | 630 | 520 | 75.5/79 | - | - | - | - |
| 250** | 16/25 | КШ.К.П. 250.16/25-01 | 240 | 426 | 138 | 371 | - | 740 | 162.8 | - | - | - | - |
| 300** | 16/25 | КШ.К.П. 300.16/25-01 | 300 | 530 | 220 | 455 | - | 740 | 251/257.8 | - | - | - | - |
| 400** | 16/25 | КШ.К.П. 400.16/25-01 | 390 | 530 | 219 | 532 | - | 980 | 424/444 | - | - | - | - |
| 500** | 16/25 | КШ.К.П. 500.16/25-01 | 500 | 630 | 264 | 654 | - | 1003.5 | 968.5/980 | - | - | - | - |
* Рекомендуется установка редуктора
** В комплекте с механическим редуктором PRO GEAR/ROTORK
Таблца обозначения шаровых кранов ALSO




