Кран шаровый межфланцевый КШ.МФ.ALSO 

Основным рабочим элементом редуцированного крана ALSO является шар, выполненный из нержавеющей стали. Седловое уплотнение шара выполнено из углеродонаполненного фторопласта (тефлона, PTFE + 20%С), что практически исключает износ уплотнения в процессе эксплуатации крана. 

Седловое уплотнение имеет дублирующее торцевое уплотнение из фторсилоксана, предназначенное для обеспечения герметичности крана при низких температурах. Тарельчатые пружины компенсируют температурные изменения шара и седел.

Основные применяемые стали

  • Ст. 20, подвижные части ст. 20Х13 (обычное исполнение);
  • Ст. 09Г2С, подвижные части ст. 20Х13 (хладостойкое исполнение);
  • Ст. 12Х18Н10Т (коррозионностойкое исполнение).

Модели универсальной серии

  • КШ.МФ.ALSO DN 50-150 PN 25-40 межфланцевый.

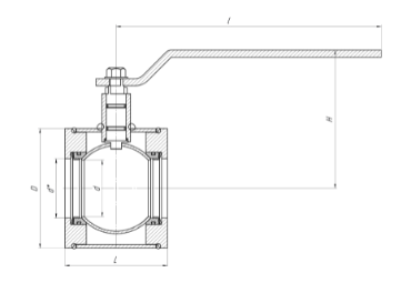
Габаритно-присоединительные размеры

Кран шаровый межфланцевый КШ.МФ.ALSO - 2

DN PN Каталожное обозначение d d* D H I L Вес.кг
50 40 КШ.МФ.050.40-01 40 42 102 114 220 78 2,9
65 25 КШ.МФ.065.25-01 48 50 122 120 220 88 3,4
80 25 КШ.МФ.080.25-01 63 66 133 154 295 114 5,9
100 25 КШ.МФ.100.25-01 75 80 168 162 295 130 9,6
125 25 КШ.МФ.125.25-01 100 100 184 193 514 170 14,6
150 25 КШ.МФ.150.25-01 125 125 212 209 514 185 18,5

Таблца обозначения шаровых кранов ALSO

Таблца обозначения шаровых кранов ALSO - 1

Назад к списку