Вы здесь
Кран шаровый межфланцевый КШ.МФ.ALSO GAS
Основным рабочим элементом редуцированного крана ALSO является шар, выполненный из нержавеющей стали. Седловое уплотнение шара выполнено из углеродонаполненного фторопласта (тефлона, PTFE + 20%С), что практически исключает износ уплотнения в процессе эксплуатации крана.
Седловое уплотнение имеет дублирующее торцевое уплотнение из фторсилоксана, предназначенное для обеспечения герметичности крана при низких температурах. Тарельчатые пружины компенсируют температурные изменения шара и седел.
Основные применяемые стали
- Ст. 20, подвижные части ст. 20Х13 (обычное исполнение);
- Ст. 09Г2С, подвижные части ст. 20Х13 (хладостойкое исполнение);
- Ст. 12Х18Н10Т (коррозионностойкое исполнение).
Модели серии GAS
- КШ.МФ.GAS DN 50-150 PN 25-40 межфланцевый (редуцированный).
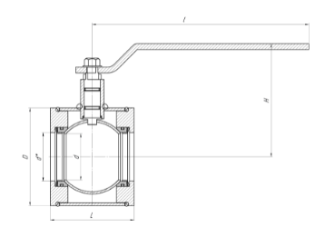
Габаритно-присоединительные размеры

| DN | PN | Каталожное обозначение | d | d* | D | H | I | L | Вес.кг |
| 50 | 40 | КШ.МФ.GAS.050.40-01 | 40 | 42 | 102 | 114 | 220 | 78 | 2,9 |
| 65 | 25 | КШ.МФ.GAS.065.25-01 | 48 | 50 | 122 | 120 | 220 | 88 | 3,4 |
| 80 | 25 | КШ.МФ.GAS.080.25-01 | 63 | 66 | 133 | 154 | 295 | 114 | 5,9 |
| 100 | 25 | КШ.МФ.GAS.100.25-01 | 75 | 80 | 168 | 162 | 295 | 130 | 9,6 |
| 125 | 25 | КШ.МФ.GAS.125.25-01 | 100 | 100 | 184 | 193 | 514 | 170 | 14,6 |
| 150 | 25 | КШ.МФ.GAS.150.25-01 | 125 | 125 | 212 | 209 | 514 | 185 | 18,5 |
Таблца обозначения шаровых кранов ALSO




