Вы здесь
Кран шаровый межфланцевый КШ.МФ.П.ALSO GAS
Основным рабочим элементом полнопроходного крана ALSO является шар, выполненный из нержавеющей стали. Седловое уплотнение шара выполнено из углеродонаполненного фторопласта (тефлона, PTFE + 20%С), что практически исключает износ уплотнения в процессе эксплуатации крана.
Седловое уплотнение имеет дублирующее торцевое уплотнение из фторсилоксана, предназначенное для обеспечения герметичности крана при низких температурах. Тарельчатые пружины компенсируют температурные изменения шара и седел.
Основные применяемые стали
- Ст. 20, подвижные части ст. 20Х13 (обычное исполнение);
- Ст. 09Г2С, подвижные части ст. 20Х13 (хладостойкое исполнение);
- Ст. 12Х18Н10Т (коррозионностойкое исполнение).
Модели серии GAS
- КШ.МФ.П.GAS DN 50-80 PN 25-40 межфланцевый.
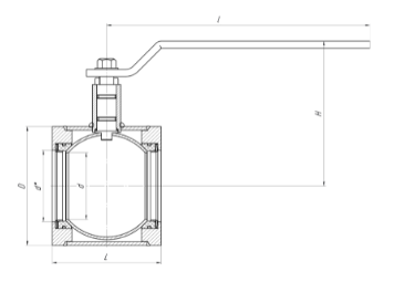
Габаритно-присоединительные размеры

| DN | PN | Каталожное обозначение | d | d* | D | H | I | L | Вес.кг |
| 50 | 40 | КШ.МФ.П.GAS.050.40-01 | 48 | 50 | 102 | 121 | 220 | 88 | 3 |
| 65 | 25 | КШ.МФ.П.GAS.065.25-01 | 63 | 66 | 122 | 154 | 295 | 114 | 4,8 |
| 80 | 25 | КШ.МФ.П.GAS.080.25-01 | 75 | 80 | 133 | 162 | 295 | 130 | 6 |
Таблца обозначения шаровых кранов ALSO




