Вы здесь
Кран шаровый муфтовый КШ.М П.ALSO GAS
Муфтовые полнопроходные стальные шаровые краны ALSO относятся к запорной трубопроводной арматуре промышленного назначения.
Предназначены для монтажа в трубопроводах для транспортировки нефти и газа, системах тепловодоснабжения, различных системах, могут устанавливаться на трубопровод в произвольном положении.
Основные применяемые стали
- Ст. 20, подвижные части ст. 20Х13 (обычное исполнение);
- Ст. 09Г2С, подвижные части ст. 20Х13 (хладостойкое исполнение);
- Ст. 12Х18Н10Т (коррозионностойкое исполнение).
Модели серии GAS
- KШ.M.П.GAS DN 15-80 PN 25, 40 муфта/муфта.
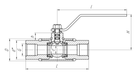
Габаритно-присоединительные размеры

| DN | PN | Каталожное обозначение | d | d* | D | G | h | H | I | L | Вес. кг |
| 15 | 40 | КШ.М.П.GAS.015.40-01 | 15 | 32 | 42 | 1/2" | 21 | 72 | 150 | 135 | 1.1 |
| 20 | 40 | КШ.М.П.GAS.020.40-01 | 18 | 41 | 48 | 3/4" | 19 | 76 | 150 | 135 | 1.4 |
| 25 | 40 | КШ.М.П.GAS.025.40-01 | 24 | 49 | 57 | 1" | 19 | 80 | 150 | 135 | 1.6 |
| 32 | 40 | КШ.М.П.GAS.032.40-01 | 30 | 55 | 60 | 1 1/4" | 39 | 105 | 220 | 155 | 2.1 |
| 40 | 40 | КШ.М.П.GAS.040.40-01 | 40 | 68 | 76 | 1 1/2" | 41 | 114 | 220 | 170 | 3.4 |
| 50 | 40 | КШ.М.П.GAS.050.40-01 | 48 | 84 | 89 | 2" | 38 | 119 | 220 | 190 | 4.9 |
| 65 | 25 | КШ.М.П.GAS.065.25-01 | 63 | 99 | 114 | 2 1/2" | 62 | 152 | 295 | 200 | 6.7 |
| 80 | 25 | КШ.М.П.GAS.080.25-01 | 75 | 108 | 133 | 3" | 55 | 162 | 295 | 240 | 13 |
Таблца обозначения шаровых кранов ALSO




