Вы здесь
Кран шаровый в длину задвижки КШ.Ф.З.ALSO
Основным рабочим элементом крана ALSO является шар, выполненный из нержавеющей стали. Седловое уплотнение шара выполнено из углеродонаполненного фторопласта (тефлона, PTFE + 20%С), что практически исключает износ уплотнения в процессе эксплуатации крана.
Седловое уплотнение имеет дублирующее торцевое уплотнение из фторсилоксана, предназначенное для обеспечения герметичности крана при низких температурах. Тарельчатые пружины компенсируют температурные изменения шара и седел.
Основные применяемые стали
- Ст. 20, подвижные части ст. 20Х13 (обычное исполнение);
- Ст. 09Г2С, подвижные части ст. 20Х13 (хладостойкое исполнение);
- Ст. 12Х18Н10Т (коррозионностойкое исполнение);
Модели универсальной серии
- КШ.Ф.З.ALSO DN 50-200 PN 16-40, DN 50-100 полный, DN 125-200 редуцированный.
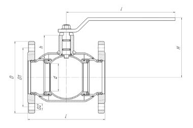
Габаритно-присоединительные размеры

| DN | PN | Каталожное обозначение | d | D | D1 | D2 | n (отв.) | h | H | l | L | Вес |
| 50 | 40 | КШ.Ф.З.050.40-01 | 48 | 160 | 125 | 18 | 4 | 44 | 119 | 220 | 180 | 7 |
| 80 | 16 | КШ.Ф.З.080.16-01 | 75 | 195 | 160 | 18 | 4 | 72 | 162 | 295 | 210 | 12 |
| 80 | 25 | КШ.Ф.З.080.25-01 | 75 | 195 | 160 | 18 | 8 | 72 | 162 | 295 | 210 | 11.5 |
| 100 | 16 | КШ.Ф.З.100.16-01 | 100 | 215 | 180 | 18 | 8 | 98 | 193 | 514 | 230 | 19.2 |
| 100 | 25 | КШ.Ф.З.100.25-01 | 100 | 230 | 190 | 22 | 8 | 98 | 193 | 514 | 230 | 21 |
| 125 | 16 | КШ.Ф.З.125.16-01 | 100 | 245 | 210 | 18 | 8 | 92 | 193 | 514 | 255 | 23 |
| 125 | 25 | КШ.Ф.З.125.25-01 | 100 | 270 | 220 | 26 | 8 | 92 | 193 | 514 | 255 | 27 |
| 150 | 16 | КШ.Ф.З.150.16-01 | 125 | 280 | 240 | 22 | 8 | 98 | 210 | 514 | 280 | 33.5 |
| 150 | 25 | КШ.Ф.З.150.25-01 | 125 | 300 | 250 | 26 | 8 | 98 | 210 | 514 | 280 | 37.5 |
| 200* | 16 | КШ.Ф.З.200.16-01 | 148 | 335 | 295 | 22 | 12 | 93 | 238 | 514 | 330 | 53.5 |
| 200* | 25 | КШ.Ф.З.200.25-01 | 148 | 360 | 310 | 26 | 12 | 93 | 238 | 514 | 330 | 59 |
* Рекомендуется установка редуктора
Таблца обозначения шаровых кранов ALSO




