Вы здесь
Консольный фанкойл GCO-W-03
Консольный фанкойл GCO-W-03 с боковым подключением предназначен для создания комфортного микроклимата в жилых, офисных и коммерческих помещениях.
Устройство отличается высокой производительностью, низким уровнем шума и стильным дизайном, благодаря чему органично вписывается в любой интерьер.
Области применения GCO-W-03
Фанкойл GCO-W-03 идеально подходит для квартир, коттеджей, гостиниц, ресторанов, а также офисных и административных зданий.
Преимущества GCO-W-03
- Энергоэффективность – экономичное потребление энергии.
- Компактность и эргономичность – удобное размещение даже в ограниченном пространстве.
- Три режима скорости вентилятора – выбор оптимального уровня производительности.
- Низкий уровень шума – комфортная работа без лишнего звука.
- Широкий диапазон мощности – подходит для помещений разной площади.
Область применения GCO-W-03
- Ангары;
- Автосалоны;
- Склады;
- Кафе;
- Офисы;
- Аэропорты.
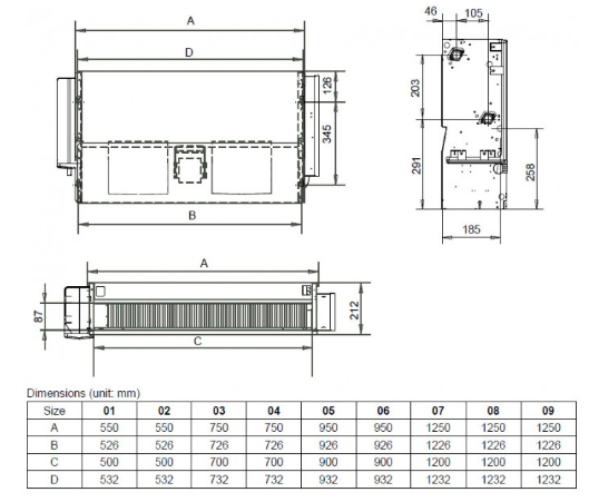
Габаритные размеры GCO-W-03
Технические характеристики GCO-W-03
Параметр | Значение |
Расход воздуха, м³/ч | 510 / 430 / 380 |
Статический напор вентилятора, Па | 15 |
Охлаждение, вода 7/12 °С | Мощность, кВт: 2.53 / 2.25 / 1.88 |
Расход воды, л/ч: 435 | |
Сопротивление, кПа: 15.0 | |
Охлаждение, вода 50 °С | Мощность, кВт: 3.49 / 2.97 / 2.62 |
Расход воды, л/ч: 430 | |
Сопротивление, кПа: 14.0 | |
Электропитание, В/Ф/Гц | 220-240 / ~1 / 50 |
Электрическая мощность, Вт | 40 / 32 / 28 |
Уровень звукового давления, дБ(А) | 35 / 32 / 30 |
Тип мотора вентилятора | 1 низкошумный, 3-х скоростной |
Тип вентилятора | 2 центробежных с загнутыми лопатками |
Теплообменник максимальное рабочее давление / диаметр трубок | 1.6 / Ф9.52 |
Габариты блока / упаковки, ШхВхГ | 750 х 545 х 212 / 839 х 639 х 305 |
Вес блока / упаковки, кг | 20.0 / 23.5 |
Трубопроводы вход/выход воды, дюймы | 3/4 |
Трубопроводы дренаж, мм | ODФ16 |