Вы здесь
Канализационные насосы Wilo DrainLift KH 32
Компактный насос WILO DrainLift KH 32 с режущим механизмом (измельчителем) предназначен для отвода сточных канализационных вод (с фекалиями) от туалета, с дополнительным подключением к умывальник, душу или биде.
Насос DrainLift KH 32-0,4 соединяется напрямую с выпуском унитаза, самоуплотняющимся подсоединением.
На обратной стороне малогабаритной насосной установки DrainLift KH 32 имеются специальные отверстия для подсоединения дополнительных сантехнических приборов для стока канализационных вод и подключения напорной трубы.
Соответствующие трубопроводы могут быть выведены как с левой так и справой стороны, в зависимости от необходимости.
Насос KH 32 был снят с производства. Его заменили насосы серии HiSewlift 3 и в частности модель HiSewlift. 3-35.
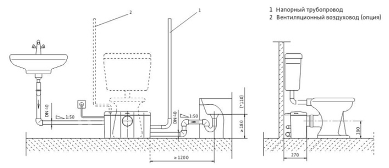
Габаритные размеры канализационного насоса Wilo DrainLift KH 32

- Приточный трубопровод для унитаза DN 100;
- Приточный трубопровод для унитаза DN 40;
- Патрубок для напорного трубопровода;
- Приточный трубопровод;
- Вентиляционный патрубок.
Технические характеристики канализационного насоса Wilo DrainLift KH 32
- номинальная мощность двигателя - 400 Вт;
- температура перекачиваемой жидкости - от +3°С до +35°С;
- общий объем резервуара - 17 литров;
- максимальный объем включения - 2,6 л;
- режим работы - повторно-кратковременный S3 - 25%;
- максимальный приток, при режиме S3 - 260 л/час;
- контроль уровня - посредством пневматического датчика давления;
- макисмальное давление в напорном трубопроводе - 0,7 бар;
- напорный патрубок - DN 25/32;
- подводящий (приточный) патрубок - 2 x DN 40/ 1 x DN 100;
- вентиляционный патрубок - DN 25 (внешний диаметр трубы - 25 мм);
- длина кабеля - 1,2 метра (штекер с защитным контактом);
- подсоединение к сети - 1x230 В, 50 Гц;
- класс защиты - IP 44;
- габаритные размеры (ШxВxГ) - 500 x 300 x 269 мм;
- вес - 7,8 кг;
Установочный чертеж канализационного насоса Wilo DrainLift KH 32

Диаграмма рабочих характеристик




