Вы здесь
Канализационные насосы Wilo DrainLift TMP 40
Бытовой напорный канализационный насос без режущего механизма (измельчителя), предназначенный для автоматического отвода сточных вод (серых стоков) не содержащих фекалий, волокнистых частиц, жиров и масел.
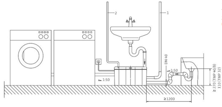
В установке DrainLift TMP 40, используется удобный для обслуживания встроенный погружной насос, сама установка монтируется на пол. TMP 40, какие сантехприборы можно подключить: умывальник, душ, стиральная машина, посудомоечная машина.
Готовый к подключению канализационный насос, оснащенный встроенным обратным клапаном, датчиком защиты мотора от перегрева, поплавковым выключателем контроля уровня.
Комплект поставки насоса Drainlift TMP 40 также включает детали для подключения трубопроводов (напорного и подводящего), крепежные фиксирующие насос элементы, инструкции по монтажу и эксплуатации.
Модификация насоса DrainLift TMP 40 - TMP 40/11 HD подходит для эксплуатации с агрессивными жидкостями.
Эта разновидность отличается от модели DrainLift TMP 40/8 главным образом повышенной мощностью (750 Вт) и материалом корпуса двигателя (сталь 1.4404).
Насосы TMP 40 были сняты с производства. Их заменили насосы серии HiDrainlift 3 и в частности модель HiDrainlift 3-37.
Габаритные размеры канализационных насосов Wilo DrainLift TMP 40

- Напорный трубопровод DN 40;
- Вентиляционный патрубок DN 32 (для отвода воздуха);
- Подводящий патрубок DN 32 (умывальник);
- Подводящий патрубок DN 25 (стиральная машина);
- Подводящий патрубок DN 40 (душ).
Технические характеристики канализационных насосов Wilo DrainLift TMP 40
- мощность - 450 Вт;
- температура перекачиваемой жидкости - от +3°С до +35°С (кратковременно, не более 3 мин., - 90°С);
- общий объем - 32 литра;
- максимальный уровень включения - 15 л;
- режим работы S3 - 25%;
- максимальный приток, при режиме S3 - 900 л/час;
- контроль уровня - с помощью поплавкового выключателя;
- максимальное давление в напорном трубопроводе - 1,1 бар;
- подсоединение к напорному патрубку - DN 40;
- подводящий (приточный) патрубок - DN 25/32/40;
- вентиляционный патрубок - DN 32;
- длина кабеля - 2,5 метра;
- подсоединение к сети - 1x230 В, 50 Гц;
- класс защиты - IP 67;
- габаритные размеры (ШxВxГ) - 510 x 385 x 300 мм;
- вес - 8 кг;
Установочный чертеж канализационных насосов Wilo DrainLift TMP 40

Диаграмма рабочих характеристик




