Вы здесь
Канализационные насосы Wilo DrainLift XS-F
Насос WILO DrainLift XS-F, оснащенный измельчителем (режущим механизмом), предназначается для отвода канализационных фекальных вод и подключается напрямую к навесному унитазу.
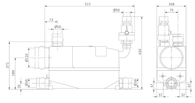
Модель DrainLift XS-F предусматривает ее монтаж в стеновую нишу (за фальшстеной). Глубина насоса XS-F - 168 мм.
Используется для отведения сточной воды от одного унитаза, и дополнительно от умывальника, душа или биде на выбор.
Насос оснащен обратным клапаном, датчиком защиты от перегрева электродвигателя, фильтром с активированным углем, пневматическим датчиком регулировки.
В комплект поставки канализационной установки DrainLift XS-F также входят уплотнения, соединительные манжеты, крепежные элементы, отводной шланг с заглушкой, инструкции по эксплуатации и монтажу.
Габаритные размеры вентиляторов в шумоизолированном корпусе SLIMBOX-CVB


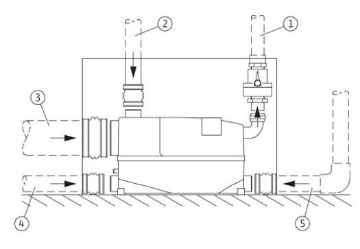
- Напорный трубопровод;
- Воздухоотводящий патрубок;
- Подводящий патрубок подвесного унитаза;
- Подводящий патрубок душ/биде;
- Подводящий патрубок умывальника.
Технические характеристики вентиляторов в шумоизолированном корпусе SLIMBOX-CVB
- мощность - 400 Вт;
- температура перекачиваемой жидкости - от +3°С до +35°С;
- общий объем - 7,9 литра;
- максимальный уровень включения - 1,2 л;
- режим работы S3 - 30 %;
- максимальный приток, при режиме S3 - 120 л/час;
- контроль уровня - пневмодатчик давления;
- максимальное давление в напорном трубопроводе - 0,4 бар;
- подсоединение к напорному патрубку - DN 32;
- подводящий (приточный) патрубок - 2 x DN 50/ 1 x DN 100;
- вентиляционный патрубок - DN 50;
- длина кабеля - 1,5 метра;
- подсоединение к сети - 1x230 В, 50 Гц;
- класс защиты - IP 44;
- габаритные размеры (ШxВxГ) - 515 x 410 x 168 мм;
- вес - 6,5 кг;
Диаграмма рабочих характеристик




