Вы здесь
Тяговая лебедка ТЭЛ-10
Электрическая тяговая лебёдка ТЭЛ-10 предназначена для выполнения погрузочно-разгрузочных задач при перемещении грузов массой до 10 тонн (10000 кгс).
Её можно использовать как автономное устройство, применять в роли однобарабанной маневровой лебёдки или интегрировать в состав грузоподъёмных механизмов, таких как краны. При этом эксплуатация лебёдки для подъёма людей строго запрещена.
Конструкция устройства основана на четырёхступенчатом цилиндрическом редукторном узле, который состоит из двух соединённых редукторов: Ц2У-200 (первичный) и Ц2Н-500 (основной). В старых модификациях модели в качестве главного редуктора применялся РМ-850.
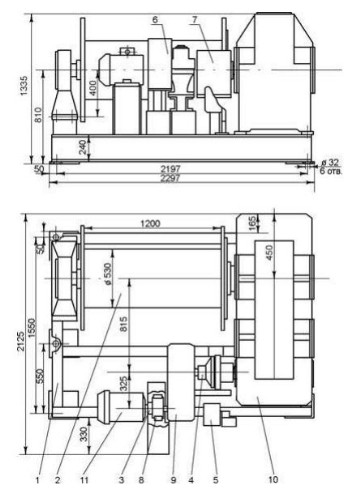
Оборудование включает стандартные компоненты, характерные для тяговых лебёдок:
- Сварная рама, являющаяся каркасом для всей конструкции.
 - Барабан в сборе.
 - Муфта, соединяющая электродвигатель 11 кВт 1000 об/мин с первичным редуктором Ц2У-200. Она же одновременно является тормозным шкивом.
 - Муфта, соединяющая выходной вал первичного редуктора с входным валом главного редуктора Ц2Н-500 (РМ-850).
 - Пусковое электрооборудование.
 - Кожух тормозного устройства.
 - Кожух электроаппаратуры.
 - Гидравлический тормоз ТКГ-200.
 - Редуктор Ц2У-200.
 - Редуктор Ц2Н-500.
 - Электродвигатель АИР 160 S6 (при общепромышленном применении лебёдки).
 
Габаритные размеры ТЭЛ-10

Технические характеристики ТЭЛ-10
| Напряжение, В | 380 | 
| Тяговое усилие, тс | 10 | 
| Расчетная канатоёмкость, м | 300 | 
| Рекомендуемый диаметр каната по ГОСТ 2688-80, мм | 28 | 
| Габаритные размеры (Д х Ш х В), мм | 2297 х 2125 х 1310 | 
| Монтажные размеры (С х D), мм | 550 х 1000 х 2197 | 
| Диаметр монтажных отверстий (Е), мм | 32 х 6 | 
| Комплектация канатом по умолчанию, (+/—) | не входит в комплект | 
| Скорость навивки каната на первом слое, м/с | 0,065 | 
| Редуктор первичный | Ц2У-200 | 
| Редуктор главный | Ц2Н-500 / РМ-850 | 
| Тип тормоза | ТКГ 200 | 
| Электродвигатель | АИР160S6 | 
| Климатическое исполнение по ГОСТ 15150-69 | У2 | 
| Температура окружающей среды, ºС | от -40 до +40 | 
| Окружающая среда | невзрывоопасная | 
| Режим работы | легкий | 
| Масса без каната, кг | 5500 | 
			


