Вы здесь
Тяговая лебедка ТЛ-14а
Тяговая электрическая лебёдка ТЛ-14А предназначена для выполнения такелажных и погрузочно-разгрузочных работ на промышленных объектах.
Она может эксплуатироваться как автономно, так и в составе различных грузоподъёмных систем.
Конструкция лебёдки ТЛ-14А обеспечивает эффективное преобразование вращательного движения электродвигателя в тяговое усилие, передаваемое на барабан. В ранних версиях применялись редукторы типа РЦД-350, а в современных модификациях устанавливаются компактные и более мощные двухступенчатые редукторы модели 1Ц2У-160.
Вал электродвигателя соединён с редуктором через специальную муфту, которая одновременно выполняет роль тормозного шкива. Тормозной механизм установлен на входном валу, где крутящий момент меньше, что облегчает процесс остановки оборудования. Барабан закреплён на выходном валу редуктора, а пусковой электроблок размещён на несущей раме лебёдки. Рабочее напряжение устройства составляет 380 В.
При регулярном техническом обслуживании срок службы лебёдки достигает 10 лет.
Важно отметить, что лебёдка ТЛ-14А не предназначена для подъёма людей.
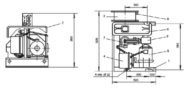
Габаритные размеры ТЛ-14А

| 1 | Рама | 
| 2 | Барабан | 
| 3 | Муфта | 
| 4 | Шкаф с пусковой аппаратурой | 
| 5 | Защитный кожух | 
| 8 | Редуктор Ц2У-160 или РЦД-350 | 
| 7 | Тормоз колодочный гидравлический ТКГ-160 | 
| 8 | Электрический двигатель 4.0 кВт 1500 об/мин | 
| 9 | Трос (канат) | 
Технические характеристики ТЛ-14А
| Напряжение, В | 380 | 
| Тяговое усилие, тс | 0,42 | 
| Расчетная канатоёмкость, м | 80 | 
| Рекомендуемый диаметр каната по ГОСТ 2688-80, мм | 6,9 | 
| Габаритные размеры (Д х Ш х В), мм | 920 х 620 х 800 | 
| Монтажные размеры (С х D), мм | 360 х 690 | 
| Диаметр монтажных отверстий (Е), мм | 22 | 
| Комплектация канатом по умолчанию | не входит в комплект | 
| Скорость навивки каната на первом слое, м/с | 0,72 | 
| Диаметр барабана | 300 | 
| Редуктор | 1Ц2У-160-31,5 | 
| РЦД-350-31,5 | |
| Тип тормоза | ТКГ 160 | 
| Электродвигатель | АИР100L4 | 
| Климатическое исполнение по ГОСТ 15150-69 | У2 | 
| Температура окружающей среды, ºС | от -40 до +40 | 
| Окружающая среда | невзрывоопасная | 
| Режим работы | легкий | 
| Масса без каната, кг | 235 | 
			


