Вы здесь
Устройство управления лифтом УЛ АЕИГ.656353.036
Устройство управления лифтом УЛ АЕИГ.656353.036 предназначено для управления:
- пассажирскими;
- грузовыми;
- больничными лифтами с нерегулируемым и регулируемым приводом;
- для жилых и административных зданий с одиночным и групповым управлением.
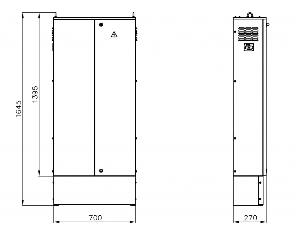
Габаритные размеры устройства управления лифтом УЛ АЕИГ.656353.036
Технические характеристики устройства управления лифтом УЛ АЕИГ.656353.036
Наименование параметра | Значение |
Напряжение питающей сети переменного тока, В | 380(+38/-57)* |
Напряжение цепей управления, В | 24(+2,4/-3,6) |
110(+11/-16,5) | |
Частота питающей сети | |
для поставок внутри СНГ, Гц | 50±1 |
для поставок на экспорт, Гц | 50±1, 60±1 |
Номинальный ток цепи управления, А, не более | 40 |
Номинальный ток силовой цепи, А, не более | 100 |
Скорость лифта, м/с, не более | 2,5** |
Грузоподъемность, кг | |
Для пассажирских лифтов, до | 1600** |
Для грузовых лифтов, до | 6300** |
Количество остановок, до | 30** |
Максимальное количество лифтов в группе | 6 |
Степень защиты шкафа | IP20 |
Климатическое исполнение | УХЛ4, О4 |
Средний срок службы, лет | 25 |