Вы здесь
Блоки нагрузки БН
Блоки нагрузки серии БН предназначены для поглощения и рассеяния энергии в генераторном режиме работы асинхронных электродвигателей с короткозамкнутым ротором путем нагрева встроенных трубчатых электронагревателей и служат для уменьшения времени торможения.
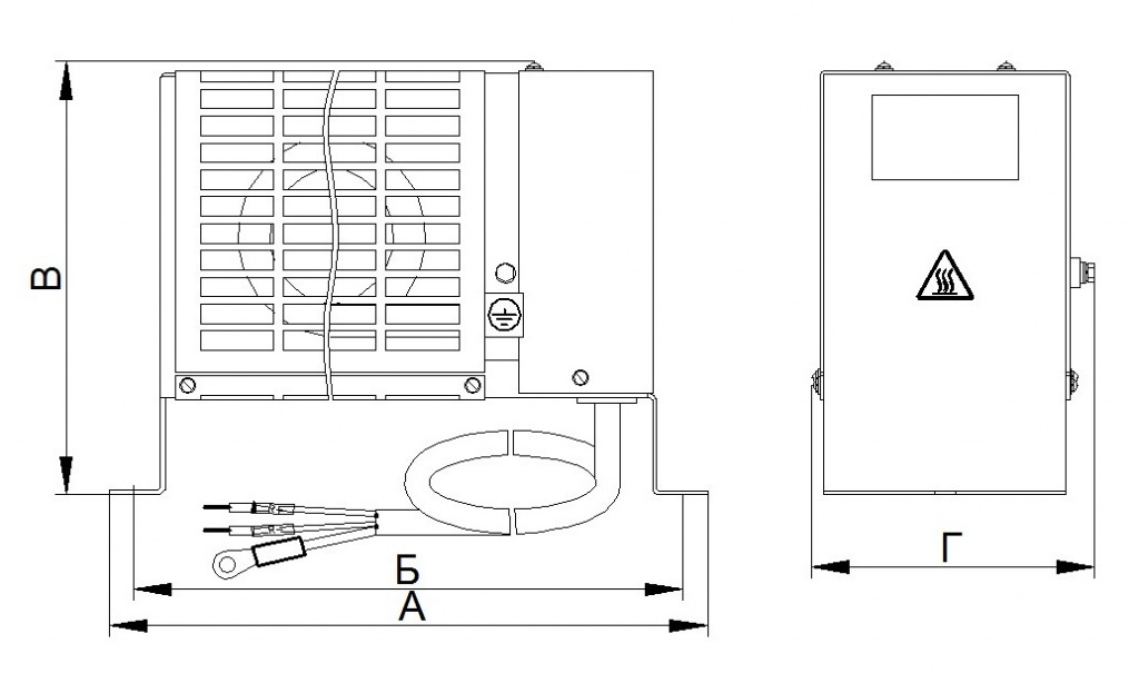
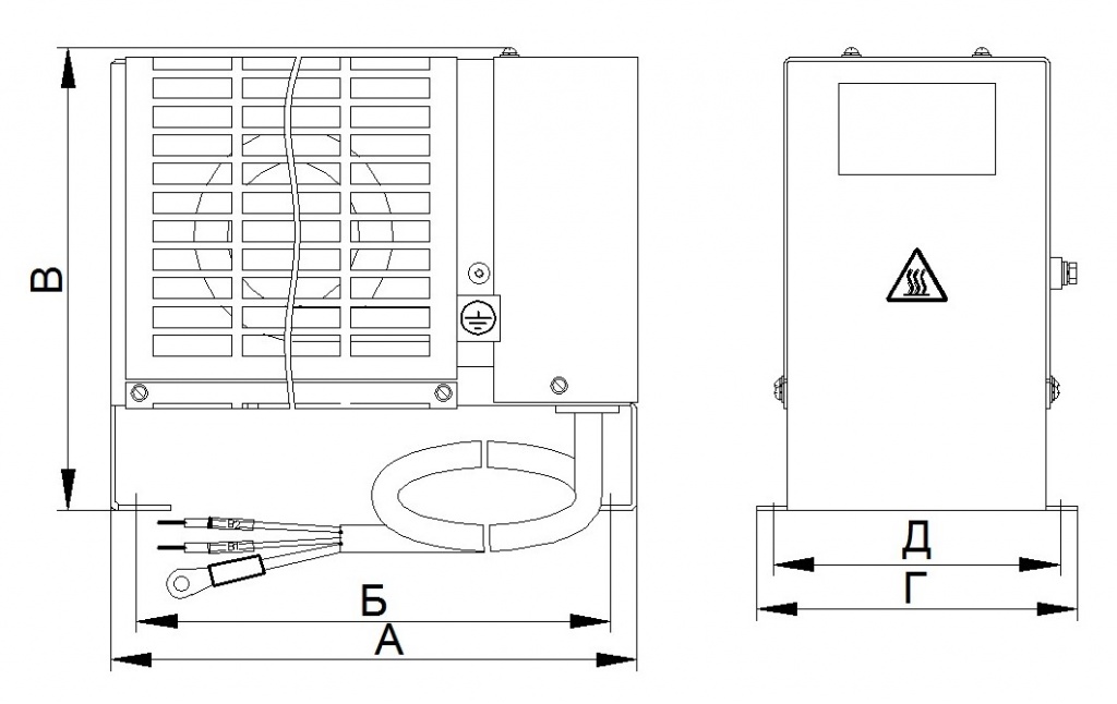
Габаритные размеры блоков нагрузки БН
БН-1-80-УХЛ4 и БН-2-40-УХЛ4

БН-1-75-УХЛ4 и БН-2-34-УХЛ4

БН-5-28-УХЛ4

| Наименование | Размер, мм, не более | Масса, кг, не более | ||||
| А | Б | В | Г | Д | ||
| Блок нагрузки БН-1-75-УХЛ4 | 415 | 390 | 180 | 130 | 108 | 3,0 |
| Блок нагрузки БН-1-80-УХЛ4 | 455 | 435 | 180 | 130 | - | 3,0 |
| Блок нагрузки БН-2-34-УХЛ4 | 415 | 390 | 180 | 140 | 122 | 4,2 |
| Блок нагрузки БН-2-40-УХЛ4 | 545 | 525 | 180 | 130 | - | 4,0 |
| Блок нагрузки БН-5-28-УХЛ4 | 595 | 575 | 180 | 220 | 150 | 6,6 |
Технические характеристики блоков нагрузки БН
| Наименование параметра | Значение |
| Номинальный напряжение изоляции, В | 800 |
| Степень защиты | IP20 |
| Климатическое исполнение | УХЛ4 |
Исполнения
| Обозначение | Тип устройства | Номинальная мощность рассеяния, кВт | Номинальная сопротивление, Ом |
| ШПЖИ4.679.003 | БН-1-80 | 1 | 80 |
| ШПЖИ4.679.003-01 | БН-2-40 | 2 | 40 |
| ШПЖИ4.679.004 | БН-5-28 | 5 | 28 |
| ШПЖИ4.679.006 | БН-1-75 | 1 | 75 |
| ШПЖИ4.679.007 | БН-2-34 | 2 | 34 |



