Вы здесь

Дизельная насосная станция СНП 

Дизельная насосная станция СНП предназначена для работы на открытой площадке, оросительных и осушительных работ, перекачивания воды температурой от 1 до 40°С (274-313К), не содержащей твердых включений по массе более 0,05%, размеру - более 0,2 мм и микротвердостью более 6,5 ГПа (650кгс/мм2).

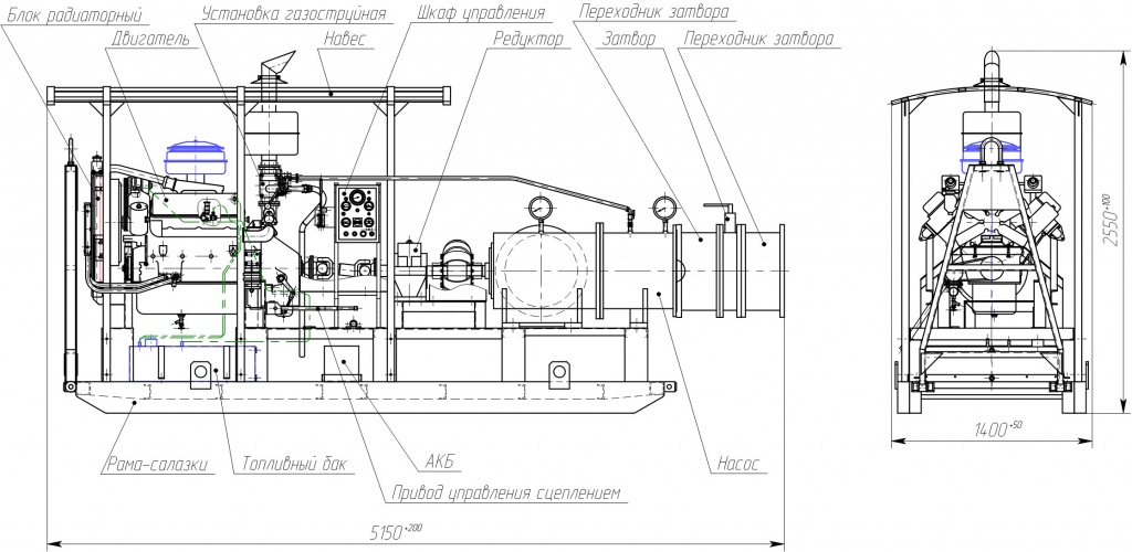
Установка состоит из дизельного привода, состоящего из силового агрегата, в состав которого входят двигатель с механизмом отбора мощности смонтированного на раме-салазках. На раме-салазках установлен редуктор, соединённый с силовым агрегатом карданным валом. С редуктором посредством упругой компенсационной муфты соединяется установленный на раме-салазках осевой насос. Для контроля работы насоса на патрубках насоса установлены манометр (на выходе из насоса) и мановакуумметр (на входе в насос).

Для заполнения насоса водой на насосной станции установлен газоструйный вакуум-аппарат и дисковый затвор. Газоструйный аппарат установлен на выпускном коллекторе двигателя перед глушителем и работает от выхлопных газов двигателя. Газоструйный аппарат соединен рукавом и краном с корпусом насоса. Дисковый затвор установлен на выходе из насоса. Дизельный привод оборудован системой воздухозабора с воздушным фильтром, системой выпуска отработавших газов с глушителем выхлопа, системой охлаждения с водяным радиатором и масляным радиатором, системой питания с топливным баком и фильтром грубой очистки топлива, системой электрооборудования с пультом управления, рычагом выключения сцепления. Отсчет времени работы двигателя обеспечивается счетчиком времени наработки.

По требованию заказчика дизельный насосный агрегат может быть изготовлен в исполнениях на раме, на полозях, на колёсном шасси.

Система управления насосной станции удовлетворяет 1-ой степени автоматизации по ГОСТ 14228-80 и включает функции запуска, управления, автоматического поддержания оборотов, подзарядки аккумуляторов и аварийной защиты дизеля.

Особенности насосов СНП

  • широкая область применения (орошение, полив, системы пожаротушения и т.д.);
  • оперативность ввода в эксплуатацию;
  • возможность регулирование производительности и напора путем изменения числа оборотов двигателя;
  • исполнение агрегатов на шасси или салазках обеспечивает мобильность и возможность быстро менять место установки;
  • использование номенклатуры насосного оборудования собственного производства с возможностью широкого выбора требуемых параметров;
  • комплектация дизельными двигателями как отечественного, так и импортного производства по выбору заказчика;
  • наличие собственного уникального компьютеризированного испытательного стенда для проверки параметров и работоспособности агрегата в целом.

Применение насосов СНП

  • орошение, полив сельхозугодий;
  • осушительные, дренажные работы;
  • системы пожаротушения.

Для контроля за работой двигателя на пульте управления имеются:

  • амперметр, для контроля зарядки аккумуляторных батарей;
  • указатель температуры охлаждающей жидкости;
  • указатель давления масла;
  • тахометр, для контроля за частотой вращения двигателя.
  • указатель уровня топлива;
  • светосигнальные индикаторы аварийного давления масла, аварийной температуры воды, засоренности масляного фильтра

Насосная станция имеет систему автоматической защиты от аварийных режимов работы двигателя, благодаря чему не требуется постоянное наблюдение за её работой.

Система аварийно-предупредительной сигнализации и защиты по аварийным параметрам включает в себя датчики аварийного давления масла и аварийной температуры охлаждающей жидкости со светосигнальными индикаторами.

Комплектация насосов СНП

  • Рама-салазки.
  • Дизельный двигатель с механизмом отбора мощности.
  • Блок радиаторов.
  • Топливный бак.
  • Топливные трубопроводы.
  • Газоструйный вакуум-аппарат.
  • Глушитель выхлопа.
  • Система управления насосной станции.
  • Система аварийно-предупредительной сигнализации и защиты по аварийным параметрам.
  • Карданный вал.
  • Редуктор.
  • Навес для защиты от осадков.
  • Насос ОГ-50.
  • Переходники затвора дискового.
  • Затвор дисковый.
  • Всасывающая линия (по требованию заказчика). 
  • Напорная линия (по требованию заказчика)

Технические характеристики насосов СНП

Марки Подача (макс.), л, не более Напор, м Мощность агрегата, кВт Частота вращения (диапазон), об/мин Масса насоса, кг
СНП 500-10 485-700 11,0-6,5 90 1000 890
СНП-75/100 260±10 100 125 1700 -

 

Марки Масса агрегата, кг Высота самовсасывания (номин.), м Марка двигателя Насос
СНП 500-10 4000 2,8 - ОГ-50
СНП-75/100 3500 2,5 ЯМЗ-238ГМ2 (ЯАЗ-М206А) Центробежный двухколесный

Условное обозначение

Например СНП-500/10, где:

  • СНП – станция насосная передвижная;
  • 500 – номинальная подача в л/с;
  • 10 – номинальный напор в метрах.

Габаритные размеры насосов СНП

Аэродинамические характеристики насосов СНП

Назад к списку