Вы здесь
Насос центробежный многоступенчатый ЦНСГ 13-315
Насос центробежный многоступенчатый секционного типа ЦНСГ 13-315 предназначен для перекачивания горячей и холодной воды в системах гражданского и промышленного водоснабжения.
Насос комплектуется электроприводом. В качестве привода служит трехфазный общепромышленный асинхронный электродвигатель с короткозамкнутым ротором.
Тип привода в электроагрегате - асинхронный двигатель типа АИР180M2 мощностью 30 (тридцать) квт.
Насосный агрегат ЦНС(Г) не предназначен для перекачивания горючих, легковоспламеняющихся и агрессивных жидкостей, морской воды, не предназначен для работы во взрывоопасных условиях.
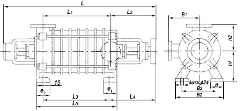
Габаритные размеры ЦНСГ 13-315

| L | B1 | B2 | h1 | h2 | L1 | L2 | L3 | L4 | L5 | B3 | l1 | l2 | b |
| 1336 | 230 | 420 | 200 | 230 | 692 | 345 | 582 | 400 | 692 | 350 | 80 | 80 | 74 |
Технические характеристики ЦНСГ 13-315
| Потребляемая мощность | 22,8 кВт |
| Максимальное давление на входе в насос | 3 кгс/см2 |
| Допускаемый кавитационный запас (ДКЗ) | 3 м |
| Уровень звука на расстоянии 1 м от насосного секционного агрегата | 101 дБА |
| Патрубки насоса | Ду-80, Ру-16 |
| Напряжение | 380 В |
| Ток | переменный |
| Частота тока | 50 Гц |
| Подача | 13 м3/ч |
| Напор | 315 м |
| Мощность двигателя | 30 кВт |
| Об./мин | 2900 |
| Вес | 333, кн на раме |



