Обогреватель РИЗУР-ТЕРМ-П 230 В 

Обогреватель РИЗУР-ТЕРМ-П 230 В предназначен для предотвращения образования конденсата, защиты от замерзания электрических и электронных компонентов и поддержания заданной температуры в термошкафах для оборудования, шкафах автоматики, телекоммуникационных и распределительных шкафах, различных кожухах и боксах, в том числе и во взрывоопасных зонах помещений и наружных установок.

Взрывозащищенный обогреватель РИЗУР-ТЕРМ-П 230 В изготавливается из плоского профиля и является компактным решением для применения в зонах, с ограниченным пространством для монтажа.

В данном корпусе возможно исполнение с мощностью до 1000 Вт.

 

Преимущества обогревателя РИЗУР-ТЕРМ-П 230 В

  • Саморегулирование;
  • Энергоэффективность;
  • Высокая удельная мощность;
  • Компактность;
  • Надежность;
  • Отсутствие дополнительных компонентов, увеличивающих вероятность отказа обогревателя, например, встроенных термостатов;
  • Длительный срок службы.

Обогреватель РИЗУР-ТЕРМ-П 230 В выполнен в виде двух алюминиевых пластин из алюминиевого сплава, с размещенным между ними нагревательным элементом.

Внутри нагревателя располагается керамический электронагревательный элемент на базе полупроводниковых керамических нагревательных элементах (РТС-керамики), которые обладают "чувствительностью" к температуре.

Электрическое сопротивление находится в нелинейной зависимости от температуры нагрева - при повышении температуры сопротивление керамического нагревательного элемента многократно возрастает, ограничивает протекающий ток и останавливает рост температуры.

Благодаря свойству саморегулирования керамических нагревательных элементов, обогреватели РИЗУР-ТЕРМ на базе РТС-керамики не требуют применения стабилизирующих компонентов и средств защиты от перегрева поверхности, что положительно сказывается на безотказности и долгосрочности работы обогревателя.

Технические характеристики обогревателя РИЗУР-ТЕРМ-П 230 В

Зона установки общепромышленные объекты, взрывоопасные зоны В-1а и В-1г по ПУЭ гл. 7.3
Маркировка взрывозащиты общепромышленное исполнение
1Ex mb IIC T6... T3 Gb X
Напряжение питания 230 (±15%) В переменного тока
Мощность нагревательного элемента от 100 до 700 Вт
Температура на поверхности обогревателя В соответствии с температурным классом
T4 - до +135 ºС
T5 - до +100 ºС
T6 - до +85 ºС
-30 … +110°C, шаг 1°С (с цифровыми терморегуляторами производства РИЗУР)
Поддерживаемая температура в боксе +10...+20°C (с терморегуляторами на базе биметаллического термостата)
-40 … +110°C, шаг 1°С с цифровыми терморегуляторами производства ООО «НПО «РИЗУР»
Степень защиты обогревателя
IP67 по ГОСТ 14254-96
Электрическая прочность изоляции не менее 1500 В
Сопротивление изоляции не менее 20 МОм
По способу защиты человека от поражения электрическим током класс 1 по ГОСТ 12.2.007.0
Гарантийный срок эксплуатации 36 месяцев
Средний срок эксплуатации не менее 15 лет

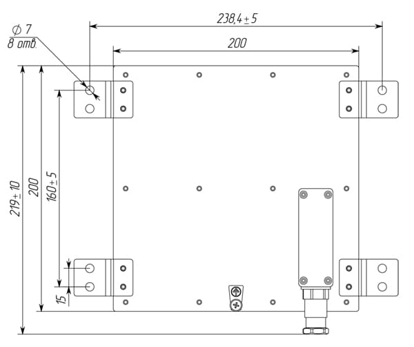
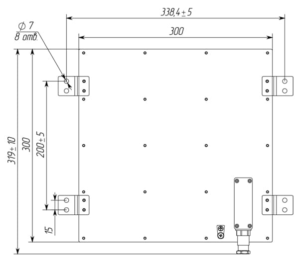
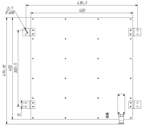
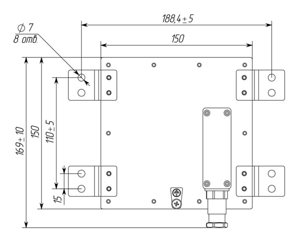
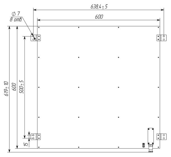
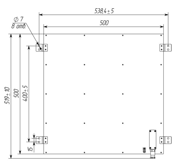
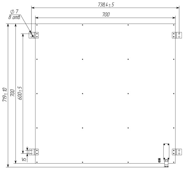
Габаритные размеры обогревателя РИЗУР-ТЕРМ-П 230 В

РИЗУР-ТЕРМ-П-100

РИЗУР-ТЕРМ-П-200

РИЗУР-ТЕРМ-П-300

РИЗУР-ТЕРМ-П-400

РИЗУР-ТЕРМ-П-500

РИЗУР-ТЕРМ-П-600

РИЗУР-ТЕРМ-П-700

Назад к списку