Вы здесь
Воздушно-отопительный агрегат АОД
Воздушно-отопительные агрегаты предназначены для систем воздушного отопления с сосредоточенной подачей воздуха в:
- промышленных и общественных зданиях;
- тепловых завесах;
- сушки пиломатериалов;
- рециркуляторных установках.
Через агрегаты циркулирует воздух, забираемый из помещений и возвращаемый им.
Сертификаты соответствия № РОСС RU.МГ01.В03477
Воздушно-отопительные агрегаты изготавливаются на основе:
- калориферов типа КСК (подогрев воздуха с помощью воды);
- калориферов типа КПСК (подогрев воздуха с помощью водяного пара);
- калориферов типа ЭК (подогрев воздуха с помощью электричества).
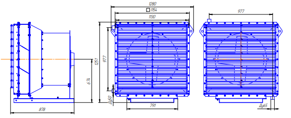
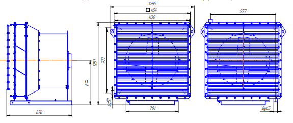
Конструкция воздушно-отопительного агрегата АОД:
- калорифер (теплообменник);
- воздухораспределительный клапан;
- воздушный переход;
- основание;
- вентилятор.
Габаритные размеры воздушно-отопительного агрегата АОД
АОД 2-4; 2-6,3; 2-10
Обозначение | Высота, А | Ширина, В | Длина, L не более | Диаметр патрубка, Ду |
АОД 2-4 | 595 | 730 | 800 | 32 |
АОД 2- 6,3 | 595 | 1040 | 935 | 32 |
АОД 2-10 | 820 | 1040 | 1055 | 32 |
АОД 2-20В; 2-20П
АОД 2-25В; 2-25П
Технические характеристики воздушно-отопительного агрегата АОД
Марка агрегата | Производительность по воздуху, куб/час | Тип калорифера и площадь поверхности нагрева, м2 | Тип вентилятора (кВт/обор-1) | Уровень звуковой мощности, ДБ | Теплопроизводительность | |
кКал/час | кВт | |||||
АОД 2-4 | 3000 | КВБ-7П 21,2 | ВО 06-300-4 0,18/1500 | 88 | 38400 | 45,2 |
АОД 2-4 | 3600 | КСКС 4 - 7 21,2 | ВО 06-300-4 0,25/1500 | 88 | 38400 | 45,2 |
АОД 2-6,3 | 4850 | КВБ-9П 29,3 | ВО 06-300-4 0,75/3000 | 99 | 59500 | 69,0 |
АОД 2-6,3 | 4850 | КСКС 4 - 9 29,3 | ВО 06-300-4 0,75/3000 | 99 | 59500 | 69,0 |
АОД 2-10 | 9900 | КВБ-9П х 1,5 43,9 | ВО 06-300-6,3 1,1/1,5/1500 | 100 | 120700 | 140,0 |
АОД 2-10 | 9900 | КСКС 4-9 х 1,5 43,9 | ВО 06-300-6,3 1,1/1,5/1500 | 100 | 120700 | 140,0 |
АОД 2-20В(П) | 19000 | КСК 3(КП3-Ск) 64,0 | ВО 06-300-8,0 2,2/1500 | 103 | 222500 | 255,0 |
АОД 2-25В(П) | 25000 | КСК 4(КП4-Ск) 84,6 | ВО 06-300-8,0 2,2/3,0/1500 | 103 | 297216 | 345,6 |