Вы здесь
Хлопушка электроприводная ЭХ-700
Хлопушка электроприводная ЭХ-700 предназначена для предохранения резервуаров от утечек нефти или нефтепродуктов при повреждении технологического трубопровода или размещенных на нех запорных устройств.
Является комплектующим изделием резервуаров для нефти и нефтепродуктов.
Хлопушка электроприводная выпускается в двух исполнениях:
- ЭХ-700 — для резервуаров без защитной стенки;
- ЭХ-700-СС — для резервуаров с защитной стенкой (резервуар «стакан в стакане»).
Монтаж
Хлопушка электроприводная ЭХ-700 монтируется на фланце приемо-раздаточного патрубка в нижнем поясе внутри резервуара.
- Соединение — фланцевое, болтовое;
- Соединительный фланец изделия соответствует ГОСТ 12820-80. Условное давление (Ру) фланца — 16 кгс/см2;
- Присоединительные размеры фланца соответствуют исполнению 1 по ГОСТ 12815-80.
Узел управления с электроприводом монтируется на стенке снаружи резервуара над приемо-раздаточным патрубком, на котором установлена хлопушка электроприводная при помощи сварки. Сварное соединение — по ГОСТ 5264-80, с учетом требований ПБ 03-605-03. По устойчивости к воздействию климатических факторов внешней среды хлопушки электроприводные изготавливаются в исполнении Т, У и УХЛ категории размещения 1 по ГОСТ 15150-69.
Пример обозначения
- ЭХ — электроприводная хлопушка;
- 700 — условный проход в миллиметрах;
- СС — для резервуаров с защитной стенкой (резервуар «стакан в стакане»);
- У — климатическое исполнение по ГОСТ 15150-69.
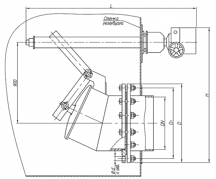
Габаритные размеры хлопушки электроприводной
ЭХ-700
ЭХ-700-СС
Технические характеристики хлопушки электроприводной ЭХ-700
Наименование параметров | ЭХ-700 | ЭХ-700-СС | ||
Условный проход DN | 700 | |||
Рабочее давление, МПа (кгс/см2), не более | 0,15 (1,5) | |||
Класс герметичности по ГОСТ 9544-93 | D | |||
Усилие, необходимое для вращения штурвала, кгс, не более | 25 | |||
Мощность электродвигателя привода, кВт | 1,5 | |||
Габаритные размеры, мм, не более: | длина L | 2170 | 2710 + L1 | |
ширина межстенного пространства, L1 (см. рис. 2) | — | 2250* | ||
ширина, В | 910 | |||
высота, Н | 1640 | |||
Присоединительные размеры, мм: | D | 910 | ||
D1 | 840 | |||
d | 39 | |||
n | 24 | |||
Масса, кг, не более | 890 | 930 |
Сведения для монтажа
Обозначение хлопушки | Ответный фланец ГОСТ 12820-80 | Прокладка ГОСТ 15180-86 | Болт ГОСТ 7798-70 | Гайка ГОСТ 5915-70 |
ЭХ-700 | 1-700-16 | А-700-16-ПМБ | M36x140 | М36 |
ЭХ-700-СС |