Вы здесь
Механизмы управления хлопушкой МУ-1/МУ-2
Механизмы управления хлопушкой МУ-1/МУ-2 предназначены для открывания крышек хлопушек и их фиксации в открытом положении.
Механизмы управления являются комплектующими изделиями резервуаров для нефти, нефтепродуктов, а также других технических жидкостей.
Типы механизмов управления хлопушкой:
- МУ-1 — механизм управления, предназначенный для хлопушек с условным проходом от 80 до 300 миллиметров;
- МУ-2 — механизм управления, предназначенный для хлопушек с условным проходом от 400 до 600 миллиметров.
Механизмы управления МУ-2 выпускаются в двух конструктивных исполнениях:
- с ручным (червячным) редуктором (Р);
- с электрическим приводом (Э).
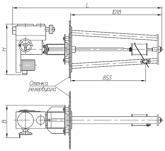
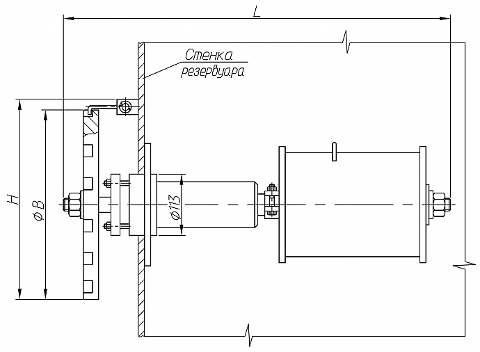
Габаритные размеры механизмов управления хлопушкой
МУ-1
МУ-2
Технические характеристики механизмов управления хлопушкой МУ-1/МУ-2
Наименование параметров | МУ-1 | МУ-2 | |
Диапазон условного прохода хлопушек DN | 80 - 300 | 400-600 | |
Габаритные размеры, мм, не более: | длина L | 512 | 1676 |
ширина B | 320 | 385 | |
высота H | 336 | 570 | |
Усилие, необходимое для вращения штурвала, кгс, не более | 15 | 25 | |
Мощность электродвигателя привода, кВт | — | 0,09 | |
Масса, кг, не более | 20 | 120 |
Пример обозначения изделия
МУ — механизм управления;
2 — исполнение для хлопушек с условным проходом 400, 500 и 600;
возможные варианты обозначения изделий:
- 1 — исполнение для хлопушек с условным проходом от 80 до 300, МУ-1-У ТУ 3689-006-82673705-2009.
Р — червячный редуктор в качестве привода;
возможные варианты обозначения изделий:
- Э — электрический привод, например, МУ-2-Э-У ТУ 3689-006-82673705-2009;
- в обозначении механизмов управления, предназначенных для хлопушек с условным проходом от 80 до 300 (МУ-1), выпускаемых только с ручным приводом, данный символ не применяется; например, МУ-1-У ТУ 3689-006-82673705-2009;
У — климатическое исполнение по ГОСТ 15150-69.
Назад к списку