Вы здесь
Клапаны дыхательные закрытого типа КДЗТ
Клапаны дыхательные закрытого типа КДЗТ предназначены для:
- герметизации газового пространства,
- поддержания проектных величин внутреннего давления и вакуума в резервуарах со светлыми нефтепродуктами, оборудованных газоуравнительной системой.
Клапан КДЗТ совмещает функции, как клапана давления, так и клапана вакуума.
Клапаны являются непримерзаемыми, то есть контактные поверхности их седел и затворов покрыты материалом, исключающим примерзание затвора к седлу, благодаря чему работоспособность и надежность клапана не зависит от погодных условий.
Применение клапанов в составе газоуравнительной системы обеспечивает переток газопаровоздушной смеси из наполняемых резервуаров в синхронно опорожняемые резервуары, исключая выброс паров в атмосферу. Благодаря этому предотвращаются потери хранимого продукта от испарений и значительно снижается негативное воздействие объектов нефтегазового комплекса на окружающую среду.
Минимальное количество клапанов на каждый резервуар определяется в соответствии с проектными параметрами газоуравнительной системы.
Нижний фланец клапана через прокладку устанавливается на монтажный патрубок резервуара, а к верхнему фланцу клапана присоединяется трубопровод газоуравнительной системы.
- Соединение — фланцевое, болтовое.
- Соединительные фланцы изделия — по ГОСТ 12820-80, на условное давление (Ру) 2,5 кгс/см2.
- Присоединительные размеры фланцев соответствуют исполнению 1 по ГОСТ 12815-80.
- По устойчивости к воздействию климатических факторов внешней среды клапаны изготавливаются в исполнении Т, У и УХЛ, категории размещения 1 по ГОСТ 15150-69.
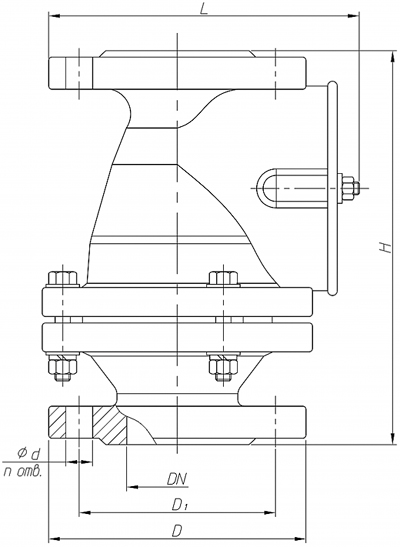
Габаритные размеры клапанов дыхательных закрытого типа КДЗТ
Технические характеристики клапанов дыхательных закрытого типа КДЗТ
Наименование параметров | КДЗТ-50А | КДЗТ-100А | КДЗТ-150А | |
Условный проход DN | 50 | 100 | 150 | |
Рабочее давление, Па (мм вод. ст.), не более | 1000 (100) | 2400 | ||
Рабочий вакуум, Па (мм вод. ст.), не более | 250 (25) | 270 (27) | ||
Давление срабатывания, Па (мм вод. ст.), не более | 900 (90) | 2500 (250) | ||
Вакуум срабатывания, Па (мм вод. ст.), не более | 150 (15) | 270 (27) | ||
Пропускная способность, м3/ч, не более | 22 | 120 | 200 | |
Габаритные размеры, мм, не более: | длина L | 170 | 220 | 295 |
ширина | 140 | 205 | 260 | |
высота H | 176 | 271 | 288 | |
Присоединительные размеры, мм: | D | 140 | 205 | 260 |
D1 | 110 | 170 | 225 | |
d | 14 | 18 | 18 | |
n | 4 | 4 | 8 | |
Масса, кг, не более | 4 | 7 | 14 |
Сведения для монтажа
Обозначение клапана | Ответный фланец (ГОСТ 12820-80) | Прокладка (ГОСТ 15180-86) | Болт (ГОСТ 7798-70) | Гайка (ГОСТ 5915-70) |
КДЗТ-50 | 1-50-2,5 | А-50-2,5-ПМБ | М12-6g х45.58 | М12-6Н.5 |
КДЗТ-100 | 1-100-2,5 | А-100-2,5-ПМБ | М16-6g х50.58 | М16-6Н.5 |
КДЗТ-150 | 1-150-2,5 | А-150-2,5-ПМБ | М16-6g х55.58 | М16-6Н.5 |