Вы здесь
Люк световой ЛС
Световой люк ЛС предназначен для монтажа на вертикальные цилиндрические резервуары, используемые для хранения нефтепродуктов.
Люк выполняет несколько функций: обеспечивает доступ естественного освещения внутрь резервуара, позволяет проводить визуальный осмотр внутреннего пространства, а также способствует проветриванию во время планового или профилактического ремонта и технологической очистки.
Люк также служит для подъема крышек хлопушек в случае обрыва рабочего троса. Его конструкция гарантирует герметичность соединения, предотвращая выброс и испарение паров из резервуара.
Устанавливается люк на крыше резервуара над хлопушкой, которая размещается на приемо-раздаточном патрубке.
В зависимости от климатических условий эксплуатации световые люки ЛС выпускаются в двух вариантах – У и УХЛ, с категорией размещения 1 по ГОСТ 15150-69.
Для удобства эксплуатации люк может быть оснащен поворотным механизмом. Он производится с номинальными диаметрами Ду200, Ду300, Ду400, Ду500, Ду600 и Ду1000 мм.
Особенности люка ЛС
- Температура окружающей среды: до - 60°С;
- Климатическое исполнение и категория размещения по ГОСТ 15150-69: У, УХЛ;
- Категория размещения: 1 по ГОСТ 15150-69;
- Присоединение к резервуару: под приварку;
- Регламентирующий документ: ТУ 3689-054-10524112-2006;
- Обозначение: ЛС-200, ЛС-300, ЛС-400, ЛС-500, ЛС-500П, ЛС-600, ЛС-1000, ЛЩП-500;
- Средний срок службы люка светового, не менее: 20 лет;
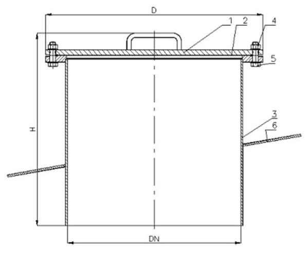
Устройство люка светового ЛС
- Крышка;
- Прокладка;
- Корпус;
- Гайка;
- Болт;
- Усиливающая накладка.
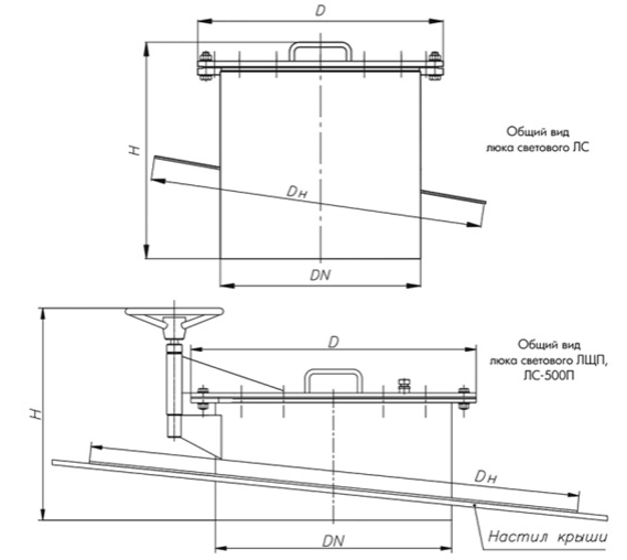
Габаритные размеры люка ЛС
Технические характеристики люка ЛС
Обозначение | DN | D | H | Dh | Масса, кг |
ЛС-200 | 400 | 350 | 362 | 440 | 32 |
ЛС-300 | 300 | 455 | 500 | 650 | 55 |
ЛС-400 | 400 | 535 | 462 | 860 | 69 |
ЛС-500 | 500 | 640 | 562 | 1100 | 104 |
ЛС-500П | 500 | 640 | 600 | 1100 | 110 |
ЛС-600 | 600 | 760 | 562 | 1160 | 140 |
ЛС-1000 | 1000 | 1175 | 603 | 1500 | 200 |
ЛЩП-500 | 500 | 640 | 477 | 1100 | 88 |