Вы здесь
Грядирня ГРАД-400
Градирни ГРАД-400 изготавливаются с корпусом из нержавеющей стали по одновентиляторной схеме с нижним расположением вентилятора.
Форсунки, ороситель и каплеотделитель градирен изготавливается из высококачественных пластмасс.
Градирни серии ГРАД долговечны, эффективны и хорошо зарекомендовали себя при работе в летних и зимних условиях.
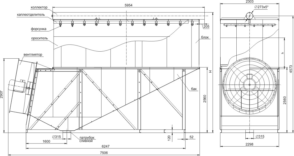
Габаритные размеры градирни ГРАД-400

Технические характеристики градирни ГРАД-400
| Количество охлаждаемой воды, м3/час | 400 |
| Площадь поверхности оросителя, м2 | 2670 |
| Расчетный тепловой поток при разности температур по воде Δt=5оС, кВт | 2325 |
| Диапазон регулирования производительности, % | 35-100 |
| Площадь орошения, м2 | 13 |
| Количество форсунок, шт | 72 |
| Количество вентиляторов, шт | 1 |
| Тип вентилятора | 13-284 |
| Диаметр рабочего колеса, мм | 2000 |
| Частота вращения колеса вентилятора, об/мин | 750 |
| Установленная мощность электродвигателя, кВт | 22 |
| Уровень звука на расстоянии 1 м, дБА | 107 |
| Напряжение/частота сети, В/Гц | 380/50 |
| Масса, кг | 3240 |



