Вы здесь
Грядирня ГРАД-90M
Градирни ГРАД-90M изготавливаются с корпусом из нержавеющей стали по одновентиляторной схеме с нижним расположением вентилятора.
Форсунки, ороситель и каплеотделитель градирен изготавливается из высококачественных пластмасс.
Градирни серии ГРАД и НИАГАРА долговечны, эффективны и хорошо зарекомендовали себя при работе в летних и зимних условиях.
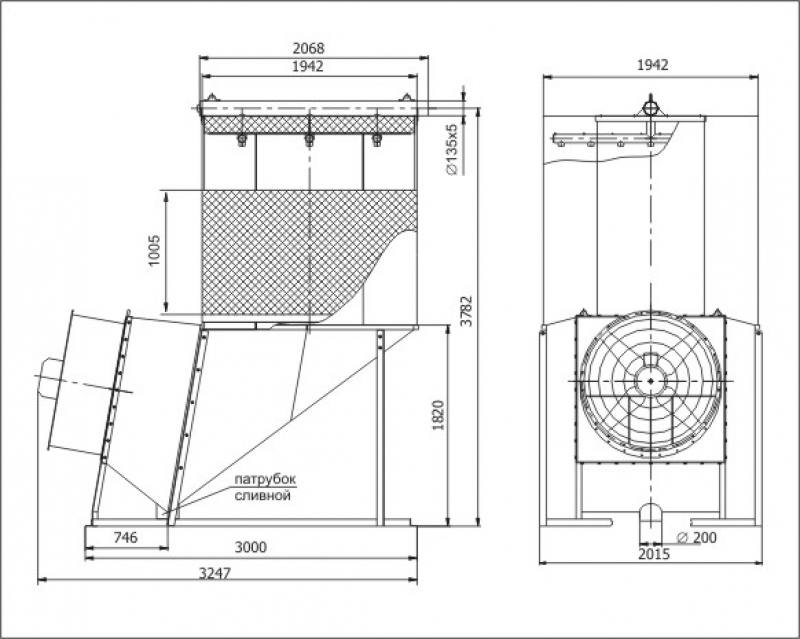
Габаритные размеры градирни ГРАД-90M

Технические характеристики градирни ГРАД-90M
| Количество охлаждаемой воды, м3/час | 90 |
| Площадь поверхности оросителя, м2 | 756 |
| Расчетный тепловой поток при разности температур по воде Δt=5оС, кВт | 550 |
| Диапазон регулирования производительности, % | 35-100 |
| Площадь орошения, м2 | 3.77 |
| Количество форсунок, шт | 21 |
| Количество вентиляторов, шт | 1 |
| Тип вентилятора | 13-284 |
| Диаметр рабочего колеса, мм | 1250 |
| Частота вращения колеса вентилятора, об/мин | 750 |
| Установленная мощность электродвигателя, кВт | 4 |
| Уровень звука на расстоянии 1 м, дБА | 92 |
| Напряжение/частота сети, В/Гц | 380/50 |
| Масса, кг | 990 |



