Вы здесь
Воздухоохладители PGDX
Воздухоохладители PGDX применяются для центрального охлаждения воздуха в вентиляционных системах.
Также используются для индивидуального охлаждения воздуха в отдельных помещениях или зонах.
Особенности воздухоохладителей PGDX
- 8 стандартных типоразмеров;
- Одинаковая модель для левого и правого монтажа;
- Нержавеющий каплесборник для водного конденсата;
- Каплеотделитель можно монтировать независимо от направления воздуха;
- Каплесборник легко демонтируем для чистки и контроля;
- Оребрение с покрытием «Hydrofil» для лучшего отвода воды;
- Хороший доступ к батарейной вставке для её чистки через демонтируемый каплесборник.
Кожух изготовлен из листовой стали с алюминиево-цинковым покрытием AZ 185.
Нержавеющий каплесборник для водного конденсата с подсоединением к канализации (R½”).
Демонтируемый каплесборник для контроля и чистки батареи.
Воздухоохладители PGDX предназначены для монтажа в горизонтальных воздуховодах с произвольным направлением воздуха (поворотная батарейная вставка). Поставляется под давлением 2 бар.
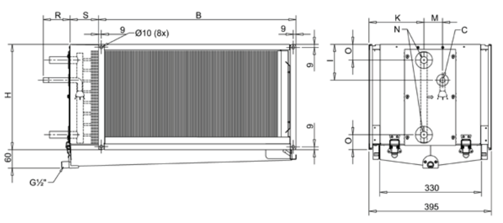
Габаритные размеры воздухоохладителей PGDX

| Модель | B, мм | H, мм | S, мм | R, мм | I, мм | O, мм | K, мм | M, мм | N ∅, мм | C ∅ | Внутренний объём трубы, L | DE |
| PGDX 400x200-3-2,5 | 438 | 238 | 90 | 105 | 70 | 100 | 165 | 60 | 19 | 1/2’’ | 0,69 | DE 40x20 |
| PGDX 500x250-3-2,5 | 558 | 288 | 90 | 105 | 120 | 30 | 165 | 60 | 22 | 1/2’’ | 1,09 | DE 50x25 |
| PGDX 500x300-3-2,5 | 558 | 338 | 90 | 105 | 175 | 30 | 165 | 60 | 22 | 1/2’’ | 1,30 | DE 50x30 |
| PGDX 600x300-3-2,5 | 638 | 338 | 90 | 105 | 170 | 30 | 165 | 60 | 22 | 5/8’’ | 1,56 | DE 60x30 |
| PGDX 600x350-3-2,5 | 638 | 388 | 90 | 105 | 220 | 30 | 165 | 60 | 22 | 5/8’’ | 1,82 | DE 60x35 |
| PGDX 700x400-3-2,5 | 738 | 438 | 120 | 115 | 250 | 30 | 160 | 75 | 35 | 5/8’’ | 3,14 | DE 70x40 |
| PGDX 800x500-3-2,5 | 838 | 538 | 120 | 115 | 340 | 30 | 160 | 75 | 35 | 5/8’’ | 4,49 | DE 80x50 |
| PGDX 1000x500-3-2,5 | 1038 | 538 | 120 | 115 | 350 | 30 | 160 | 75 | 35 | 5/8’’ | 5,61 | DE 100x50 |
Аэродинамические характеристики воздухоохладителей PGDX




