Вы здесь
Плоские приточные и вытяжные установки типа FLG
Приточно-вытяжные установки FLG предназначены для применения в системах вентиляции и кондиционирования воздуха жилых, общественных, коммерческих и промышленных зданий.
Особенности конструкции
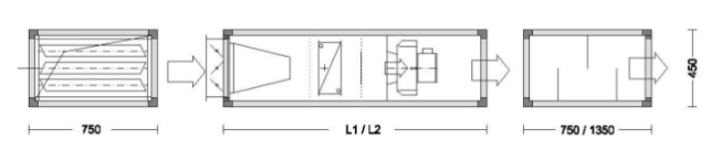
Установки FLG являются специализированными вариантами серии KLG и основаны на блочно-модульной конструкции. Они собираются из определённых типов секций четырёх типоразмеров: 012, 018, 022 и 028.
Компактная высота корпуса позволяет устанавливать устройства за подвесными потолками и в ограниченных пространствах. Монтаж возможен на стене или потолке, как в вертикальном, так и в горизонтальном положении. Стандартный способ крепления — подвесной, без монтажной рамы. Обслуживание выполняется с нижней стороны.
Корпус
Плоская конструкция корпуса идеально подходит для установки за подвесными потолками и в небольших помещениях. Корпус разбирается, изготовлен из оцинкованных двухслойных панелей с алюминиевым профилем в рамке. В качестве изоляции используется пенополиуретан толщиной 35 мм. Обеспечивается низкий уровень шума и простой монтаж. Для подвешивания и соединения секций применяются резьбовые втулки.
Вентилятор
Вентилятор встроен в приточную или вытяжную часть установки. Безкорпусной тип с двигателем внешнего ротора и встроенным регулятором скорости. Двигатель необслуживаемый, с термоконтактной защитой.
Нагреватель
В приточной установке может быть установлен один из вариантов нагревателя:
- Водяной нагреватель из меди и алюминия с патрубками, выведенными на одну сторону, с возможностью подключения справа или слева и простой сменой стороны на месте.
- Электрический нагреватель с оребрёнными элементами, обладающими низкой температурой поверхности. Имеется встроенное тепловое реле для защиты от перегрева.
Охладитель
Водяной охладитель или испаритель встроен в секцию, выполненную из меди и алюминия, с патрубками, выведенными на одну сторону и возможностью выбора стороны подключения (справа или слева) с лёгкой сменой на месте. Ванна для конденсата изготовлена из нержавеющей стали и предназначена для потолочного монтажа.
Воздушный фильтр
Встроенный карманный фильтр класса G4, который вынимается вбок для удобства обслуживания.
Секция шумоглушителя
Устанавливается с напорной или всасывающей стороны. Корпус двухслойный, кулисы имеют поверхность, устойчиваю к износу.
Смесительная секция
Используется для комбинирования с приточной установкой, работает с наружным и рециркуляционным воздухом. Доступна в исполнениях с двумя или тремя клапанами, также подходит для приточно-вытяжных систем.
Принадлежности
Монтажные комплекты для настенного или потолочного крепления включают все необходимые крепежные элементы и виброизоляторы.
Система управлении
Установки FLG комплектуются системами автоматического управления. Система автоматики позволяет производить регулирование температуры приточного воздуха и плавное регулирование числа оборотов вентилятора.
В зависимости от состава установки они могут комплектоваться следующими системами автоматики:
- FLG0…-PW – CA-1
- FLG0…-PE – CA-1
- FLG0…-PWKW (Kf) – C-4
- FLG…-PM – CA-2
Обозначение секций установок:
- W – секция водяного нагревателя
- E – секция электрического нагревателя
- Kw – секция водяного охладителя
- Kf – секция фреонового охладителя
- SD – секция шумоглушителя
- A – вытяжная установка
- M – камера смешения
- P – плавное регулирование оборотов вентилятора
Пример обозначения установок разной комплектации
Габаритные размеры FLG
FLG | мм | 012 | 018 | 022 | 028 |
Секция вентилятора тип мотор-колесо | L | 465 | 465 | 565 | 565 |
A | 750 | 750 | 750 | 1050 | |
В | 380 | 410 | 450 | 450 | |
Секция клапана | L | 170 | 170 | 170 | 170 |
См. АхВ в описании клапана, в зависимости | |||||
от отношения сечения клапана к сечению установки | |||||
Секция смешения | L | L=L клапана +76+35 и выбрать L секции | |||
A | 750 | 750 | 750 | 1050 | |
В | 380 | 410 | 450 | 450 | |
Секция карманного фильтра длина кармана 125 | L | 335 | 335 | 335 | 335 |
A | 750 | 750 | 750 | 1050 | |
В | 380 | 410 | 450 | 450 | |
Секция воздухонагревателя водяного | L | 335 | 335 | 335 | 335 |
A | 750 | 750 | 750 | 1050 | |
В | 380 | 410 | 450 | 450 | |
Секция воздухонагревателя электрического | L* | 525/750 | 525/750 | 525/750 | 525/750 |
A | 750 | 750 | 750 | 1050 | |
В | 380 | 410 | 450 | 450 | |
Секция воздухоохладителя | L | 525 | 525 | 525 | 525 |
A | 750 | 750 | 750 | 1050 | |
В | 380 | 410 | 450 | 450 | |
Секция шумоглушения L1 – 600 мм L2 – 900 мм L3 – 1400 мм | L1 | 750 | 750 | 750 | 750 |
L2 | 1090 | 1090 | 1090 | 1090 | |
L3 | 1465 | 1465 | 1465 | 1465 | |
A | 750 | 750 | 750 | 1050 | |
В | 380 | 410 | 450 | 450 |
Рабочие диапазоны расходов воздуха
Технические характеристики FLG 012
Приточная установка FLG 012 –P - W (E) с водяным или электрическим нагревателем
- L1=1085 мм с водяным нагревателем
- L2=1275 мм с электронагревателем
Приточная установка FLG 012 – P – W – Kw (Kf) с нагревателем и водяным или фреоновым охладителем
- L3=1275 мм с водяным нагревателем и охладителе
- L3=1465 мм с электронагревателем и охладителем
Таблица свободного напора
Напорные хар-ки | Расход воздуха, м3/ч | ||||||||||
400 | 500 | 600 | 700 | 800 | 900 | 1000 | 1100 | 1200 | 1300 | 1400 | |
1 | 950 | 940 | 895 | 870 | 800 | 750 | 690 | 605 | 560 | 500 | 395 |
2 | 940 | 930 | 890 | 855 | 790 | 730 | 660 | 580 | 540 | 450 | 370 |
3 | 925 | 910 | 880 | 840 | 770 | 710 | 650 | 565 | 520 | 415 | 320 |
4 | 940 | 930 | 890 | 855 | 790 | 730 | 660 | 580 | 540 | 450 | 370 |
Воздухозаборный клапан
-
Клапан из алюминиевых профилей.
- Количество лопаток-2 шт.
- Размер живого сечения 608х211, глубина 105 мм.
- Исполнительный механизм с возвратной пружиной Gruner 341-230-05
- Nуст.=5 Вт, 230 V
Фильтр
- Грубой очистки класса G4.
- Степень фильтрации 92%
- Кассетного типа
Водяной нагреватель
- Медно-аллюминиевый. Труба для подключения 20 мм°
Т вход. воздуха, оС | Расход воздуха | |||||
600 | 900 | 1200 | ||||
Q, кВт | T вых., оС | Q, кВт | T вых., оС | Q, кВт | T вых., оС | |
-40 | 16,8 | 27,2 | 19,6 | 21,4 | 23,3 | 17,0 |
-35 | 15,9 | 28,6 | 18,8 | 23,1 | 22,2 | 18,9 |
-30 | 15,0 | 30,0 | 17,9 | 24,9 | 21,0 | 20,7 |
-25 | 14,0 | 31,4 | 16,9 | 26,7 | 19,6 | 22,4 |
-20 | 13,1 | 32,4 | 15,5 | 27,9 | 18,2 | 24,3 |
-15 | 12,2 | 33,8 | 14,6 | 29,8 | 17,0 | 26,0 |
-10 | 11,3 | 35,2 | 13,5 | 31,6 | 15,8 | 27,9 |
Характеристики для теплоносителя 90-70 °С
*Промежуточные значения выполняются интерполяцией
Потери давления по воде
Тепловые нагрузки, кВт | 10 | 12 | 14 | 16 | 18 | 20 | 22 | 24 | 26 | 28 |
Расход воды, м3/ч | 0,43 | 0,52 | 0,6 | 0,69 | 0,77 | 0,86 | 0,95 | 1,03 | 1,12 | 1,2 |
Потери давления, кПа | 1,6 | 2,3 | 3,3 | 4,4 | 5,6 | 6,8 | 7,9 | 8,9 | 10,0 | 12 |
Электрический нагреватель
Расход воздуха, м3/ч | 600 | 900 | 1200 |
Установка мощностью, кВт | 12 | 18 | 24 |
Количество нагревательных элементов | 6х2кВт | 9х2кВт | 12х2кВт |
Количество ступеней нагрева | 1 | 1 | 1 |
Нагрев воздуха на оС (∆ t) | 55 | 55 | 55 |
Фреоновый охладитель
- Медно-алюминиевый. Труба для подключения 20 мм.
- Испаритель R22
- Температура испарения 5 оС
- Влажность воздуха 50%
t вход. воздуха | Расход воздуха, м3/ч | |||||
600 | 900 | 1200 | ||||
Q, кВт | T вых., оС | Q, кВт | T вых., оС | Q, кВт | T вых., оС | |
32 | 8,6 | 13,4 | 10,6 | 14,9 | 12,1 | 16,2 |
30 | 7,4 | 12,9 | 9,1 | 14,3 | 10,5 | 15,4 |
28 | 6,3 | 12,5 | 7,7 | 13,7 | 8,9 | 14,7 |
26 | 5,2 | 12,0 | 6,4 | 13,1 | 7,4 | 14,0 |
ККБ подбирается на максимальную холодопроизводительность 12,5 кВт
Водяной охладитель
- Медно-алюминиевый. Труба для подключения 20 мм.
- Характеристики воды 6-12 оС
- Вход. воздуха 50%
t вход. воздуха оС | Расход воздуха, м3/ч | |||||
600 | 900 | 1200 | ||||
Q, кВт | T вых., оС | Q, кВт | T вых., оС | Q, кВт | T вых., оС | |
32 | 7,1 | 16,0 | 8,6 | 17,3 | 10,0 | 18,3 |
30 | 5,8 | 15,6 | 7,1 | 16,8 | 8,2 | 17,7 |
28 | 4,7 | 15,2 | 5,6 | 16,3 | 6,4 | 17,1 |
26 | 3,6 | 14,8 | 4,2 | 15,8 | 4,9 | 16,5 |
Потери давления по воде
Мощность холодо-производительности, кВт | 3 | 4 | 5 | 6 | 7 | 8 | 9 | 10 | 11 | 12 |
Расход воды, м3/ч | 0,43 | 0,57 | 0,72 | 0,86 | 1,0 | 1,17 | 1,29 | 1,44 | 1,58 | 1,72 |
Потери давления, кПа | 1,1 | 1,8 | 2,8 | 3,8 | 5,0 | 6,2 | 7,7 | 9,4 | 11,2 | 13,2 |
Чиллер подбирается на максимальную холодопроизводительность 12,5 кВт.
Максимальный расход воды 2 м3/ч с параметрами 6-12 оС
Вентилятор
- Тип R3G 250 АК41-71
- Выхлоп по оси. Встроенный регулятор скорости вращения.
- Nпотр.=0,5 кВт, напряжение 220V/50Гц,сила тока I=3А, скорость вращения n=3580 об/мин.
- Характеристики вентилятора даны для максимального режима работы.
Шумоглушитель
- Пластинчатый
Обозначение | Габаритные размеры АхВхh,мм | Размер пластин, мм | Кол-во пластин, шт. | Шумоглу- шение, дБ | Общая масса, кг |
SD012-1 | 750х750х380 | 200х310х630 | 2 | 14 | 40 |
SD012-2 | 1310х750х380 | 200х310х1190 | 2 | 23 | 67 |
Гибкие вставки
- Размеры живого сечения / длина max-min, мм
- На всасе: 638х221/150-110 мм
- На выхлопе: 640х270/150- 110 мм
Общие данные
Тип установки | Длина без клапана и гибкой вставки, мм | Ширина, мм | Высота, мм | Вес (без ш/глушителя, холод. машины и камеры смешения), кг |
FLG012-PW | 1085 | 750 | 380 | 55 |
FLG012-PE | 1275 | 750 | 380 | 58 |
FLG012-Kw(Kf) | 1275 | 750 | 380 | 62 |
Технические характеристики FLG 018
Приточная установка FLG 018 –P - W (E) с водяным или электрическим нагревателем
- L1= 1200 мм - с водяным нагревателем;
- L2= 1390 мм - с электронагревателем.
Приточная установка FLG 018 – P – W – Kw (Kf) с нагревателем и водяным или фреоновым охладителем
- L3= 1390 мм - с водяным нагревателем и охладителем;
- L4= 1580 мм - с электронагревателем и охладителем.
Таблица свободного напора
№ хар-ки | Расход воздуха, м3/ч | ||||||||||||
800 | 900 | 1000 | 1100 | 1200 | 1300 | 1400 | 1500 | 1600 | 1700 | 800 | 1900 | 2000 | |
1 | 710 | 670 | 650 | 615 | 600 | 555 | 545 | 500 | 470 | 425 | 380 | 330 | 280 |
2 | 700 | 660 | 640 | 600 | 585 | 545 | 520 | 480 | 440 | 400 | 340 | 305 | 250 |
3 | 660 | 620 | 590 | 535 | 500 | 450 | 420 | 380 | 320 | 275 | 210 | 180 | 100 |
4 | 650 | 600 | 675 | 525 | 485 | 440 | 400 | 370 | 295 | 250 | 185 | 155 | 75 |
Воздухозаборный клапан
- Клапан из алюминиевых профилей.
- Количество лопаток-2 шт.
- Размер живого сечения 608х211, глубина 105 мм.
- Исполнительный механизм с возвратной пружиной Gruner 341-230-05 5 Вт, 230V
Фильтр
- Грубой очистки класса G4. Кассетного типа.
- Степень фильтрации 92%
- Кассетного типа
Водяной нагреватель
- Медно-аллюминиевый. Труба для подключения 25 мм°
Т вход. воздуха, оС | Расход воздуха | |||||
600 | 900 | 1200 | ||||
Q, кВт | T вых., оС | Q, кВт | T вых., оС | Q, кВт | T вых., оС | |
-40 | 16,8 | 27,2 | 19,6 | 21,4 | 23,3 | 17,0 |
-35 | 15,9 | 28,6 | 18,8 | 23,1 | 22,2 | 18,9 |
-30 | 15,0 | 30,0 | 17,9 | 24,9 | 21,0 | 20,7 |
-25 | 14,0 | 31,4 | 16,9 | 26,7 | 19,6 | 22,4 |
-20 | 13,1 | 32,4 | 15,5 | 27,9 | 18,2 | 24,3 |
-15 | 12,2 | 33,8 | 14,6 | 29,8 | 17,0 | 26,0 |
-10 | 11,3 | 35,2 | 13,5 | 31,6 | 15,8 | 27,9 |
Характеристики для теплоносителя 90-70 °С
*Промежуточные значения выполняются интерполяцией
Потери давления по воде
Тепловые нагрузки, кВт | 10 | 12 | 14 | 16 | 18 | 20 | 22 | 24 | 26 | 28 |
Расход воды, м3/ч | 0,43 | 0,52 | 0,6 | 0,69 | 0,77 | 0,86 | 0,95 | 1,03 | 1,12 | 1,2 |
Потери давления, кПа | 1,6 | 2,3 | 3,3 | 4,4 | 5,6 | 6,8 | 7,9 | 8,9 | 10,0 | 12 |
Электрический нагреватель
Расход воздуха, м3/ч | 600 | 900 | 1200 |
Установка мощностью, кВт | 12 | 18 | 24 |
Количество нагревательных элементов | 6х2кВт | 9х2кВт | 12х2кВт |
Количество ступеней нагрева | 1 | 1 | 1 |
Нагрев воздуха на оС (∆ t) | 55 | 55 | 55 |
Фреоновый охладитель
- Медно-алюминиевый. Труба для подключения 20 мм.
- Испаритель R22
- Температура испарения 5 оС
- Влажность воздуха 50%
t вход. воздуха, оС | Расход воздуха, м3/ч | |||||
1200 | 1500 | 1800 | ||||
Q, кВт | t вых., оС | Q, кВт | t вых.,оС | Q, кВт | t вых.оС | |
32 | 12.1 | 16.2 | 13.6 | 17.2 | 16.2 | 16.8 |
30 | 10.5 | 15.4 | 11.7 | 16.4 | 14.9 | 15.2 |
28 | 8.9 | 14.7 | 10. | 15.5 | 12.6 | 14.4 |
26 | 7.4 | 14.0 | 8.3 | 14.7 | 10.5 | 13.9 |
ККБ подбирается на максимальную холодопроизводительность 16 кВт
Водяной охладитель
- Медно-алюминиевый. Труба для подключения 25 мм.
- Характеристики воды 6-12 °С
- Вход. воздуха 50%
t вход. воздуха, оС | Расход воздуха, м3/ч | |||||
1200 | 1500 | 1800 | ||||
Q, кВт | T вых., оС | Q, кВт | T вых., оС | Q, кВт | T вых., оС | |
32 | 10 | 18,3 | 11,2 | 19,1 | 12,3 | 19,0 |
30 | 8,2 | 17,7 | 9,1 | 18,5 | 11,0 | 18,2 |
28 | 6,4 | 17,1 | 7,2 | 17,8 | 9,6 | 17,4 |
26 | 4,9 | 16,5 | 5,4 | 17,1 | 8,7 | 17,2 |
Потери давления по воде
Мощность холодопроизводительности, кВт | 5 | 6 | 7 | 8 | 9 | 10 | 11 | 12 | 13 | 14 |
Расход воды, м3/ч | 0,72 | 0,86 | 1,0 | 1,17 | 1,29 | 1,44 | 1,58 | 1,72 | 1,86 | 2,0 |
Потери давления, кПа | 2,8 | 3,8 | 5,0 | 6,2 | 7,7 | 9,4 | 11,2 | 13,2 | 15,2 | 17,2 |
Чиллер подбирается на максимальную холодопроизводительность 13,5 кВт.
Максимальный расход воды 2 м3/ч с параметрами 6-12 оС
Вентилятор
- Тип R3G 280AT 04-71.
- Выхлоп по оси. Встроенный регулятор скорости вращения.
- Nпотр.=0,475 кВт, напряжение 220V/50Гц, сила тока I=2,7А, скорость вращения n=2400 об/мин.
- Характеристики вентилятора даны для максимального режима работы.
Шумоглушитель
- Пластинчатый
Обозначение | Габаритные размеры АхВхh, мм | Размер пластин, мм | Кол-во пластин, шт. | Шумо- глушение, дБ | Общая масса, кг |
SD018-1 | 750х750х410 | 200х340х700 | 2 | 14 | 42 |
SD018-2 | 1310х750х410 | 200х340х1190 | 2 | 23 | 69 |
Гибкие вставки
- Размеры живого сечения/длина max-min, мм
- на всасе: 638х221/150÷110мм
- на выхлопе: 640х300/150÷110мм
Общие данные
Тип установки | Длина без клапана и гибкой вставки, мм | Ширина, мм | Высота, мм | Вес (без ш/глушителя, холод. машины и камеры смешения), кг |
FLG018-PW | 1200 | 750 | 410 | 59 |
FLG018-PE | 1390 | 750 | 410 | 83 |
FLG018-Kw (Kf) | 1390 | 750 | 410 | 89 |
Технические характеристики FLG 022
Приточная установка FLG 022 –P - W (E) с водяным или электрическим нагревателем
- L1=1200мм - с водяным нагревателем;
- L2=1390мм - с электрокалорифером.
Приточная установка FLG 022 – P – W – Kw (Kf) с нагревателем и водяным или фреоновым охладителем
- L3=1390мм - с водяным нагревателем и охладителем;
- L4=1580мм - с электрокалорифером и охладителем.
Таблица свободного напора
Расход воздуха, м3/ч | |||||||||||||
№ Хар-ки | 800 | 900 | 1000 | 1100 | 1200 | 1300 | 1400 | 1500 | 1600 | 1700 | 1800 | 1900 | 2000 |
1 | 1100 | 1100 | 1100 | 1095 | 1085 | 1060 | 1045 | 1020 | 960 | 940 | 890 | 830 | 800 |
2 | 1095 | 1095 | 1095 | 1090 | 1080 | 1055 | 1035 | 1010 | 940 | 905 | 850 | 815 | 775 |
3 | 1050 | 1050 | 1050 | 1030 | 995 | 975 | 940 | 905 | 825 | 795 | 730 | 675 | 625 |
4 | 1040 | 1040 | 1040 | 1025 | 985 | 970 | 925 | 900 | 815 | 785 | 700 | 650 | 595 |
Воздухозаборный клапан
- Клапан из алюминиевых профилей.
- Количество лопаток-2 шт.
- Размер живого сечения 608х211, глубина 105 мм.
- Исполнительный механизм с возвратной пружиной Gruner 341-230-05 5 Вт, 230V
Фильтр
- Грубой очистки класса G4. Кассетного типа.
- Степень фильтрации 92%
- Кассетного типа
Водяной нагреватель
- Медно-аллюминиевый. Труба для подключения 25 мм°
T вход. воздуха, оС | Расход воздуха, м3/ч | |||||
1500 | 1750 | 2200 | ||||
Q, кВт | t вых., оС | Q, кВт | t вых., оС | Q, кВт | t вых., оС | |
-40 | 29,9 | 19,8 | 33,4 | 17,3 | 43,0 | 17,7 |
-35 | 28,3 | 21,6 | 31,0 | 18,1 | 41,3 | 17,8 |
-30 | 26,6 | 23,2 | 28,6 | 19,0 | 40,6 | 18,0 |
Потери давления по воде
Тепловые нагрузки, кВт | 18 | 21 | 24 | 27 | 30 | 33 | 36 | 39 | 42 | 45 |
Расход воды, м3/ч | 0,77 | 0,9 | 1,03 | 1,16 | 1,29 | 1,42 | 1,55 | 1,68 | 1,81 | 1,94 |
Потери давления, кПа | 1,5 | 2,2 | 2,6 | 3,3 | 3,7 | 4,7 | 5,7 | 6,7 | 7,8 | 8,9 |
Электрический нагреватель
Расход воздуха, м3/ч | 1500 | 1800 | 2200 |
Установочная мощность, кВт | 30 | 30 | 30 |
Нагревательный элемент, кВт | 15х2,0кВт | 15х2,0кВт | 15х2,0кВт |
Кол-во ступеней | 1 | 1 | 1 |
∆t, оС | 55 | 46 | 38 |
Фреоновый охладитель
- Медно-алюминиевый. Труба для подключения 20 мм.
- Испаритель R22
- Температура испарения 5 оС
- Влажность воздуха 50%
t вход. воздуха, оС | Расход воздуха, м3/ч | |||||
1500 | 1750 | 2200 | ||||
Q, кВт | t вых., оС | Q, кВт | t вых.,оС | Q, кВт | t вых.оС | |
32 | 15,7 | 15,1 | 17,2 | 16,0 | 19,9 | 17,3 |
30 | 13,5 | 14,5 | 14,9 | 15,2 | 17,1 | 16,5 |
28 | 11,4 | 13,9 | 12,9 | 14,4 | 14,6 | 15,6 |
26 | 9,4 | 13,3 | 10,5 | 13,9 | 12,1 | 14,8 |
ККБ подбирается на максимальную холодопроизводительность 21 кВт
Водяной охладитель
- Медно-алюминиевый. Труба для подключения 25 мм.
- Характеристики воды 6-12 °С
- Вход. воздуха 50%
t вход. воздуха, оС | Расход воздуха, м3/ч | |||||
1500 | 1750 | 2200 | ||||
Q, кВт | T вых., оС | Q, кВт | T вых., оС | Q, кВт | T вых., оС | |
32 | 13,2 | 17,2 | 14,6 | 17,9 | 16,9 | 18,9 |
30 | 10,9 | 16,6 | 12,0 | 17,3 | 13,9 | 18,2 |
28 | 8,7 | 16,1 | 9,6 | 16,7 | 11,0 | 17,6 |
26 | 6,7 | 15,6 | 7,3 | 16,1 | 8,4 | 16,9 |
Потери давления по воде
Мощность холодо-производительности, кВт | 8 | 10 | 12 | 14 | 15 | 16 | 17 | 18 | 19 | 20 | 22 |
Расход воды, м3/ч | 1,17 | 1,44 | 1,72 | 2,0 | 2,14 | 2,29 | 2,44 | 2,58 | 2,72 | 2,87 | 3,15 |
Потери давления, кПа | 3,6 | 5,5 | 7,5 | 10 | 11,2 | 12,6 | 14,2 | 15,7 | 17,3 | 19,0 | 20,6 |
Чиллер подбирается на максимальную холодопроизводительность 18 кВт.
Максимальный расход воды 3.5 м3/ч с параметрами 6-12 оС
Вентилятор
- Тип R3G 280AU 11-C1.
- Выхлоп по оси. Встроенный регулятор скорости вращения.
- Nпотр.=1,0 кВт, напряжение 380V/50Гц, сила тока I=1,6А, скорость вращения
- n=3100 об/мин.
- Характеристики вентилятора даны для максимального режима работы.
Шумоглушитель
- Пластинчатый
Обозначение | Габаритные размеры АхВхh, мм | Размер пластин, мм | Кол-во пластин, шт. | Шумоглу- шение, дБ | Общая масса, кг |
SD022-1 | 750х750х450 | 200х380х680 | 2 | 14 | 45 |
SD022-2 | 1350х750х450 | 200х380х1280 | 2 | 23 | 76 |
Гибкие вставки
- Размеры живого сечения/длина max-min, мм
- на всасе: 638х321/150÷110мм
- на выхлопе: 640х340/150÷110мм
Общие данные
Тип установки | Длина без клапана и гибкой вставки, мм | Ширина, мм | Высота, мм | Вес (без ш/глушителя, холод. машины и камеры смешения), кг |
FLG022-PW | 1200 | 750 | 450 | 65 |
FLG022-PE | 1390 | 750 | 450 | 85 |
FLG022-Kw (Kf) | 1390 | 750 | 450 | 92 |
Технические характеристики FLG 028
Приточная установка FLG 028 –P - W (E) с водяным или электрическим нагревателем
- L1=1200мм - с водяным нагревателем;
- L2=1390мм - с электронагревателем.
Приточная установка FLG 028 – P – W – Kw (Kf) с нагревателем и водяным или фреоновым охладителем
- L3=1390мм - с водяным нагревателем и охладителем;
- L4=1580мм - с электронагревателем и охладителем.
Таблица свободного напора
№ хар-ки | Расход воздуха, м3/ч | |||||||||||||
1800 | 1900 | 2000 | 2100 | 2200 | 2300 | 2400 | 2500 | 2600 | 2700 | 2800 | 2900 | 3000 | 3100 | |
1 | 700 | 695 | 675 | 635 | 625 | 595 | 565 | 520 | 485 | 460 | 405 | 390 | 345 | 300 |
2 | 670 | 655 | 630 | 600 | 580 | 550 | 520 | 500 | 450 | 420 | 360 | 340 | 300 | 250 |
3 | 600 | 575 | 550 | 510 | 495 | 455 | 420 | 395 | 325 | 295 | 240 | 225 | 150 | 70 |
4 | 656 | 545 | 520 | 475 | 450 | 405 | 375 | 325 | 280 | 240 | 185 | 155 | 80 | 0 |
Воздухозаборный клапан
- Клапан из алюминиевых профилей.
- Количество лопаток-3 шт.
- Размер живого сечения 908х311, глубина 105 мм.
- Исполнительный механизм с возвратной пружиной Gruner 341-230-05 5 Вт, 230V
Фильтр
- Грубой очистки класса G4. Кассетного типа.
- Степень фильтрации 92%
- Кассетного типа
Водяной нагреватель
- Медно-аллюминиевый. Труба для подключения 32 мм°
T вход. воздуха, оС | Расход воздуха, м3/ч | |||||
2000 | 2500 | 2800 | ||||
Q, кВт | t вых., оС | Q, кВт | t вых., оС | Q, кВт | t вых., оС | |
-40 | 40,2 | 20,3 | 46,5 | 15,8 | 50,3 | 16,1 |
-35 | 37,9 | 21,9 | 43,9 | 17,7 | 48,2 | 17,4 |
-30 | 35,7 | 23,6 | 41,3 | 19,6 | 47,4 | 18,1 |
Потери давления по воде
Тепловые нагрузки, кВт | 28 | 32 | 36 | 40 | 44 | 48 | 52 | 56 | 60 |
Расход воды, м3/ч | 1,2 | 1,38 | 1,55 | 1,72 | 1,89 | 20,6 | 2,24 | 2,41 | 2,58 |
Потери давления, кПа | 1,5 | 2,0 | 2,6 | 3,1 | 3,7 | 4,3 | 4,8 | 5,6 | 6,3 |
Электрический нагреватель
Расход воздуха, м3/ч | 2000 | 2500 | 2800 |
Установка нагревательных элементов | 37,5 | 37,5 | 37,5 |
Количество нагревательных элементов | 15х2,5кВт | 15х2,5кВт | 15х2,5кВт |
Количество ступеней нагрева | 2 | 2 | 2 |
Нагрев воздуха на оС | 52 | 42 | 37 |
Фреоновый охладитель
- Медно-алюминиевый. Труба для подключения 20 мм.
- Испаритель R22
- Температура испарения 5 оС
- Влажность воздуха 50%
t вход. воздуха, оС | Расход воздуха, м3/ч | |||||
2000 | 2500 | 2800 | ||||
Q, кВт | t вых., оС | Q, кВт | t вых.,оС | Q, кВт | t вых.оС | |
32 | 21,1 | 15,0 | 24,3 | 16,2 | 26,4 | 17,1 |
30 | 18,4 | 14,2 | 21,0 | 15,4 | 22,8 | 16,9 |
28 | 15,6 | 13,6 | 18,1 | 14,6 | 19,7 | 16,1 |
26 | 13,1 | 13,0 | 15,1 | 13,9 | 16,5 | 15,5 |
ККБ подбирается на максимальную холодопроизводительность 28 кВт
Водяной охладитель
- Медно-алюминиевый. Труба для подключения 32 мм.
- Характеристики воды 6-12 °С
- Вход. воздуха 50%
t вход. воздуха, оС | Расход воздуха, м3/ч | |||||
1200 | 1500 | 1800 | ||||
Q, кВт | T вых., оС | Q, кВт | T вых., оС | Q, кВт | T вых., оС | |
32 | 18,4 | 16,7 | 21,4 | 17,7 | 23,2 | 17,9 |
30 | 15,3 | 16,2 | 17,6 | 17,1 | 19,9 | 17,6 |
28 | 12,3 | 15,7 | 14,2 | 16,5 | 16,6 | 17,2 |
26 | 9,5 | 15,2 | 11,0 | 16,0 | 13,7 | 17,1 |
Потери давления по воде
Мощность холодо- производительности ,кВт | 10 | 12 | 14 | 16 | 18 | 20 | 22 | 24 | 26 | 28 |
Расход воды, м3/ч | 1,44 | 1,72 | 2,0 | 2,29 | 2,58 | 2,87 | 3,15 | 3,44 | 3,73 | 4,01 |
Потери давления,кПа | 3,8 | 5,3 | 7,0 | 8,8 | 11,0 | 13,3 | 15,6 | 18,3 | 21,2 | 24,2 |
Чиллер подбирается на максимальную холодопроизводительность 26 кВт.
Максимальный расход воды 4.0 м3/ч с параметрами 6-12 оС
Вентилятор
- Тип R3G 280AU 11-C1.
- Выхлоп по оси. Встроенный регулятор скорости вращения.
- Nпотр.=1,0 кВт, напряжение 380V/50Гц, сила тока I=1,6А, скорость вращения n=3100 об/мин.
- Характеристики вентилятора даны для максимального режима работы.
Шумоглушитель
- Пластинчатый
Обозначение | Габаритные размеры АхВхh, мм | Размер пластин, мм | Кол-во пластин, шт. | Шумоглe- шение, дБ | Общая масса, кг |
SD028-1 | 750х1050х450 | 200х380х680 | 3 | 14 | 70 |
SD028-2 | 1350х1050х450 | 200х380х1280 | 3 | 23 | 89 |
Гибкие вставки
- Размеры живого сечения/длина max-min, мм
- на всасе: 938х321/150÷110мм
- на выхлопе: 938х338/150÷110мм
Общие данные
Тип установки | Длина без клапана и гибкой вставки, мм | Ширина, мм | Высота, мм | Вес (без ш/глушителя, холод. машины и камеры смешения), кг |
FLG028-PW | 1200 | 1050 | 450 | 86 |
FLG028-PE | 1390 | 1050 | 450 | 98 |
FLG028-Kw (Kf) | 1390 | 1050 | 450 | 105 |