Вы здесь
Канальный фильтр Ventmachine ФКО-600 LED
Канальный фильтр Ventmachine ФКО-600 LED предназначен для совместной работы с приточной вентиляционной установкой «Колибри» и обеспечивает дополнительную трехступенчатую очистку приточного воздуха от пыли, вредных газообразных соединений, молекулярных загрязнений, бактерий и вирусов.
Частично выполняет роль шумоглушителя.
Особенности канального фильтра Ventmachine ФКО-600 LED
- возможность использования с любым вентиляционным оборудованием канального типа;
- компактные размеры;
- шумоглушащие свойства;
- высокая степень очистки воздуха;
- возможность решения задач очистки воздуха в помещениях с высокими требованиями к качеству воздуха;
- простота замены фильтрующего ФКО картриджа;
- Срок службы ультрафиолетовых светодиодов 50 000 часов непрерывной работы (≈ 6 лет).
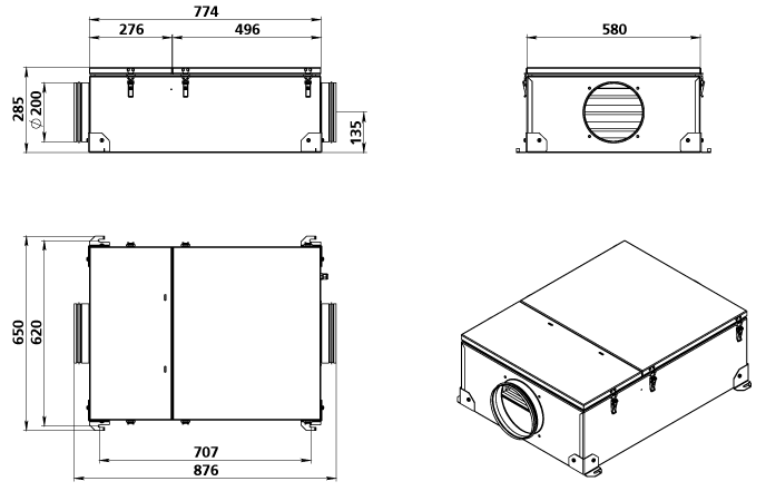
Габаритные размеры канального фильтра Ventmachine ФКО-600 LED

Технические характеристики канального фильтра Ventmachine ФКО-600 LED
| Пропускная способность, м³/час. | 600 | |||
| Потребляемая мощность, Вт | 72 | |||
| Напряжение питания, В / Гц | 220-230 / 50-60 | |||
| Кабель электропитания, мм² | 3 × 0,75 | |||
| Габаритные размеры, мм | 876 × 650 × 285 | |||
| Вес, кг | 25 | |||
| Класс защиты | IP 44 | |||
| Размещение | Внутреннее / Наружное (корпус не утеплен) |
|||
| Степень очистки воздуха | Пылевой фильтр | EU4 | ||
| Фотокаталитический фильтр | Разлагает на безвредные вещества: Аллергены, вирусы, запахи, токсичные органические соединения. Токсичные примеси с молекулярной массой более 40 атомных единиц |
|||
| Адсорбционный фильтр | Гранулированный активированный уголь | |||
| Режим работы | Непрерывный | |||
| Условия эксплуатации: | Температура входного воздуха, °С | -26 / +50 | ||
| Аэродинамическое сопротивление фильтра, Па | 95 | |||



