Вы здесь
Установки для HEPA фильтров AKF
Установки для HEPA фильтров AKF могут подключаться к сети приточных или вытяжных воздуховодов в системах вентиляции и кондиционирования воздуха помещений с самыми высокими требованиями к чистоте воздуха.
Установка может быть использована:
- Для очистки приточного и вытяжного воздуха лабораторий;
- Для очистки приточного и вытяжного воздуха операционных, стерилизационных, помещений инфекционных отделений больниц;
- Для очистки приточного воздуха в производственных помещениях электронной, химической, фармацевтической, пищевой промышленности, на предприятиях точного машиностроения;
- Для очистки приточного воздуха при производстве кинопленок и магнитофонных лент;
- Для очистки приточного и вытяжного воздуха в производственных помещениях ядерной технологии и т.д.
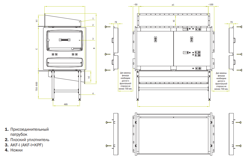
Установка AKF-I состоит из корпуса для фильтров, соединительных фланцев и HEPA фильтров.
Фильтры устанавливаются с уплотнением по всему прямоугольному сечению.
Корпус изготовлен из стальных листов, которые герметично сварены в соответствии с DIN 1946, и окрашен краской RAL 9010.
В корпусе имеются два патрубка для измерения перепада давления на фильтре.
Установка AKF может быть выполнена на базе единичного фильтра AKF-I или нескольких фильтров AKF-II в зависимости от производительности системы вентиляции.
Чтобы заменить фильтр, необходим доступ к AKF-II AKF-I St RAL 9010 F фронтальной стороне установки шириной не менее 700 мм. Выпускается несколько моделей AKF-II в зависимости от положения соединительных фланцев А1, А2, В1, В2.
Габаритные размеры установки для HEPA фильтров AKF
AKF-I

- Корпус;
- HEPA фильтр с полукруглым уплотнением;
- Приспособления для монтажа фильтра;
- Патрубок Bag In-out (только исполнение Bag In-out);
- Патрубок (UPSTREAM) для скантеста интегральной эффективности фильтра;
- Патрубок для измерения статического давления за фильтром – Δp;
- Патрубок для измерения статического давления перед фильтром + Δp;
- Крышка HEPA фильтра 9. Винты для фиксации крышки.
AKF-I+KPF

- Корпус;
- HEPA фильтр с полукруглым уплотнением;
- Приспособления для монтажа фильтра;
- Патрубок Bag In-out (только исполнение Bag In-out);
- Патрубок (UPSTREAM) для скантеста интегральной эффективности фильтра;
- Патрубок для измерения статического давления за фильтром – Δp;
- Патрубок для измерения статического давления перед фильтром + Δp;
- Крышка HEPA фильтра 9. Винты для фиксации крышки;
- Фильтр предварительной очистки;
- Крышка фильтра предварительной очистки.
AKF-II (номинальный размер 1, 2, 3, 4)

AKF-II (номинальный размер 2D, 4D, 6D, 8D)

Размеры и вес корпуса AKF-I

Размеры и вес корпуса AKF-II




