Вы здесь
Приточно-вытяжные установки Ostberg HERU 75, 180
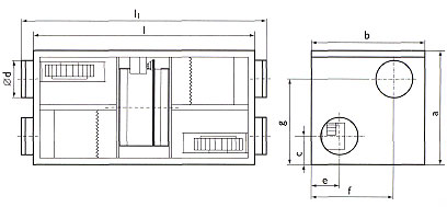
Размеры, мм Ostberg HERU 75, 180
Тип установки |
а |
b |
с |
Ød |
е |
f |
g |
l |
l1 |
HERU 75 |
480 |
520 |
102 |
160 |
120 |
350 |
235 |
970 |
1050 |
HERU 180 |
683 |
680 |
196 |
250 |
159 |
492 |
340 |
1250 |
1325 |
Технические характеристики Ostberg HERU 75, 180
Тип установки HERU |
75 |
180 |
|
Напряжение |
В/Гц |
230/50 |
230/50 |
Ток |
А |
0,90 |
1,87 |
Ном. мощность |
Вт |
200 |
403 |
Вес |
кг |
63 |
130 |
Шумовые характеристики Ostberg HERU 75, 180
Тип установки |
LpA дБ(А) |
LwA tot |
LwA |
||||||||
63 |
125 |
250 |
500 |
1000 |
2000 |
4000 |
8000 |
||||
HERU 75 |
К входу |
44 |
51 |
39 |
47 |
43 |
47 |
39 |
30 |
22 |
9 |
К выходу |
59 |
66 |
47 |
56 |
59 |
61 |
60 |
56 |
51 |
37 |
|
К окружению |
40 |
47 |
35 |
39 |
43 |
42 |
38 |
34 |
30 |
31 |
|
HERU 180 |
К входу |
67 |
74 |
57 |
66 |
68 |
71 |
65 |
60 |
55 |
44 |
К выходу |
54 |
61 |
47 |
54 |
56 |
57 |
48 |
40 |
26 |
9 |
|
К окружению |
45 |
52 |
39 |
42 |
46 |
47 |
42 |
44 |
41 |
39 |
LwAtot — общий уровень шума (дБ);
LwA — уровень шума в октавном диапазоне (дБ);
Lpa — уровень звукового давления (дБ) от вентилятора, работающего при максимальной нагрузке в помещении с нормальным звукопоглощением и эквивалентной зоной поглощения 20 м2 на расстоянии 3,0 м.
Кривая |
7 |
6 |
5 |
4 |
3 |
2 |
1 |
1 фаза В |
230 |
210 |
190 |
170 |
150 |
130 |
100 |