Вы здесь
Пылеуловитель ПВМ10СА
Пылеуловители вентиляционные мокрые повышенной взрывобезопасности ПВМ10СА предназначены для очистки воздуха, удаляемого вытяжными вентиляционными системами от пыли средней и мелкой дисперсности, в том числе взрывоопасных волокнистых и других плохо смачиваемых пылей, обладающих способностью всплывать на поверхность.
Допускается предусматривать рециркуляцию очищенного в ПВМ воздуха, удаляемого системами местных отсосов взрывоопасной пыли растительного или животного происхождения, размещённых в помещениях с производствами категорий В и Д, за исключением помещений, в воздух которых выделяются вредные вещества, исключающие возможность рециркуляции воздуха.
Не рекомендуется для применения в тех случаях, когда улавливаемая пыль способна цементироваться или кристаллизироваться, образуя прочные отложения. При концентрации пыли более 10гм3 рекомендуется применять в качестве второй ступени, предварительно очищая воздух в простейших сухих пылеуловителях в целях уменьшения расхода воды и количества шлама.
Технические характеристики
ПВМ 10СА | |
Производительность по воздуху, м3/ч, не более | 10 000 |
Эффективность очистки, % | 95-99 |
Тип и номер установленного вентилятора | ВЦП 7-40-6,3 |
Установленная мощность электродвигателя, кВт | 22 |
Объем воды в бункере, м3 | 1,45 |
Длина перегородок, м | 2,0 |
Масса пылеуловителя без воды и вентагрегата, кг, не более | 1750 |
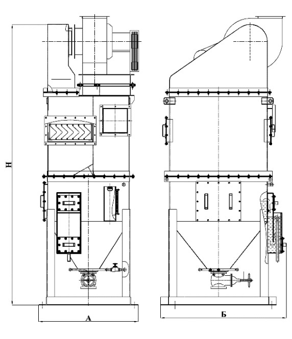
Габаритные размеры
ПВМ 10СА | |
Длинна, Б | 2390 |
Ширина, А | 1514 |
Высота, Н | 4140 |