Пылеуловитель ПВМ3Б 

Пылеуловители вентиляционные мокрые ПВМ3Б с боковыми карманами предназначены для очистки воздуха, удаляемого вытяжными вентиляционными системами от пыли средней и мелкой дисперсности, в том числе взрывоопасных волокнистых и других плохо смачиваемых пылей, которые обладают способностью всплывать на поверхность.

Пылеуловитель не рекомендуется использовать в тех случаях, когда улавливаемая пыль способна цементироваться или кристаллизироваться, образуя прочные отложения. При концентрации пыли более 10гм3, ПВМ рекомендуется применять в качестве второй ступени, предварительно очищая воздух в простейших сухих пылеуловителях, в целях уменьшения расхода воды и количества шлама.

Принцип действия ПВМ3Б

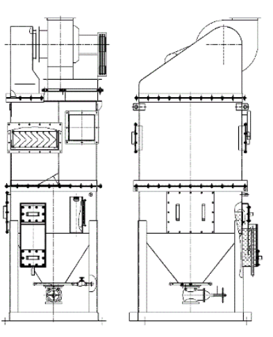
Запылённый воздух через входной патрубок входит в корпус, устремляется с большой скоростью через щель между поверхностью воды и нижней кромкой перегородки, захватывая с собой воду. Увлечённая воздухом вода, отклоняется каплеотбойником и сливается в крайние отсеки. Очищенный воздух проходит через каплеуловители и выбрасывается наружу вентилятором.

Растворенный в воде или осевший в нижней части пылеуловителя шлам сливается через задвижку, расположенную на дне пылеуловителя. Фракция, способная к всплыванию отводится через боковые карманы. Эффективность очистки воздуха — 95-99% в зависимости от размера частиц.

Технические характеристики ПВМ3Б

Наименование   Производительность по воздуху, м3/ч  Габаритные размеры,мм  Масса,кг
Пылеуловитель ПВМ3Б 3000 1315×1145х3185 750

Назад к списку