Фильтры масляного тумана ФМТ-1000 

Фильтры масляного тумана ФМТ с производительностью 1000 м3/ч предназначены для трехступенчатой очистки воздуха, загрязненного маслосодержащими эмульсиями, масляным туманом с температурой возгорания не ниже 150Со, содержащих не более 5% масляной составляющей и механическими примесями размером не менее 0,3 мкм.

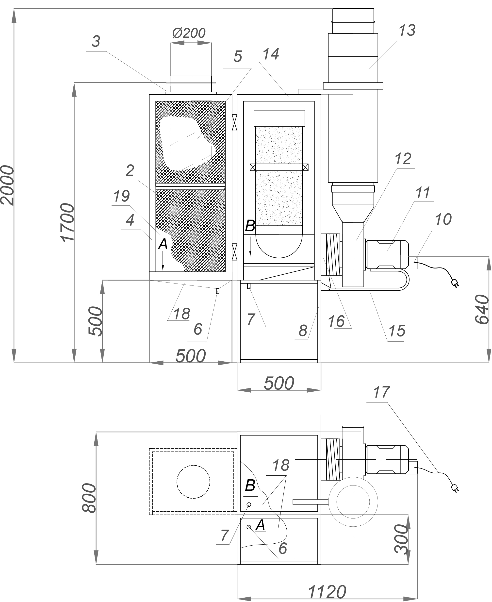
Принцип работы фильтра ФМТ

  • Фильтры очищают воздуха от масляного тумана, паров масла и эмульсий, выделяющихся при работе на металлобрабатывающих станках.
  • Загрязненный воздух постутает в винтовой инерционный осадитель (первая ступень очистки),
  • Недоочищенная воздушная смесь попадает в низкоскоростную влагоосадочную камеру (вторая ступень очистки).
  • Далее воздух доочищается в кассетах с полимерным влагоуловителем объемной фильтрации (третья ступень очистки).
  • В качестве заключительной, четвертой ступени очистки, воздух проходит через цилиндрический полимерный фильтр тонкой очистки.

Технические характеристики фильтров ФМТ

Производительность по воздуху,м3 1000 
Располагаемое давление,PA 900
Степень очистки по твердой фазе размером более 0,3мкм,% 99
Степень очистки жидкостей фазы масляного тумана,% 99
Максимальная потребляемая мощность,кВт 2,2
Напряжение сети,В 380(220 под заказ)

Габаритные характеристики фильтра ФМТ-1000

Фильтр ФМТ-1000

Назад к списку