Вы здесь
Пылеулавливающий агрегат ПАР-М
Рециркуляционный пылеулавливающий агрегат ПАР-М предназначен для улавливания мелкодисперсной пыли при её невысокой концентрации в очищаемом воздухе — порядка 10–20 мг/м³. Оборудование эффективно применяется при выполнении пайки, точечной сварки и других технологических процессов, сопровождающихся образованием пылевых загрязнений.
Агрегат используется в режиме рециркуляции и может эксплуатироваться при условии периодической ручной регенерации фильтра первой ступени. Такое решение обеспечивает экономичную и эффективную локальную очистку воздуха непосредственно в производственном помещении.
Двухступенчатая система очистки
ПАР-М оснащён двухступенчатой системой фильтрации, обеспечивающей высокую степень очистки рециркуляционного воздуха:
- первая ступень — карманный фильтр ФяК с фильтрующим материалом, допускающим ручную регенерацию;
- вторая ступень — складчатый фильтр ФяС класса F7–H13.
Класс фильтра второй ступени подбирается специалистами в зависимости от типа пыли и требований к качеству очищенного воздуха. По отдельному заказу агрегат может дополнительно комплектоваться угольным фильтром для удаления газообразных загрязнений и запахов.
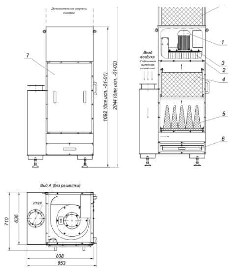
Конструкция агрегата
Пылеулавливающий агрегат ПАР-М включает корпус фильтра, центробежный вентилятор, фильтр первой и второй ступени очистки. С одной стороны корпуса предусмотрена съёмная дверь, обеспечивающая удобный доступ к фильтрам для их установки и обслуживания.
Фильтрующие элементы устанавливаются на опорные уголки и фиксируются прижимными устройствами. Дверь герметично прижимается к корпусу через уплотнительную резину с помощью винтовых соединений. На выходе агрегата размещена защитная воздухораспределительная решётка.
Мобильность и варианты исполнения
Агрегат оснащён четырьмя колёсами и ручкой для удобного перемещения по производственному участку. Два колеса оборудованы стопорными механизмами, обеспечивающими надёжную фиксацию в рабочем положении.
По отдельному заказу ПАР-М может комплектоваться консольно-поворотным вытяжным устройством типа РВУ-3/160-00 с радиусом действия до 3 м. Также возможно изготовление агрегата в стационарном исполнении — в этом случае вместо колёс устанавливаются регулируемые опоры для надёжной установки на полу.
Контроль состояния и обслуживание
Агрегат оснащён контрольными лампами, сигнализирующими о достижении фильтрами первой и второй ступени конечного сопротивления. После срабатывания индикации карманный фильтр первой ступени подлежит замене или ручной регенерации, а фильтр второй ступени — обязательной замене.
Для сбора уловленной пыли предусмотрен выдвижной ящик, обеспечивающий удобство очистки и технического обслуживания оборудования.
Подключение и условия эксплуатации
В процессе эксплуатации агрегат может оснащаться различными консольно-поворотными вытяжными устройствами или подключаться к местным отсосам с помощью воздуховодов. Для сохранения номинальной производительности суммарное сопротивление дополнительной сети воздуховодов или вытяжных устройств не должно превышать предусмотренный конструкцией запас давления.
Применение ПАР-М позволяет организовать эффективную локальную очистку воздуха, снизить концентрацию пыли в рабочей зоне и обеспечить безопасные условия труда на производстве.
Габаритные размеры
Схема агрегата ПАР-М (исполнения 01-01 и 01-02)

- электродвигатель;
- колесо вентилятора;
- корпус вентилятора;
- складчатый фильтр;
- карманный фильтр;
- ящик для сбора пыли;
- съемная дверца;
- дополнительный фильтр
Схема агрегата ПАР-М (исполнения 02-01 и 02-02)

- электродвигатель;
- колесо вентилятора;
- корпус вентилятора;
- складчатый фильтр;
- карманный фильтр;
- ящик для сбора пыли;
- съемная дверца;
- дополнительный фильтр.
Технические характеристики ПАР-М
| Наименование показателей | Значение | |
| Исп. 02-01 | Исп. 01-01 | |
| Номинальная производительность, м3/ч | 1000- 1300 | |
| Запас «свободного» давления на подсоединение вентиляционной сети, Па | 400 | |
| Внутренний диаметр входного патрубка, мм | 160 | |
| Электродвигатель: мощность, кВт | 1,5 | |
| Габариты: | ||
| длина, мм | 853 | |
| ширина, мм | 710 | |
| высота, мм | 1808 | 1692 |
| Масса, кг | 170 | 163 |



