Вы здесь
Пылеулавливающий агрегат ПАР-ПИ
Рециркуляционный пылеулавливающий агрегат ПАР-ПИ предназначен для высокоэффективной очистки воздуха от всех видов пыли, включая мелкодисперсные твердые аэрозоли. Агрегат оптимален для работы при концентрации пыли до 1 г/м³ и может заменить ранее применявшиеся модели, такие как ЗИЛ-900, ПА 2-12МА, ПА-218 и другие.
Агрегат не рекомендуется для улавливания взрыво- и пожароопасной пыли. При превышении концентрации пыли 1 г/м³ перед установкой ПАР-ПИ необходимо использовать предварительную ступень очистки.
Общее устройство
ПАР-ПИ оснащён патронным фильтрующим элементом ФЭП и устройством для импульсной регенерации сжатым воздухом. По заказу агрегат может комплектоваться дополнительным фильтром типа ФяС классов F6–H14 для тонкой очистки воздуха или угольным фильтром ФяС-С для улавливания газообразных загрязнений. Установка дополнительного фильтра увеличивает высоту агрегата на 300 мм. Выбор дополнительного фильтра зависит от дисперсности аэрозолей и требований к чистоте воздуха.
Основные компоненты агрегата:
- корпус фильтра;
- центробежный вентилятор;
- патронный фильтрующий элемент ФЭП;
- устройство для регенерации патрона сжатым воздухом.
С одной стороны агрегата расположена съёмная дверь для установки патрона. Патрон монтируется на опорные уголки, герметично прижимается уплотнительной резиной и прижимными устройствами. Дверь герметично крепится к корпусу винтовыми соединениями. На выходе установлена защитная воздухораспределительная решётка, а для сбора пыли предусмотрен выдвижной ящик.
Мобильность и варианты исполнения
Агрегат оснащён четырьмя колёсами и ручкой для удобного перемещения и позиционирования рядом с технологическим оборудованием. По отдельному заказу может быть установлено поворотное вытяжное устройство типа РВУ-3/160-00 с радиусом действия до 3 м.
Также возможна стационарная версия агрегата с регулируемыми опорами вместо колёс для установки на пол.
Контроль состояния и регенерация
Контроль состояния фильтра осуществляется датчиком перепада давления со световой индикацией, который сигнализирует о необходимости регенерации при достижении патроном заданного конечного аэродинамического сопротивления. Регенерация патронного фильтра выполняется при отключённом вентиляторе с помощью устройства управления, входящего в комплект поставки.
Подключение и условия эксплуатации
Агрегат ПАР-ПИ может подключаться к различным консольно-поворотным устройствам, воздуховодам от местных отсосов или другим элементам вентиляционной сети. Важно, чтобы аэродинамическое сопротивление подключаемых устройств не превышало запаса «свободного» давления, указанного в технической документации агрегата.
Для проведения регенерации фильтра необходимо подключение к сети сжатого воздуха с давлением 5–6 атм через соответствующий штуцер. Сжатый воздух должен быть очищен и осушен не ниже 10 класса по ГОСТ 17433-80, что обеспечивает стабильную и эффективную очистку воздуха в рабочей зоне.
Габаритные размеры ПАР-ПИ
Схема агрегата ПАР-ПИ (исполнения 01-01 и 01-02)

- электродвигатель;
- дополнительный фильтр;
- колесо вентилятора;
- корпус вентилятора;
- штуцер для подключения сжатого воздуха;
- импульсный клапан;
- патронный фильтр;
- съемная дверца;
- ящик для сбора пыли.
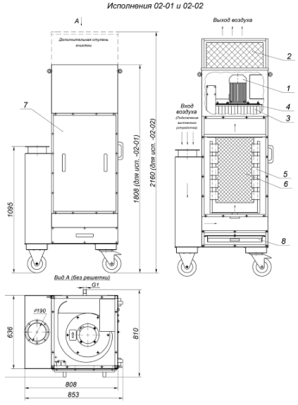
Схема агрегата ПАР-ПИ (исполнения 02-01 и 02-02)

- электродвигатель;
- дополнительный фильтр;
- колесо вентилятора;
- корпус вентилятора;
- штуцер для подключения сжатого воздуха;
- импульсный клапан;
- патронный фильтр;
- съемная дверца;
- ящик для сбора пыли.
Технические характеристики ПАР-ПИ
| Наименование показателей | Значение | |
| Исп. 02-01 | Исп. 01-01 | |
| Номинальная производительность, м3/ч | 1000 | |
| Эффективность очистки, не менее % | ||
| - без дополнительного фильтра | 99 | |
| - с дополнительным фильтром, до | 99,999 | |
| Запас «свободного» давления на подсоединение вентиляционной сети, Па | 500 | |
| Внутренний диаметр входного патрубка, мм | 160 | |
| Наибольший расход сжатого воздуха на регенерацию, м3/ч | 6 | |
| Давление сжатого воздуха, МПа (кгс/см2) | 0,5-0,6 (5-6) | |
| Электродвигатель: мощность, кВт | 2,2 | |
| Габариты: | ||
| длина, мм | 853 | |
| ширина, мм | 710 | |
| высота, мм | 1808 | 1692 |
| Масса, кг | 200 | 193 |



