Вы здесь
Пылеулавливающий агрегат ПАР-ПМ
Рециркуляционный пылеулавливающий агрегат ПАР-ПМ предназначен для высокоэффективной очистки воздуха от всех видов пыли, включая мелкодисперсные твёрдые аэрозоли, при концентрации загрязнений до 1 г/м³.
Оборудование может использоваться в качестве замены ранее применявшихся агрегатов, таких как ЗИЛ-900, ПА-2-12МА, ПА-218 и других аналогичных установок.
Агрегат не рекомендуется для улавливания взрыво- и пожароопасной пыли. При концентрации пыли более 1 г/м³ перед ПАР-ПМ целесообразно предусматривать предварительную ступень очистки воздуха.
Система фильтрации и регенерации
ПАР-ПМ оснащён патронным фильтрующим элементом типа ФЭП и устройством механической регенерации патрона. Это обеспечивает стабильную эффективность очистки и поддержание рабочих характеристик фильтра без частой замены фильтрующего элемента.
Для контроля конечного аэродинамического сопротивления патрона используется датчик перепада давления со световой индикацией. При достижении заданного сопротивления подаётся сигнал о необходимости регенерации, которая осуществляется автоматическим механическим устройством при отключённом вентиляторе.
Возможности дооснащения
По заказу агрегат может комплектоваться дополнительным фильтром типа ФяС классов F6–H14 для тонкой очистки воздуха от мелкодисперсных аэрозолей либо угольным фильтром ФяС-С для улавливания газообразных загрязнений. Дополнительный фильтр устанавливается в верхней части корпуса агрегата, увеличивая его высоту на 300 мм. Выбор фильтра зависит от дисперсности улавливаемых загрязнений и требований к чистоте воздуха.
Конструкция агрегата
В состав ПАР-ПМ входят корпус фильтра, центробежный вентилятор, патронный фильтрующий элемент ФЭП и устройство механической регенерации патрона. С одной стороны корпуса расположена съёмная дверь для установки и обслуживания фильтрующего элемента.
Патрон устанавливается на опорные уголки корпуса и герметично прижимается уплотнительной резиной и прижимными устройствами. Дверь крепится винтовыми соединениями через уплотнительную резину, обеспечивая герметичность. На выходе воздуха установлена воздухораспределительная решётка, а для сбора уловленной пыли предусмотрен выдвижной ящик.
Исполнение и условия эксплуатации
Агрегат оснащён четырьмя колёсами и ручкой для удобного перемещения и установки рядом с технологическим оборудованием. По отдельному заказу может комплектоваться поворотным вытяжным устройством типа РВУ-3/160-00 с радиусом действия до 3 м, не входящим в стандартную комплектацию.
ПАР-ПМ может изготавливаться в стационарном исполнении со специальными регулируемыми опорами вместо колёс. Для эксплуатации допускается подключение агрегата к консольно-поворотным устройствам, воздуховодам от местных отсосов или другой вентиляционной сети. Сопротивление подключаемых устройств не должно превышать запас свободного давления, предусмотренный конструкцией агрегата.
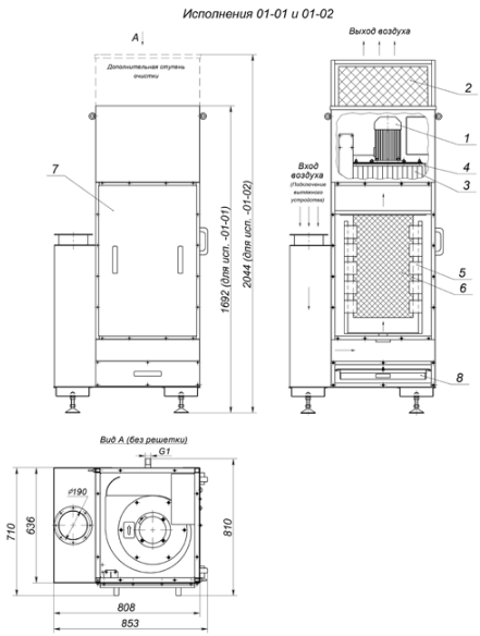
Габаритные размеры ПАР-ПМ
Схема агрегата ПАР-ПМ (исполнения 01-01 и 01-02)

- электродвигатель;
- дополнительный фильтр;
- колесо вентилятора;
- корпус вентилятора;
- устройство механической очистки;
- патронный фильтр;
- съемная дверца;
- ящик для сбора пыли.
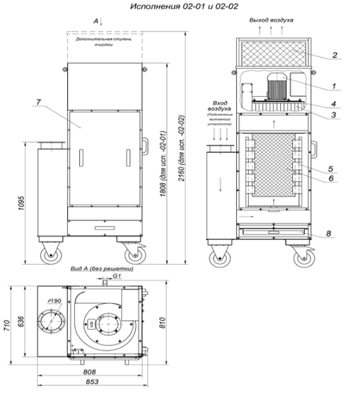
Схема агрегата ПАР-ПМ (исполнения 02-01 и 02-02)

- электродвигатель;
- дополнительный фильтр;
- колесо вентилятора;
- корпус вентилятора;
- устройство механической очистки;
- патронный фильтр;
- съемная дверца;
- ящик для сбора пыли.
Технические характеристики ПАР-ПМ
| Наименование показателей | Значение | |
| Исп. 02-01 | Исп. 01-01 | |
| Номинальная производительность, м3/ч | 1000 | |
| Эффективность очистки, не менее % | ||
| - без дополнительного фильтра | 99 | |
| - с дополнительным фильтром, до | 99,999 | |
| Запас «свободного» давления на подсоединение вентиляционной сети, Па | 500 | |
| Внутренний диаметр входного патрубка, мм | 160 | |
| Электродвигатель: мощность, кВт | 2,2 | |
| Габариты: | ||
| длина, мм | 853 | |
| ширина, мм | 710 | |
| высота, мм | 1808 | 1692 |
| Масса, кг | 212 | 205 |



