Вы здесь
Пылеулавливающий агрегат ПВМСА
Описание вентиляционного пылеуловителя ПВМСА
Пылеуловитель ПВМСА предназначен для очистки воздуха от пыли средней и мелкой фракции, поступающего из вытяжных вентиляционных систем, включая взрывоопасные волокнистые и другие трудно слипающиеся виды пыли.
Рекомендуется использовать ПВМСА как вторую ступень очистки, предварительно обработав воздух в простых сухих пылеуловителях.
Эффективность очистки достигает от 95 до 99%.
Принцип работы пылеуловителя ПВМСА
Запылённый воздух через входной патрубок с высокой скоростью проходит через щель между водой и нижней частью перегородки, захватывая при этом капли воды.
Захваченная вода отклоняется каплеотбойником и стекает в боковые отсеки аппарата.
Очищенный воздух проходит через каплеуловители и выводится наружу с помощью вентилятора. Пыль и шлам, растворённые в воде или осевшие в нижней части устройства, удаляются через задвижку, расположенную в основании пылеуловителя.
| Наименование | ПВМ3СА | ПВМ5СА | ПВМ10СА | ПВМ20СА | ПВМ40СА |
| Номинальная производительность по воздуху, м3/ч | 3000 | 5000 | 10000 | 20000 | 40000 |
| Общая длина пылеулавливающей перегородки, м | 0,8 | 1,2 | 2 | 4 | 8 |
| Тип и номер установленного вентилятора | В-Ц14-46-2,5-01 | В-ЦП7-40-5-06 | В-ЦП7-40-6-06 | В-ЦП6-45-8-06 | В-Ц4-76-10-06 |
| Объем воды в бункере пылеуловителя, м3 | 0,7 | 1,2 | 1,45 | 2,2 | 2,5 |
| Масса пылеуловителя без воды и вентагрегата, кг | 550 | 670 | 1230 | 1650 | 3550 |
| Длина, мм | 1315 | 1370 | 1514 | 2290 | 2314 |
| Ширина, мм | 1145 | 1590 | 2390 | 2390 | 4385 |
| Высота, мм | 3185 | 3575 | 4145 | 4575 | 5010 |
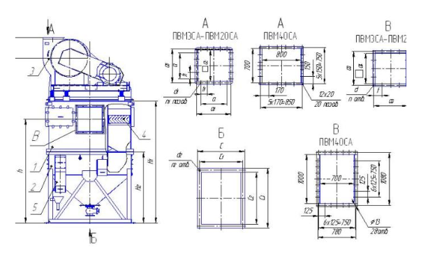
Устройство агрегата ПВМСА

Габаритные размеры ПВМСА

| Типоразмер | Размеры, мм | |||||||||||||||||||||
| Н | Н1 | Н2 | h | h1 | С | С1 | С2 | С3 | a | а1 | □а2 | а3 | □а4 | n | n1 | n2 | d | d1 | d2 | t | t1 | |
| ПВМ3СА | 3162 | 2610 | 1600 | 2305 | 2980 | 1224 | 1138 | 800 | 1024 | 100 | 210 | 170 | 304 | 250 | 8 | 8 | 4 | 7 | 8,5×20 | 20 | 152 | 100 |
| ПВМ5СА | 3600 | 2640 | 1600 | 2285 | 3275 | 1224 | 1134 | 1124 | 1430 | 200 | 342 | 300 | 350 | 300 | 10 | 16 | 11 | 12×20 | 175 | |||
| ПВМ10СА | 4165 | 3005 | 1750 | 2605 | 3765 | 1514 | 1424 | 1920 | 2220 | 200 | 420 | 380 | 470 | 400 | 8 | 13 | 235 | |||||
| ПВМ20СА | 4566 | 3004 | 1750 | 2555 | 4064 | 2224 | 2134 | 1924 | 2224 | 400 | 524 | 480 | 660 | 600 | 16 | 20 | 12 | 165 | ||||
| ПВМ40СА | 5095 | 3005 | 1750 | 2430 | 4425 | 2224 | 2314 | 3924 | 4224 | - | - | - | - | - | - | - | 6 | - | - | 22 | - | - |
Зависимость сопротивления пылеуловителя типа ПВМ от расхода воздуха Q на 1 м длины перегородки при различных уровнях воды δ

Зависимость фракционной эффективности Е пылеуловителей типа ПВМ от уровня воды δ3




