Вы здесь
Картриджный фильтр с импульсной продувкой SFL
Модульные фильтры серии SFL представляют собой экономичные установки непрерывного действия с полностью автоматической системой самоочистки.
Очистка фильтрующих элементов осуществляется импульсами сжатого воздуха, что обеспечивает стабильную работу оборудования без остановок. В качестве рабочих элементов применяются плоские гофрированные картриджи, размещённые горизонтально рядами по 6 или 9 штук. Общая площадь фильтрации одного модуля варьируется от 36 до 216 м².
Фильтры SFL предназначены для удаления сухой пыли с концентрацией до 50 г/м³ и могут устанавливаться как в помещениях, так и на открытом воздухе.
Выпускаются различные исполнения: стационарное с опорами и бункером, бункерное для установки на силосах и местах пересыпки, а также специальные варианты – антистатическое, из нержавеющей стали и взрывозащищённое.
Ограничения в применении
- пыль, склонная к тлению и самовозгоранию;
- волокнистая пыль;
- слипающаяся пыль;
- пыли с содержанием влаги более 5 %;
- воздух с температурой выше 80 °С.
Области использования
- аспирация технологического оборудования;
- очистка воздуха на конвейерных линиях, пересыпках и элеваторах;
- аспирация дробилок, мельниц, грохотов, миксеров и дозаторов;
- удаление пыли при термической и механической резке металлов;
- аспирация дробеструйной и поверхностной обработки.
Особенности и преимущества фильтров SFL
- широкий модельный ряд с производительностью от 1 000 до 150 000 м³/ч при компактных размерах;
- высокая степень очистки – остаточная запылённость 5–10 мг/м³ и ниже при использовании специальных фильтровальных материалов;
- удобная горизонтальная замена картриджей из «чистой» зоны без демонтажа соседних элементов;
- эргономичное обслуживание, снижающее нагрузку на персонал;
- расположение блока управления и системы регенерации на высоте, удобной для визуального осмотра и сервисного обслуживания;
- простая сборка и установка, поставка в готовом или укрупнённо собранном виде;
- возможность модернизации и увеличения производительности;
- долговечное защитное покрытие корпуса с использованием трёхслойной окраски.
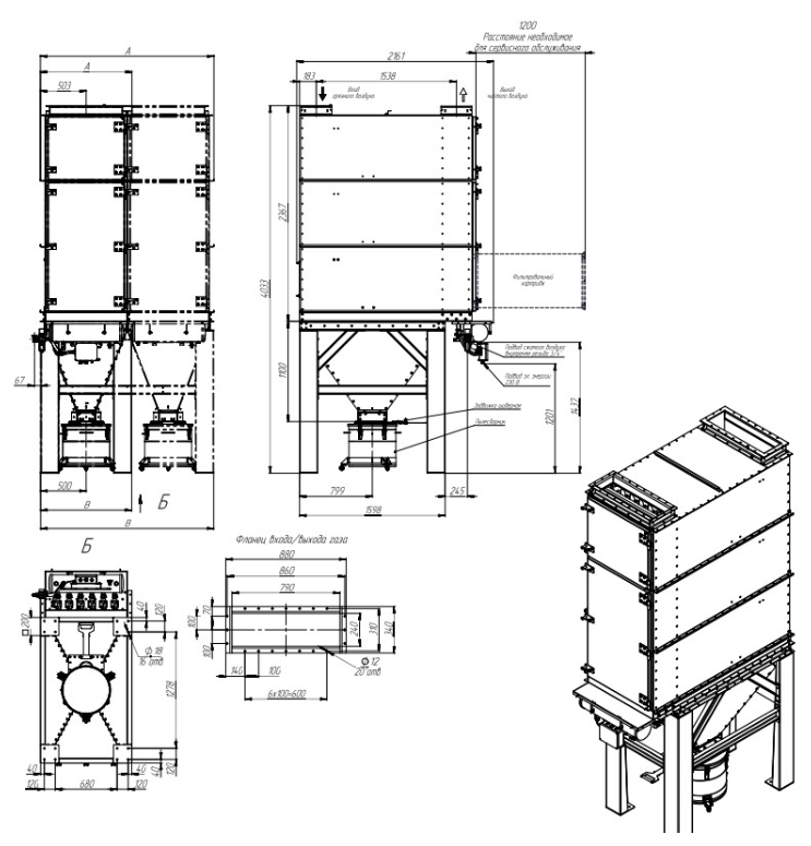
Конструкция и работа
Фильтры SFL состоят из корпуса, разделённого на «грязную» и «чистую» камеры, горизонтально расположенных картриджей, пирамидального бункера, системы импульсной регенерации и опорной конструкции. Пыль осаждается в ёмкости объёмом 90 литров, оборудованные ручными заслонками для перекрытия выгрузки на работающем фильтре. Очистка картриджей запускается автоматически при достижении установленного сопротивления. Электронный пульт управления обеспечивает полностью автоматический цикл работы.
Благодаря надёжной конструкции, высокой степени очистки и удобству обслуживания, фильтры серии SFL являются эффективным решением для промышленных предприятий, где требуется бесперебойная очистка воздуха от сухой пыли.
Типы фильтровальных элементов
Наименование | Фильтровальная поверхность, м 2 | Материал кармана |
CART-D-SFL |
|
Полиэстер |
CART-C-SFL | Полиэстер антистатик | |
CART-T-SFL | «Тефлон» (мембрана) | |
CART-TC-SFL | «Тефлон» мембрана) антистатик |
Фильтровальные элементы
Фильтровальный элемент для фильтра SFL представляет собой плоский гофрированный картридж из нетканого материала.
Фото | Наименование | Фильтровальная поверхность, м2 | Материал кармана |
|
CART-D-SFL |
6,0
|
Полиэстер |
CART-C-SFL | Полиэстер антистатик | ||
CART-T-SFL | Полиэстер с ePTFE-мембраной | ||
CART-TC-SFL | Полиэстер с ePTFE-мембраной антистатик |
Стандартно регенерация картриджей в каждой секции фильтра производится одновременно с процессом фильтрации.
Возможность применения опции оффлайн-регенерации позволяет поочередно отсекать каждую секцию фильтра от побудителя тяги и проводить регенерацию фильтровальных картриджей максимально эффективно, т.к. движение воздуха через фильтровальные элементы прекращается и лёгкая пыль оседает свободно в бункер.
Принцип работы
Загрязненный воздух поступает в фильтр через входной патрубок под действием разрежения создаваемого вентилятором. Внутри фильтра воздушный поток равномерно распределяется по всей камере очистки и проходит через фильтровальные картриджи, размещенные внутри камеры. При этом на их поверхности оседают частицы пыли.
Очищенный воздух, поступающий из внутренней полости картриджей, проходит через камеру очищенного газа и выходит через выходной патрубок
Очистка фильтрующих картриджей производится автоматически при достижении заданного сопротивления. Пневматическая система регенерации создает импульс сжатого воздуха, который продувает картриджи без остановки фильтра. При этом импульс сжатого воздуха поступает из ресивера, проходит через пневмоэлектромагнитные клапаны и выбрасывается во внутреннюю полость картриджей, в результате чего происходит их очистка.
Частицы пыли после продувки оседают в бункер и далее через фланец пылевыгруза выводятся из фильтра. Пыль оседает в пылесборнике, для снятия которого необходимо закрыть шиберную задвижку, отсоединить при помощи защелок бочку, после опустошения установить обратно и открыть задвижку.
Возможное расположение входных/выходных фланцев на фильтрах SFN и SFL
В фильтрах серии SFN и SFL вход загрязненного газа и выход очищенного газа стандартно осуществляется сверху.
Соответственно фланцы размещены на верхней части фильтра. При необходимости фланец входа грязного газа можно разместить на задней стенке фильтра в верхней части корпуса.
Выход очищенного газа можно разместить на боковой стенке камеры чистого газа.
Основным отличием фильтров SFL от SFN
Является то, что при одинаковой площади фильтровальной поверхности картриджный фильтр серии SFL будет иметь значительно меньшие габариты, чем карманный фильтр SFN.
Однако фильтры серии SFN более универсальны для различных типов задач, SFL имеют ограничения в эксплуатации – для SFL максимальная температура потока должна быть не более +80°С, а пыль сухая и неслипающаяся.
Технические характеристики SFL
Модель фильтра
|
Технические характеристики
|
|||||
Площадь фильтрации, м2
|
Производит. при номинальной нагрузке м3/ч*
|
Количество импульсных клапанов, шт.
|
Количество картриджей, шт.
|
Расход сжатого воздуха м3/час
|
Масса, кг
|
|
SFL-36/1 | 36 | 2 700 | 3 | 6 | 24 | 710 |
SFL-36/2 | 72 | 5 400 | 6 | 12 | 24 | 1 160 |
SFL-36/3 | 108 | 8 100 | 9 | 18 | 24 | 1 610 |
SFL-36/4 | 144 | 10 800 | 12 | 24 | 24 | 2 070 |
SFL-36/5 | 180 | 13 500 | 15 | 30 | 48 | 2 590 |
SFL-54/1 | 54 | 4 050 | 5 | 9 | 41 | 860 |
SFL-54/2 | 108 | 8 100 | 10 | 18 | 41 | 1 430 |
SFL-54/3 | 162 | 12 150 | 15 | 27 | 82 | 2 050 |
SFL-54/4 | 216 | 16 200 | 20 | 36 | 82 | 3 690 |
SFL-54/5 | 270 | 20 250 | 25 | 45 | 123 | 3 320 |
SFL-72/1 | 72 | 5 400 | 6 | 12 | 24 | 890 |
SFL-72/2 | 144 | 10 800 | 12 | 24 | 24 | 1 550 |
SFL-72/3 | 216 | 16 200 | 18 | 36 | 48 | 2 110 |
SFL-72/4 | 288 | 21 600 | 24 | 48 | 48 | 2 780 |
SFL-72/5 | 360 | 27 000 | 30 | 60 | 72 | 3 430 |
SFL-108W/1 | 108 | 8 100 | 9 | 18 | 42 | 1 120 |
SFL-108W/2 | 216 | 16 200 | 18 | 36 | 84 | 1 920 |
SFL-108W/3 | 324 | 24 300 | 27 | 54 | 126 | 2 730 |
SFL-108W/4 | 432 | 32 400 | 36 | 72 | 126 | 3 600 |
SFL-108W/5 | 540 | 40 500 | 45 | 90 | 168 | 4 470 |
SFL-108/1 | 108 | 8 100 | 6 | 18 | 24 | 1 080 |
SFL-108/2 | 216 | 16 200 | 12 | 36 | 24 | 1 840 |
SFL-108/3 | 324 | 24 300 | 18 | 54 | 48 | 2 600 |
SFL-108/4 | 432 | 32 400 | 24 | 72 | 48 | 3 420 |
SFL-108/4 | 540 | 40 500 | 30 | 90 | 72 | 4 220 |
SFL-144/1 | 144 | 10 800 | 6 | 24 | 24 | 1 290 |
SFL-144/2 | 288 | 21 600 | 12 | 48 | 24 | 2 210 |
SFL-144/3 | 432 | 32 400 | 18 | 72 | 48 | 3 120 |
SFL-144/4 | 576 | 43 200 | 24 | 96 | 48 | 4 090 |
SFL-144/4 | 720 | 54 000 | 30 | 120 | 72 | 5 040 |
SFL-162/1 | 162 | 12 150 | 9 | 27 | 43 | 1 370 |
SFL-162/2 | 324 | 24 300 | 18 | 54 | 86 | 2 370 |
SFL-162/3 | 486 | 36 450 | 27 | 81 | 129 | 3 420 |
SFL-162/4 | 648 | 48 600 | 36 | 108 | 129 | 4 550 |
SFL-162/5 | 810 | 60 750 | 45 | 135 | 172 | 5 620 |
SFL-216/1 | 216 | 16 200 | 9 | 36 | 44 | 1 670 |
SFL-216/2 | 432 | 32 400 | 18 | 72 | 88 | 2 960 |
SFL-216/3 | 648 | 48 600 | 27 | 108 | 132 | 4 240 |
SFL-216/4 | 864 | 64 800 | 36 | 144 | 132 | 5 620 |
SFL-216/5 | 1 080 | 81 000 | 45 | 180 | 176 | 6 920 |
SFL-360/1 | 360 | 27 000 | 15 | 60 | 68 | 2 560 |
Возможные компоновки
Точечный (конвейерный, силосный) картриджный фильтр SFL-FH
Точечные фильтры SFL могут выпускаться как в напорном исполнении (без вентилятора) – для вентилирования силосов, бункеров и т.д., находящихся под избыточным давлением, так и под разряжением (с вентилятором) – для установки на местах пересыпок и на силосах, в которых необходимо создавать разряжение.
Комплектации SFL
Стандартный комплект поставки | |
Корпус фильтра (грязная и чистая области) | |
Фланцы входа/выхода газа сверху (стандартно) | |
Система продувки в комплекте: | — ресивер для сжатого воздуха |
— трубы продувки | |
— импульсные клапаны | |
— блок управления КФ-3 (CONT-S) |
|
— датчик перепада давления | |
— влагомаслоотделитель с редуктором | |
Двери обслуживания | |
Контрольный люк на задней стенке (по кол-ву секций, 1 шт. на секцию) | |
Фильтровальные картриджи CART-D-SFL или CART-C-SFL | |
Пирамидальный бункер (по кол-ву секций) | |
Опоры | |
Ручная отсечная шиберная заслонка (по кол-ву секций) | |
Пылесборник 90 л (по кол-ву секций) | |
Линия заземления (для фильтров в антистат. исполнении) | |
Покраска фильтра |
Дополнительная комплектация | |
Обогрев системы продувки в комплекте: | — утепленный короб (по кол-ву секций) |
— обогрев с термостатом (по кол-ву секций) | |
Специфические фильтровальные картриджи | |
Теплоизоляция корпуса | |
Теплоизоляция бункера | |
3-х слойная антикорроз. обработка корпуса и пылесборника | |
Обогрев бункера | |
Объединенный бункер | |
Альтернативные устройства выгрузки пыли: | — ротационный питатель |
— двойная маятниковая заслонка (мигалка) | |
— шнековый конвейер | |
Датчики: | — датчик уровня (в пылесборнике) |
— датчик вращения (на приводы шнека и роторного клапана) | |
— датчик контроля давления сжатого воздуха | |
Вентилятор, смонтированный на корпусе | |
Шкаф управления и контроля (по доп. тех. заданию) |
В фильтрах серии SFN и SFL вход загрязненного газа и выход очищенного газа стандартно осуществляется сверху. Соответственно фланцы размещены на верхней части фильтра.
При необходимости фланец входа грязного газа можно разместить на задней стенке фильтра в верхней части корпуса. Выход очищенного газа можно разместить на боковой стенке камеры чистого газа.
Модельный ряд
SFL-36…GV/DB
Тип фильтра | Производительность, м3/ч | Площадь фильтрующей поверхности, м2 | Расход сжатого воздуха, м3/ч | Число картриджей, шт. | Масса, кг | A, мм | В, мм |
SFL-36/1 | 2 700 | 36 | 24 | 6 | 710 | 1 005 | 1 000 |
SFL-36/2 | 5 400 | 72 | 24 | 12 | 1 160 | 1 905 | 1 900 |
SFL-36/3 | 8 100 | 108 | 24 | 18 | 1 610 | 2 805 | 2 800 |
SFL-36/4 | 10 800 | 144 | 24 | 24 | 2 070 | 3 705 | 3 700 |
SFL-36/5 | 13 500 | 180 | 48 | 30 | 2 590 | 4 605 | 4 600 |
SFL-54/..-GV/DB
|
|
|
|
|
|
|
|
|
|
|
|
|
|
|
|
|
|
|
|
|
|
|
|
|
|
|
|
|
|
|
|
|
|
|
|
|
|
|
|
|
|
|
|
|
|
|
|
SFL-72/..-GV/DB
Тип фильтра | Производительность, м3/ч | Площадь фильтрующей поверхности, м2 | Расход сжатого воздуха, м3/ч | Число картриджей, шт. | Масса, кг | A, мм | В, мм |
SFL-72/1 | 5 400 | 72 | 24 | 12 | 890 | 1 005 | 1 000 |
SFL-72/2 | 10 800 | 144 | 24 | 24 | 1 550 | 1 905 | 1 900 |
SFL-72/3 | 16 200 | 216 | 48 | 36 | 2 110 | 2 805 | 2 800 |
SFL-72/4 | 21 600 | 288 | 48 | 48 | 2 780 | 3 705 | 3 700 |
SFL-72/5 | 27 000 | 360 | 72 | 60 | 3 430 | 4 605 | 4 600 |
SFL-108 (W)/..-GV/DB
Тип фильтра | Производительность, м3/ч | Площадь фильтрующей поверхности, м2 | Расход сжатого воздуха, м3/ч | Число картриджей, шт. | Масса, кг | A, мм | В, мм |
SFL-108W/1 | 8 100 | 108 | 42 | 18 | 1 120 | 1 455 | 1 450 |
SFL-108W/2 | 16 200 | 216 | 84 | 36 | 1 920 | 2 805 | 2 800 |
SFL-108W/3 | 24 300 | 324 | 126 | 54 | 2 730 | 4 155 | 4 150 |
SFL-108W/4 | 32 400 | 432 | 126 | 72 | 3 600 | 5 505 | 5 500 |
SFL-108W/5 | 40 500 | 540 | 168 | 90 | 4 470 | 6 855 | 6 850 |
SFL-108/..-GV/DB
Тип фильтра | Производительность, м3/ч | Площадь фильтрующей поверхности, м2 | Расход сжатого воздуха, м3/ч | Число картриджей, шт. | Масса, кг | A, мм | В, мм |
SFL-108/1 | 8 100 | 108 | 24 | 18 | 1 080 | 1 005 | 1 000 |
SFL-108/2 | 16 200 | 216 | 24 | 36 | 1 840 | 1 905 | 1 900 |
SFL-108/3 | 24 300 | 324 | 48 | 54 | 2 600 | 2 805 | 2 800 |
SFL-108/4 | 32 400 | 432 | 48 | 72 | 3 420 | 3 705 | 3 700 |
SFL-108/5 | 40 500 | 540 | 72 | 90 | 4 220 | 4 605 | 4 600 |
SFL-144/..-GV/DB
Тип фильтра | Производительность, м3/ч | Площадь фильтрующей поверхности, м2 | Расход сжатого воздуха, м3/ч | Число картриджей, шт. | Масса, кг | A, мм | В, мм |
SFL-144/1 | 10 800 | 144 | 24 | 24 | 1 290 | 1 005 | 1 000 |
SFL-144/2 | 21 600 | 288 | 24 | 48 | 2 210 | 1 905 | 1 900 |
SFL-144/3 | 32 400 | 432 | 48 | 72 | 3 120 | 2 805 | 2 800 |
SFL-144/4 | 43 200 | 576 | 48 | 96 | 4 090 | 3 705 | 3 700 |
SFL-144/5 | 54 000 | 720 | 72 | 120 | 5 040 | 4 605 | 4 600 |
SFL-162/..-GV/DB
Тип фильтра | Производительность, м3/ч | Площадь фильтрующей поверхности, м2 | Расход сжатого воздуха, м3/ч | Число картриджей, шт. | Масса, кг | A, мм | В, мм |
SFL-162/1 | 12 150 | 162 | 43 | 27 | 1 370 | 1 455 | 1 450 |
SFL-162/2 | 24 300 | 324 | 86 | 54 | 2 370 | 2 805 | 2 800 |
SFL-162/3 | 36 450 | 486 | 129 | 81 | 3 420 | 4 155 | 4 150 |
SFL-162/4 | 48 600 | 648 | 129 | 108 | 4 550 | 5 505 | 5 500 |
SFL-162/5 | 60 750 | 810 | 172 | 135 | 5 620 | 6 855 | 6 850 |
SFL-216/..-GV/DB
Тип фильтра | Производительность, м3/ч | Площадь фильтрующей поверхности, м2 | Расход сжатого воздуха, м3/ч | Число картриджей, шт. | Масса, кг | A, мм | В, мм |
SFL-216/1 | 16 200 | 216 | 44 | 36 | 1 670 | 1 455 | 1 450 |
SFL-216/2 | 32 400 | 432 | 88 | 72 | 2 960 | 2 805 | 2 800 |
SFL-216/3 | 48 600 | 648 | 132 | 108 | 4 240 | 4 155 | 4 150 |
SFL-216/4 | 64 800 | 864 | 132 | 144 | 5 620 | 5 505 | 5 500 |
SFL-216/5 | 81 000 | 1 080 | 176 | 180 | 6 920 | 6 855 | 6 850 |
SFL-360/..-GV/DB
Тип фильтра | Производительность, м3/ч | Площадь фильтрующей поверхности, м2 | Расход сжатого воздуха, м3/ч | Число картриджей, шт. | Масса, кг |
SFL-360/1 | 27 000 | 360 | 68 | 60 | 2 560 |
SFL-FH
Тип фильтра | Производительность, м3/час | Площадь фильтрующей поверхности, м2 | Расход сжатого воздуха, м3/ч | Число картриджей, шт. | Масса, кг | A, мм | H мм | X | Y, мм |
SFL-36-FH | 2 700 | 36 | 24 | 6 | 330 | 900 | 1 227 | 8 | 100 |
SFL-54-FH | 4 050 | 54 | 42 | 9 | 420 | 1 350 | 1 227 | 13 | 75 |
SFL-72-FH | 5 400 | 72 | 24 | 12 | 500 | 900 | 1 947 | 8 | 100 |
SFL-108-FH | 8 100 | 108 | 24 | 18 | 680 | 900 | 2 667 | 8 | 100 |