Вы здесь
Гибридное вытяжное устройство LK-GE
Гибридное вытяжное устройство LK-GE с потенциометрическим блоком управления применяется в системах вытяжной вентиляции многоквартирных домов, складов, спортивных залов и галерей. Устройство эффективно работает в вентиляционных шахтах, где используется как естественная, так и механическая вентиляция.
Принцип работы
Устройство сочетает два режима вентиляции: при наличии температурной разницы между наружным и внутренним воздухом возникает естественная тяга, обеспечивающая движение воздушных масс. Если разности температур недостаточно, встроенный вентилятор с плавной регулировкой оборотов создает дополнительное давление для стабильной вытяжки.
Безопасность
Вентилятор не предназначен для перемещения взрывоопасных газов и смесей.
Надежность и эффективность
Независимо от времени года, температуры на улице и ветровой нагрузки, устройство поддерживает стабильное отрицательное давление в шахте, обеспечивая бесперебойную работу вытяжной системы.
Управление и монтаж
Одним из главных преимуществ модели является интегрированный блок управления с классом защиты IP54 (корпус) и IP65 (органы регулировки). Встроенный термостат автоматически переключает режимы "зима/лето", а два регулятора на корпусе позволяют настроить скорость вращения вентилятора для каждого сезона.
Устройство поставляется готовым к установке: для ввода в эксплуатацию достаточно подключить питание 220 В. Это решение особенно удобно при отсутствии тёплого чердака или возможности установки удаленного шкафа автоматики.
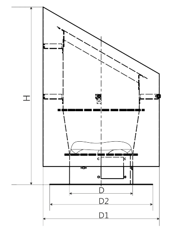
Габаритные размеры LK-GE

Технические характеристики LK-GE
| Типоразмер | Модель вентилятора | Минимальный расход воздуха, м³/ч | Максимальный расход воздуха, м³/ч | Номинальная мощность, Вт | Сила тока, А | Напряжение, В | Уровень шума, dBA |
| LK-GE 200 | W1G220 | 200 | 400 | 31 | 0.24 | 220 | 42 |
| LK-GE 250 | W3G250 | 400 | 900 | 83 | 0.72 | 220 | 42 |
| LK-GE 315 | S3G 300 | 400 | 1200 | 85 | 0.12 | 220 | 43 |
| LK-GE 400 | S3G 350 | 500 | 1400 | 73 | 0.12 | 220 | 43 |
| LK-GE 450 | S3G 400 | 1200 | 2400 | 124 | 0.3 | 220 | 49 |
| LK-GE 630 | S3G 560 | 2000 | 4500 | 400 | 0.27 | 220 | 47 |
| LK-GE 710 | S3G 630 | 3000 | 5900 | 700 | 0.31 | 220 | 49 |
| LK-GE 800 | S3G 710 | 4000 | 7200 | 825 | 0.51 | 220 | 49 |
| LK-GE 1250 | W3G800 | 5210 | 9125 | 275 | 0.5 | 380 | 46 |
| Типоразмер | Присоединительный диаметр ØD, мм | Внешний диаметр устройства ØD1, мм | Внешний диаметр фланца ØD2, мм | Высота H, мм | Масса, кг |
| LK-GE 200 | 200 | 450 | 400 | 780 | 13,4 |
| LK-GE 250 | 250 | 520 | 450 | 820 | 16,3 |
| LK-GE 315 | 315 | 580 | 515 | 890 | 19,2 |
| LK-GE 400 | 400 | 740 | 600 | 950 | 27,5 |
| LK-GE 450 | 450 | 830 | 650 | 1000 | 30,9 |
| LK-GE 630 | 630 | 1150 | 830 | 1200 | 56,3 |
| LK-GE 710 | 710 | 1300 | 910 | 1400 | 60,1 |
| LK-GE 800 | 800 | 1400 | 1000 | 1600 | 75,2 |
| LK-GE 1250 | 1250 | 2100 | 1450 | 2452 | 100 |

Обозначение при заказе




