Вы здесь
Клапаны огнезадерживающие АЗЕ 094-097.000
Клапаны огнезадерживающие взрывозащищенные (АЗЕ 094, АЗЕ 095, АЗЕ 096, АЗЕ 097) серии 5.904-54 с пределом огнестойкости 0,25 и 0,5 ч предназначены для автоматического и дистанционного блокирования распространения продуктов горения по воздуховодам, шахтам и каналам системы вентиляции и кондиционирования, а также для защиты проемов в ограждающих строительных конструкциях зданий и сооружений различного назначения.
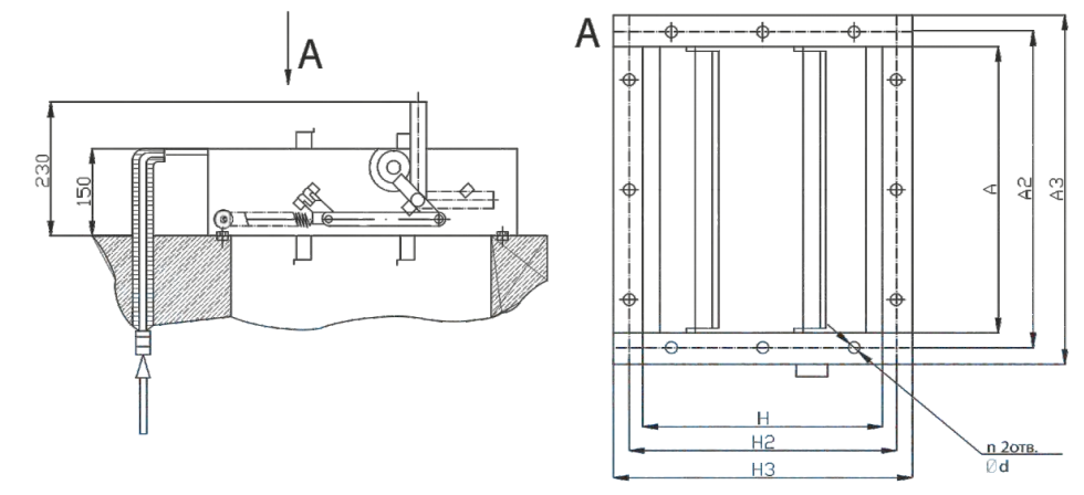
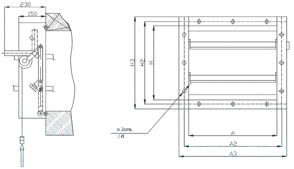
Клапаны выполнены по типовой серии 5.904-54. Размеры сечений клапанов соответствуют размерам поперечных сечений воздуховодов по положению 21 СНиП 2.04.05-91. Присоединительные размеры по фланцам заслонок соответствуют размерам по ГОСТ 26270-84 "Фланцы вентиляционные".
По условиям размещения клапаны разработаны двух типов: для установки в противопожарных стенах и перегородках (горизонтальные) и для установки в перекрытиях (вертикальные).
Конструкция клапана состоит из корпуса с лопатками коробчатой формы, установленных в подшипниковых узлах и соединенными между собой рычажной системой.
Установка клапана в открытое помещение осуществляется поворотом лопаток посредством рукоятки рычажной системы, которая фиксируется плавкой вставкой с температурой плавления 72 °С и чекой с прикрепленным к ней тросом ручного управления. Закрытие клапана происходит при повышении температуры перемещаемого воздуха свыше 72 °С и распада при этом плавкой вставки. При необходимости, закрытие клапана до повышения температуры перемещаемого воздуха свыше 72 °С можно осуществить выдергиванием чеки посредством рукоятки с тросом.
Восстановление работоспособности клапана с разрушенной (после расплавления) плавкой вставкой возможно двумя способами:
- установкой другой плавкой вставки;
- восстановлением, посредством пайки, бывшей в употреблении плавкой вставки.
Огнезащита клапана с пределом огнестойкости 0,25 ч обеспечивается плотным заполнением полостей лопаток суперсилком и заполнением упоров асбестовым картоном. Огнезащита клапана с пределом огнестойкости 0,5 ч обеспечивается дополнительным нанесением на внутренние и внешние поверхности корпуса и наружные поверхности лопаток вспучивающегося покрытия ВПМ-2 по ГОСТ 25131-82. Толщина покрытия 3,5 – 4 мм. Для предотвращения искрообразования, при работе клапана во взрывоопасных средах, детали лопатки, контактирующие при работе с поверхностью корпуса, выполнены из латуни Л63. Остальные детали выполнены из стали марки Ст3. Конструктивное исполнение взрывозащиты выполнено по рекомендациям ВНИИВЭ.
Основные размеры и характеристики клапанов огнезадерживающих взрывозащищенных.
ОБОЗНАЧЕНИЕ | Размеры, мм | Предел огнестойкости(не менее), ч |
Масса,кг | ||||||||
---|---|---|---|---|---|---|---|---|---|---|---|
Устанавливаются горизонтально |
Устанавливаются вертикально |
А | H | A1 | A2 | H1 | H2 | n | d | ||
АЗЕ 094.000-00 | АЗЕ 095.000-00 | 250 | 250 | 280 | 330 | 280 | 430 | 6 | 7 | 0,25 | 9 |
АЗЕ 094.000-01 | АЗЕ 095.000 -01 | 400 | 430 | 480 | 8 | 11,5 | |||||
АЗЕ 094.000-02 | АЗЕ 095.000 -02 | 250 | 280 | 430 | 6 | 0,5 | 10 | ||||
АЗЕ 094.000-03 | АЗЕ 095.000 -03 | 400 | 430 | 480 | 8 | 12,5 | |||||
АЗЕ 096.000-00 | АЗЕ 097.000-00 | 400 | 430 | 480 | 12 | 0,25 | 16 | ||||
АЗЕ 096.000 -01 | АЗЕ 097.000 -01 | 500 | 530 | 580 | 14 | 18 | |||||
АЗЕ 096.000 -02 | АЗЕ 097.000 -02 | 600 | 630 | 680 | 16 | 20 | |||||
АЗЕ 096.000 -03 | АЗЕ 097.000 -03 | 600 | 630 | 680 | 20 | 10 | 25 | ||||
АЗЕ 096.000 -04 | АЗЕ 097.000 -04 | 800 | 800 | 830 | 880 | 830 | 880 | 40 | |||
АЗЕ 096.000 -05 | АЗЕ 097.000 -05 | 1000 | 1000 | 1040 | 1100 | 1040 | 1100 | 24 | 56 | ||
АЗЕ 096.000 -06 | АЗЕ 097.000 -06 | 400 | 400 | 430 | 480 | 430 | 480 | 12 | 7 | 0,5 | 18 |
АЗЕ 096.000 -07 | АЗЕ 097.000 -07 | 500 | 530 | 580 | 14 | 21 | |||||
АЗЕ 096.000 -08 | АЗЕ 097.000 -08 | 600 | 630 | 680 | 16 | 23 | |||||
АЗЕ 096.000 -09 | АЗЕ 097.000 -09 | 600 | 630 | 680 | 20 | 10 | 30 | ||||
АЗЕ 096.000 -10 | АЗЕ 097.000 -10 | 800 | 800 | 830 | 880 | 830 | 880 | 47 | |||
АЗЕ 096.000 -11 | АЗЕ 097.000 -11 | 1000 | 1000 | 1040 | 1100 | 1040 | 1100 | 24 | 57 |