Вы здесь
Фильтры воздушные ССФ-К6
Высокопроизводительная секция компактных фильтров типа ССФ-К6 предназначена для установки и герметизации компактных фильтров типа ФяС-К глубиной 600 мм в системах приточной и вытяжной вентиляции, а также в системах кондиционирования воздуха различных зданий. Секция является неотъемлемой частью вентиляционной системы и обеспечивает надежную интеграцию фильтров.
Особенности конструкции
В секции размещаются компактные фильтры типа ФяС-К с габаритными размерами входного сечения 592×592 мм, глубиной 600 мм и классами очистки от G4 до F9. Конструкция секции позволяет герметично фиксировать фильтры, обеспечивая оптимальное распределение воздушного потока и предотвращая байпасные утечки.
Преимущества использования
Высокопроизводительная секция ССФ-К6 обеспечивает значительное увеличение пропускной способности воздуха — на 30% по сравнению со стандартными секциями СКФ и ССФ при сохранении тех же габаритов проходного сечения. Большая площадь фильтрации фильтров ФяС-К 600 позволяет продлить срок их службы в 2–2,5 раза, обеспечивая экономию на обслуживании и заменах фильтрующих элементов.
Устройство
Высокопроизводительная секция компактного фильтра состоит из металлического корпуса (1), имеющего на входе и выходе фланцы (2) для присоединения к фланцам вентиляционных систем, посредством болтовых соединений через уплотнительную резину. С одной из сторон корпус ССФ-К6 имеет дверь (3), которая уплотняется с корпусом за счет размещенного на них специального уплотнения и прижимов (4). Двери могут быть справа (П) или слева (Л) по ходу движения воздуха.
Внутри корпуса ярусами размещаются компактные фильтры (5), которые вдвигаются в корпус по направляющим, размещенным сверху и снизу каждого яруса. Уплотнение рамок карманных фильтров в направляющих корпуса осуществляется за счет их поджатия к резиновому уплотнению, наклеенному на одной из сторон фильтров. В одном ярусе уплотнение фильтров между собой и стенкой ССФ-К6 осуществляется с помощью резиновых уплотнений, наклеенных на вертикальные торцевые поверхности рамок ФяС-К. В обозначение фильтров ФяС-К 600 для снаряжения ССФ-К6 добавляется индекс “7”, обозначающий наличие указанных уплотнений.
Секция имеет два штуцера (6) для подключения приборов, измеряющих сопротивление фильтров, например, дифференциального манометра типа DPG-600.

Схема секции компактных фильтров
- корпус;
- 2 фланца;
- дверь;
- поворотная защелка;
- фильтр (ФяС-К);
- 2 штуцера.

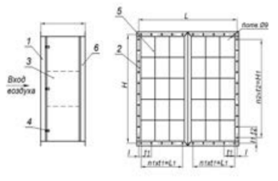
Схема секции компактного фильтра ССФ-К6 2/6х5; 2/6х6
- корпус;
- 2 фланца;
- дверь;
- поворотная защелка;
- фильтр ФяС-К;
- 2 штуцера
Габаритные размеры ССФ-К6
| Код ССФ-К6 | L | H | L1 | H1 | t1 | t2 | l | l1 | n | n1 | n2 | Масса без фильтров, кг |
| 2/1х1 | 646 | 684 | 600 | 570 | 200 | 190 | 23 | 57 | 32 | 3 | 3 | 32 |
| 2/1х2 | 646 | 1296 | 600 | 1140 | 200 | 190 | 23 | 78 | 44 | 3 | 6 | 79 |
| 2/1х3 | 646 | 1906 | 600 | 1710 | 200 | 190 | 23 | 98 | 56 | 3 | 9 | 110 |
| 2/2х1 | 1260 | 684 | 1200 | 570 | 200 | 190 | 30 | 57 | 44 | 6 | 3 | 70 |
| 2/2х2 | 1260 | 1296 | 1200 | 1140 | 200 | 190 | 30 | 78 | 56 | 6 | 6 | 108 |
| 2/2х3 | 1260 | 1906 | 1200 | 1710 | 200 | 190 | 30 | 98 | 68 | 6 | 9 | 153 |
| 2/2х4 | 1260 | 2520 | 1200 | 2280 | 200 | 190 | 30 | 120 | 80 | 6 | 12 | 200 |
| 2/3х1 | 1836 | 684 | 1800 | 570 | 200 | 190 | 18 | 57 | 56 | 9 | 3 | 97 |
| 2/3х2 | 1836 | 1296 | 1800 | 1140 | 200 | 190 | 18 | 78 | 68 | 9 | 6 | 135 |
| 2/3х3 | 1836 | 1906 | 1800 | 1710 | 200 | 190 | 18 | 98 | 80 | 9 | 9 | 123 |
| 2/3х4 | 1836 | 2520 | 1800 | 2280 | 200 | 190 | 18 | 120 | 92 | 9 | 12 | 277 |
| 2/3х5 | 1836 | 3130 | 1800 | 2850 | 200 | 190 | 18 | 140 | 104 | 9 | 15 | 308 |
| 2/4х4 | 2428 | 2520 | 2400 | 2280 | 200 | 190 | 14 | 120 | 104 | 12 | 12 | 350 |
| 2/4х5 | 2428 | 3138 | 2400 | 2850 | 200 | 190 | 30 | 120 | 116 | 12 | 15 | 500 |
| 2/6х5 | 3708 | 3130 | 1800 | 2850 | 200 | 190 | 18 | 140 | 144 | 9 | 15 | 628 |
| 2/6х6 | 3708 | 3746 | 1800 | 3420 | 200 | 190 | 17 | 163 | 224 | 9 | 18 | 700 |
Технические характеристики ССФ-К6
| Наименование | Размерность | Величина | |||||||
| Код ССФ-К6 | |||||||||
| 2/1х1 | 2/1х2 | 2/1х3 | 2/2х1 | 2/2х2 | 2/2х3 | 2/2х4 | 2/3х1 | ||
| Номинальная производительность фильтров ФяС-К 600 | м3/ч | 5000 | 10000 | 15000 | 10000 | 20000 | 30000 | 40000 | 15000 |
| Начальное сопротивление фильтров ФяС-К для классов | |||||||||
| G4 | Па | 90 | |||||||
| М5 | Па | 100 | |||||||
| М6 | 110 | ||||||||
| F7 | 130 | ||||||||
| F8 | 140 | ||||||||
| F9 | 160 | ||||||||
| Рекомендуемое конечное сопротивление для класса G4 | 250 | ||||||||
| для классов М5-F9 | 450 | ||||||||
| Наименование | Размерность | Величина | |||||||
| Код ССФ-К6 | |||||||||
| 2/3х2 | 2/3х3 | 2/3х4 | 2/3х5 | 2/4х4 | 2/4х5 | 2/6х5 | 2/6х6 | ||
| Номинальная производительность фильтров ФяС-К 600 | м3/ч | 30000 | 45000 | 60000 | 75000 | 80000 | 100000 | 150000 | 180000 |
| Начальное сопротивление фильтров ФяС-К для классов | |||||||||
| G4 | Па | 90 | |||||||
| М5 | Па | 100 | |||||||
| М6 | 110 | ||||||||
| F7 | 130 | ||||||||
| F8 | 140 | ||||||||
| F9 | 160 | ||||||||
| Рекомендуемое конечное сопротивление для класса G4 | 250 | ||||||||
| для классов М5-F9 | 450 | ||||||||



