Вы здесь
Секция фильтров типа ССФ-В для вентиляционных систем
Секция воздушных фильтров типа ССФ-В предназначена для использования в приточных и вытяжных системах вентиляции и кондиционирования воздуха в помещениях различного назначения.
Оборудование также эффективно применяется для очистки циклового воздуха, подаваемого в газовые турбины и компрессорные установки, обеспечивая надежную защиту оборудования и поддержание требуемых параметров воздушной среды.
Многоступенчатая система фильтрации
Секция ССФ-В может включать трех-, четырех- или пятиступенчатую систему очистки воздуха в зависимости от поставленных задач. Конструкция обеспечивает удаление не только механических, но и газообразных (молекулярных) загрязнений, что особенно важно для производственных и технологических объектов с повышенными требованиями к качеству воздуха. Возможность установки НЕРА-фильтров позволяет достигать высокой степени очистки, делая секцию ССФ-В подходящей для чистых производственных помещений, предприятий атомной промышленности, бактериологических лабораторий и других объектов, требующих защиты от радиоактивных аэрозолей и опасных микроорганизмов.
Компоновка и варианты оснащения
Секция ССФ-В комплектуется различными типами фильтрующих элементов в зависимости от требований заказчика. Конструкция позволяет размещать на входе пухо- и влагоотделители, фильтры грубой очистки классов G3–G4, фильтры тонкой очистки классов F5–F9, а также НЕРА-фильтры классов H10–H14. Гибкость конфигурации обеспечивает адаптацию оборудования под конкретные условия эксплуатации.
Производительность и масштабирование
Секции воздушных фильтров ССФ-В могут применяться для очистки воздуха с производительностью от 3 500 до 102 000 нм³/час в одном модуле. Для обработки больших объемов воздуха возможна разработка фильтровальных камер увеличенной пропускной способности или компоновка системы из нескольких стандартных секций. Модульная конструкция и широкие возможности комплектации делают секцию ССФ-В универсальным и надежным решением для объектов с различными требованиями к степени и объему очистки воздуха.
Устройство

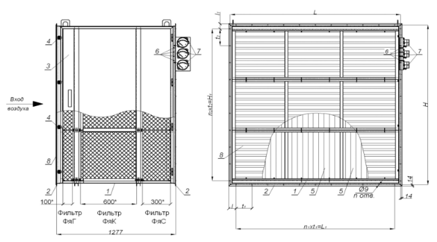
Схема секции воздушных фильтров ССФ-В3
- корпус;
- входной и выходной фланцы;
- дверь;
- прижим;
- фильтр;
- штуцер;
- дифференциальный манометр типа DPG-600 или датчик давления PS-600;
- решетка вентиляционная наружная.

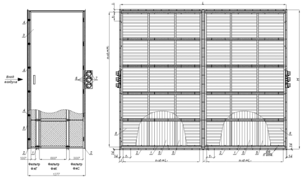
Схема секции воздушных фильтров ССФ-В3-2/6х5
- корпус;
- входной и выходной фланцы;
- дверь;
- прижим;
- фильтр;
- штуцер;
- дифференциальный манометр типа DPG-600 или датчик давления PS-600;
- решетка вентиляционная наружная.
Секция воздушных фильтров состоит из металлического корпуса (1), имеющего на входе и выходе сварные фланцы (2), для присоединения к фланцам вентиляционных систем, посредством болтовых соединений через уплотнительную резину. На боковой стороне корпуса ССФ-В имеется дверь (3), закрывающаяся с помощью прижимов (4). Герметизация соединения двери с корпусом осуществляется за счет установки специального уплотнения. Дверь может располагаться справа или слева по ходу движения воздуха по техническому заданию заказчика. Для защиты от атмосферных осадков, в случае установки на улице,на входе в секцию ССФ-В, может быть установлена наружная вентиляционная решетка (8).
Внутри корпуса ССФ-В ярусами размещаются фильтры ФяГ, ФяК и ФяС, которые вдвига-ются внутрь по направляющим. Первыми в корпус устанавливаются фильтры ФяС, с наклеенным по контуру резиновым уплотнением. После заполнения всех ярусов фильтры ФяС прижимаются эксцентриками.
Далее размещаются фильтры ФяГ и ФяК, с уплотнениями на вертикальных торцах, начи-ная с верхнего яруса. После заполнения ярусов фильтры ФяК и ФяГ одновременно прижимаются эксцентриками.
Уплотнение между боковой стенкой корпуса и фильтрами осуществляется с помощью ре-зиновых пластин, наклеенных на вертикальную стенку ССФ-В.
Секция воздушных фильтров имеет четыре штуцера (6) для подключения приборов, из-меряющих аэродинамическое сопротивление фильтров, например дифференциального мано-метра типа DPG-600 или датчика давления PS-600 (7). Электрический сигнал от датчика давления может быть передан на систему световой или звуковой сигнализации, а также на АСУ вентиляционной системы.
Контроль аэродинамического сопротивления фильтров проводится в четырех зонах секции:
- на входе в секцию;
- между фильтрами ФяГ и ФяК;
- между фильтрами ФяК и ФяС;
- в зоне чистого воздуха.
Габаритные размеры ССФ-В
| Код ССФ-Т3 | L | H | L1 | H1 | t1 | t2 | l | l1 | n | n1 | n2 | Масса без фильтров, кг |
| 2/1х1 | 643 | 694 | 510 | 600 | 170 | 200 | 80 | 61 | 32 | 3 | 3 | 102 |
| 2/1х2 | 643 | 1294 | 510 | 1200 | 170 | 200 | 80 | 61 | 44 | 3 | 6 | 143 |
| 2/1х3 | 643 | 1894 | 510 | 1800 | 170 | 200 | 80 | 61 | 56 | 3 | 9 | 194 |
| 2/1х4 | 643 | 2494 | 510 | 2400 | 170 | 200 | 80 | 61 | 68 | 3 | 12 | 228 |
| 2/1х5 | 643 | 3094 | 510 | 3000 | 170 | 200 | 80 | 61 | 80 | 3 | 15 | 269 |
| 2/2х1 | 1235 | 694 | 1190 | 600 | 170 | 200 | 37 | 61 | 48 | 7 | 3 | 140 |
| 2/2х2 | 1235 | 1294 | 1190 | 1200 | 170 | 200 | 37 | 61 | 60 | 7 | 6 | 201 |
| 2/2х3 | 1235 | 1894 | 1190 | 1800 | 170 | 200 | 37 | 61 | 72 | 7 | 9 | 257 |
| 2/3х1 | 1827 | 694 | 1700 | 600 | 170 | 200 | 78 | 61 | 60 | 10 | 3 | 180 |
| 2/3х2 | 1827 | 1294 | 1700 | 1200 | 170 | 200 | 78 | 61 | 72 | 10 | 6 | 250 |
| 2/3х3 | 1827 | 1894 | 1700 | 1800 | 170 | 200 | 78 | 61 | 84 | 10 | 9 | 318 |
| 2/3х4 | 1827 | 2494 | 1700 | 2400 | 170 | 200 | 78 | 61 | 96 | 10 | 12 | 366 |
| 2/3х5 | 1827 | 3094 | 1700 | 3000 | 170 | 200 | 78 | 61 | 108 | 10 | 15 | 405 |
| 2/6х5 | 3682 | 3094 | 1700 | 3000 | 170 | 200 | 78 | 61 | 216 | 10 | 15 | 830 |
Технические характеристики ССФ-В
| Наименование | Размерность | Величина Код ССФ-В3-2/ | ||||||
| 1х1 | 1х2 | 1х3 | 1х4 | 1х5 | 2х1 | 2х2 | ||
| Номинальная производительность: для ФяС-F, для ФяС-К | нм3/ч | 3500 | 7000 | 10500 | 14000 | 17500 | 7000 | 14000 |
| для ФяС (НEPA) | нм3/ч | 1900 | 3800 | 5700 | 7600 | 9500 | 3800 | 7600 |
| Количество фильтров ФяС, ФяС-F и ФяС-С, ФяС-F-МП, ФяС-МП | шт. | 1 | 2 | 3 | 4 | 5 | 2 | 4 |
| Рекомендуемое конечное сопротивление для классов: для G3-G4 для F6-F9 для H10-H11 | Па | 250 450-600 600 | ||||||
| Наименование | Размерность | Величина Код ССФ-В3-2/ | ||||||
| 2х3 | 3х1 | 3х2 | 3х3 | 3х4 | 3х5 | 6х5 | ||
| Номинальная производительность: для ФяС-F, для ФяС-К | нм3/ч | 21000 | 10500 | 21000 | 31500 | 42000 | 52000 | 102000 |
| для ФяС (НEPA) | нм3/ч | 11400 | 5700 | 11400 | 17100 | 22800 | 28500 | 57000 |
| Количество фильтров ФяС, ФяС-F и ФяС-С, ФяС-F-МП, ФяС-МП | шт. | 6 | 3 | 6 | 9 | 12 | 15 | 30 |
| Рекомендуемое конечное сопротивление для классов: для G3-G4 для F6-F9 для H10-H11 | Па | 250 450-600 600 | ||||||



