Вы здесь
Секция фильтровальная ФР 1-3
Воздушные фильтры ФР 1–3 используются для очистки поступающего в кондиционер воздуха от атмосферной пыли. Они эффективны при среднегодовом содержании пыли в воздухе до 1 мг/м³ и допускают кратковременное повышение запылённости до 10 мг/м³.
Особенности применения
Данные фильтры не предназначены для удаления волокнистой пыли из воздушного потока. Они используются в системах вентиляции и кондиционирования в качестве одного из этапов воздушной очистки.
Изготовление
Фильтрующие секции производятся согласно техническим условиям ТУ 28.25.14-022-11865045-2023.
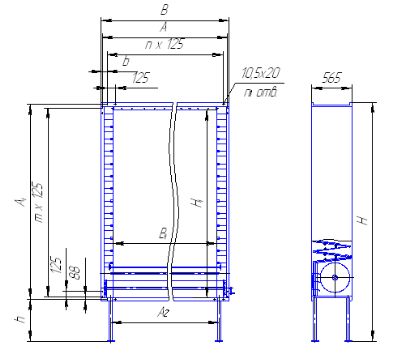
Габаритные размеры ФР 1-3
Обозначение | Размеры, мм | Расход воздуха, тыс. м3/ч | Масса, кг | ||||||||||||
А | А1 | А2 | В | В1 | Н | Н1 | b | h | n | n1 | m | С ручным приводом | С электроприводом | ||
ФР1–3–01 | 876 | 1301 | 625 | 900 | 588 | 1745 | 1250 | 63 | 432 | 6 | 30 | 9 | 10 | 80 | - |
– 02 | 1703 | 1250 | 1727 | 1420 | 39 | 13 | 44 | 20 | 112 | 126 | |||||
– 03 | 2051 | 2640 | 2000 | 575 | 56 | 15 | 31,5 | 148 | 162 | ||||||
– 04 | 2551 | 3140 | 2500 | 64 | 19 | 40 | 178 | 192 | |||||||
– 06 | 3453 | 2051 | 1500 | 3477 | 3200 | 2640 | 2000 | 27 | 84 | 15 | 63 | 241 | 255 | ||
– 08 | 2551 | 3140 | 2500 | 92 | 19 | 80 | 316 | 329 | |||||||
– 12 | 4051 | 4640 | 4000 | 120 | 31 | 125 | 528 | 554 |
- ФР 1 – 3 – 01 ÷ ФР 1 – 3 – 04 – состоят из одной секции.
- ФР 1 – 3 – 06 ÷ ФР 1 – 3 – 08 – состоят из двух секций.
- ФР 1 – 3 – 01 – изготавливаются только с ручным приводом, для сматывания фильтровальной ткани.
- ФР 1 – 3 – 02 ÷ ФР 1 – 3 – 12 – могут изготавливаться как с ручным приводом, так и с электроприводом, для сматывания фильтровальной ткани.
- Электропривод – мотор-редуктор тип МЧ40.
- Фильтровальная ткань типа ФРНК-ПГ.