Вы здесь
Секция воздушных фильтров типа ССФ-Т
Секция воздушных фильтров типа ССФ-Т является ключевым компонентом многоступенчатых систем очистки воздуха. Она предназначена для эффективной фильтрации циклового воздуха, который впоследствии подается в воздухоочистительные устройства (ВОУ, КВОУ) газотурбинных и компрессорных установок. Благодаря своей конструкции и высокой производительности, секции ССФ-Т обеспечивают надежную защиту оборудования от пылевых загрязнений, способствуя поддержанию его стабильной работы и продлению срока службы.
Гибкость применения и масштабирование
Секции ССФ-Т обеспечивают широкие возможности для применения в газовых турбинах различной мощности. Их производительность по воздуху в единичном модуле варьируется от 3500 до 102 000 нм³/час, что позволяет подобрать оптимальное решение для объектов любого масштаба. Для очистки больших объемов воздуха предусмотрены следующие решения:
- Разработка фильтровальных камер повышенной пропускной способности;
- Компоновка ВОУ/КВОУ из нескольких стандартных секций ССФ-Т.
В модульной конфигурации ССФ-Т выступает в роли фильтрующего блока, способного обеспечить высокий уровень чистоты воздуха, вплоть до финишной фильтрации с использованием НЕРА-фильтров классов Н11-Н12. Это позволяет достичь требуемых параметров очистки даже в условиях повышенных требований к качеству воздуха.
Индивидуальные схемы фильтрации
Секция может быть укомплектована различными комбинациями фильтрующих элементов в соответствии с техническим заданием заказчика. Такой подход позволяет адаптировать систему под конкретные условия эксплуатации и уровень запыленности окружающей среды. В зависимости от требований, возможна установка:
- Фильтров тонкой очистки классов F6–F9;
- Фильтров грубой очистки классов G3–G4;
- Влагоуловителей и пухоуловителей.
Аналогичные решения успешно применяются и для компрессорных установок, гарантируя необходимый уровень чистоты воздуха, подаваемого к компрессору, с учетом местной запыленности. Индивидуальный подход к комплектации секций позволяет максимально эффективно использовать оборудование в любых климатических и производственных условиях.
Эффективная трехступенчатая система
Оптимальной конфигурацией является трехступенчатая схема фильтрации, которая использует карманный предфильтр типа ФяК глубиной 600 мм. Это конструктивное решение обладает значительным преимуществом: увеличенная глубина фильтра в 2,5–3 раза повышает его ресурс работы по сравнению с широко распространенными карманными фильтрами глубиной 300 или 360 мм. Такая особенность позволяет значительно снизить затраты на обслуживание и повысить надежность всей системы, минимизируя простои оборудования, связанные с заменой фильтрующих элементов. Трехступенчатая система фильтрации на базе секций ССФ-Т является надежным и экономически эффективным решением для объектов энергетики и промышленности.

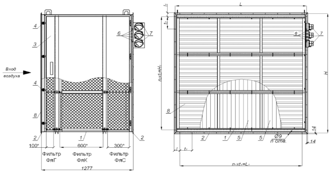
Схема секции воздушных фильтров ССФ-Т3
- корпус;
- входной и выходной фланцы;
- дверь;
- прижим;
- фильтр;
- штуцер;
- дифференциальный манометр типа DPG-600 или датчик давления PS-600;
- решетка вентиляционная наружная.

Схема секции воздушных фильтров ССФ-Т3-2-2/6х5
- корпус;
- входной и выходной фланцы;
- дверь;
- прижим;
- фильтр;
- штуцер;
- дифференциальный манометр типа DPG-600 или датчик давления PS-600;
- решетка вентиляционная наружная.
Устройство
Секция воздушных фильтров состоит из металлического корпуса (1), имеющего на входе и выходе фланцы (2), для присоединения к фланцам переходных камер, диффузоров и конфузоров, посредством болтовых соединений через уплотнительную резину. На боковой стороне корпуса ССФ-Т имеется дверь (3), закрывающаяся с помощью прижимов (4). Герметизация соединения двери с корпусом осуществляется за счет установки специального уплотнения. Дверь может располагаться справа или слева по ходу движения воздуха по техническому заданию Заказчика. Для защиты от атмосферных осадков, на входе в секцию ССФ-Т, может быть установлена наружная вентиляционная решетка (8).
Внутри корпуса ССФ-Т ярусами размещаются фильтры ФяГ, ФяК и ФяС, которые вдвига-ются внутрь по направляющим. Первыми в корпус устанавливаются фильтры ФяС, с наклеенным по контуру резиновым уплотнением. После заполнения всех ярусов фильтры ФяС прижимаются эксцентриками.
Далее размещаются фильтры ФяГ и ФяК, с уплотнениями на вертикальных торцах, начиная с верхнего яруса. После заполнения ярусов фильтры ФяК и ФяГ одновременно прижимаются эксцентриками.
Уплотнение между боковой стенкой корпуса и фильтрами осуществляется с помощью резиновых пластин, наклеенных на вертикальную стенку ССФ-Т.
Секция воздушных фильтров имеет четыре штуцера (6) для подключения приборов, измеряющих аэродинамическое сопротивление фильтров, например, дифференциального манометра типа DPG-600 или датчика давления PS-600 (7). Электрический сигнал от датчика давления PS-600 может быть передан на систему световой или звуковой сигнализации, а также пульт управления газовой турбиной. Контроль аэродинамического сопротивления фильтров проводится в четырех зонах секции:
- на входе в секцию;
- между фильтрами ФяГ и ФяК;
- между фильтрами ФяК и ФяС;
- в зоне чистого воздуха.
Предлагаемая система фильтрации является системой накопительного типа, и поэтому в процессе работы происходит накопление пыли в фильтрах, что приводит к росту аэродинамиче-ского сопротивления. При достижении заданного конечного сопротивления, контролируемого манометром DPG-600 или датчиком давления PS-600, загрязненные фильтры заменяются новы-ми. На рис. 2 показана секция воздушных фильтров ССФ-Т3-2-2/6х5, состоящая из 2-х секций ССФ-Т3-2- 2/3х5, соединяемых при монтаже. Обслуживание секции и замена фильтров осущест-вляется через двери, расположенные с двух сторон. Манометры и фильтры типа ФяГ, ФяК и ФяС для секции ССФ-Т поставляются отдельно и устанавливаются после монтажа секции.
Габаритные размеры ССФ-Т
| Код ССФ | L | H | L1 | H1 | t1 |
| 2/1х1 | 643 | 694 | 510 | 600 | 170 |
| 2/1х2 | 643 | 1294 | 510 | 1200 | 170 |
| 2/1х3 | 643 | 1894 | 510 | 1800 | 170 |
| 2/1х4 | 643 | 2494 | 510 | 2400 | 170 |
| 2/1х5 | 643 | 3094 | 510 | 3000 | 170 |
| 2/2х1 | 1235 | 694 | 1190 | 600 | 170 |
| 2/2х2 | 1235 | 1294 | 1190 | 1200 | 170 |
| 2/2х3 | 1235 | 1894 | 1190 | 1800 | 170 |
| 2/3х1 | 1827 | 694 | 1700 | 600 | 170 |
| 2/3х2 | 1827 | 1294 | 1700 | 1200 | 170 |
| 2/3х3 | 1827 | 1894 | 1700 | 1800 | 170 |
| 2/3х4 | 1827 | 2494 | 1700 | 2400 | 170 |
| 2/3х5 | 1827 | 3094 | 1700 | 3000 | 170 |
| 2/6х5 | 3682 | 3094 | 1700 | 3000 | 170 |
| Код ССФ | t2 | l | l1 | n | n1 | n2 | Масса без фильтров, кг |
| 2/1х1 | 200 | 80 | 61 | 32 | 3 | 3 | 102 |
| 2/1х2 | 200 | 80 | 61 | 44 | 3 | 6 | 143 |
| 2/1х3 | 200 | 80 | 61 | 56 | 3 | 9 | 194 |
| 2/1х4 | 200 | 80 | 61 | 68 | 3 | 12 | 228 |
| 2/1х5 | 200 | 80 | 61 | 80 | 3 | 15 | 269 |
| 2/2х1 | 200 | 37 | 61 | 48 | 7 | 3 | 140 |
| 2/2х2 | 200 | 37 | 61 | 60 | 7 | 6 | 201 |
| 2/2х3 | 200 | 37 | 61 | 72 | 7 | 9 | 257 |
| 2/3х1 | 200 | 78 | 61 | 60 | 10 | 3 | 180 |
| 2/3х2 | 200 | 78 | 61 | 72 | 10 | 6 | 250 |
| 2/3х3 | 200 | 78 | 61 | 84 | 10 | 9 | 318 |
| 2/3х4 | 200 | 78 | 61 | 96 | 10 | 12 | 366 |
| 2/3х5 | 200 | 78 | 61 | 108 | 10 | 15 | 405 |
| 2/6х5 | 200 | 78 | 61 | 216 | 10 | 15 | 830 |
Технические характеристики ССФ-Т
| Наименование | Размерность | Величина Код ССФ-Т3-2-2/ | ||||||
| 1х1 | 1х2 | 1х3 | 1х4 | 1х5 | 2х1 | 2х2 | ||
| Номинальная производительность для ФяС-F, для ФяС-К | нм3/ч | 3500 | 7000 | 10500 | 14000 | 17500 | 7000 | 14000 |
| для ФяС (НEPA) | нм3/ч | 1900 | 3800 | 5700 | 7600 | 9500 | 3800 | 7600 |
| Количество фильтров ФяС, ФяС-F и ФяС-С, ФяС-F-МП, ФяС-МП | шт. | 1 | 2 | 3 | 4 | 5 | 2 | 4 |
| Рекомендуемое конечное сопротивление для классов: для G3-G4 для F6-F9 для H10-H11 | ||||||||
| для G3-G4 | Па | 250 | ||||||
| для F6-F9 | 450-600 | |||||||
| для H10-H11 | 600 | |||||||
| Наименование | Размерность | Величина Код ССФ-Т3-2-2/ | ||||||
| 2х3 | 3х1 | 3х2 | 3х3 | 3х4 | 3х5 | 6х5 | ||
| Номинальная производительность для ФяС-F, для ФяС-К | нм3/ч | 21000 | 10500 | 21000 | 31500 | 42000 | 52000 | 102000 |
| для ФяС (НEPA) | нм3/ч | 11400 | 5700 | 11400 | 17100 | 22800 | 28500 | 57000 |
| Количество фильтров ФяС, ФяС-F и ФяС-С, ФяС-F-МП, ФяС-МП | шт. | 6 | 3 | 6 | 9 | 12 | 15 | 30 |
| Рекомендуемое конечное сопротивление для классов: для G3-G4 для F6-F9 для H10-H11 | ||||||||
| для G3-G4 | Па | 250 | ||||||
| для F6-F9 | 450-600 | |||||||
| для H10-H11 | 600 | |||||||



