Вы здесь
Заслонки воздушные унифицированные АЗД 132.000
Предприятие «Макс Аэро-Техно» реализует со склада по приемлемым ценам искробезопасные заслонки АЗД и клапаны АЗЕ. Предлагаем широкий спектр взрывозащищенных изделий всех доступных типоразмеров для любых вентиляционных систем. Представленная продукция сопровождается официальным разрешением на эксплуатацию, выданным Проматомнадзором Республики Беларусь.
Применение заслонок воздушных ЗД
Заслонки АЗД устанавливаются в вентиляционные, кондиционирующие, отопительные, санитарно-технические и другие воздушные системы с рабочим давлением до 1000 паскаль (или 100 кгс/м2) и содержанием пыли, а также других твердых примесей в количестве до 100 мг/м3.
Изделия предназначены для регулировки объема воздуха и невзрывоопасных воздушных смесей, не содержащих липких и волокнистых веществ (при условии, что агрессивность воздушных масс по отношению к углеродистым сталям не выше агрессивности обычного воздуха температурой до 80 °С).
Во время работы воздушная заслонка АЗД изменяет площадь сечения воздуховода, что позволяет регулировать объем и массу перемещаемого воздуха. Для этого используется специальная лопатка, которая поворачивается с помощью пневматического, электрического механизма или вручную.
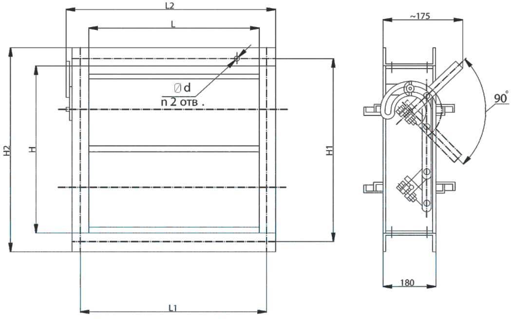
Самой распространенной моделью унифицированных заслонок является АЗД 190. Она имеет прямоугольное сечение. Корпус сделан из тонколистовой стали. На нем располагается два фланца для крепления изделия к воздуховодам. Также к корпусу присоединяется электропривод Belimo LM230.
Предлагаемая шиберная заслонка может поставляться в искробезопасной (взрывозащищенной) комплектации. Изделие покрывается предохраняющей его от искр лентой, которая в свою очередь обрабатывается огнезащитной краской.
Основные размеры и характеристики


Клапан обратный поворотный во взрывозащищенном исполнении устанавливается в вентиляционные системы на взрывоопасных производствах. Допускается его использование в воздуховодах, по которым перемещаются взрывоопасные воздушные смеси разных категорий и групп, описанные в классификации ГОСТ 12.1.011.Клапан искробезопасный АЗЕ
Однако клапан взрывозащищенный искробезопасный нельзя применять в вентиляционных системах, где под избыточным давлением происходит перемещение раскаленных газовоздушных смесей от технологических установок, температура которых превышает точку воспламенения материала изделия.
Клапан искробезопасный АЗЕ стоит из корпуса с подшипниками, внутри которого на полуосях расположено полотно. Его ось вращения не совпадает с осью симметрии, поэтому при воздействии потока воздуха полотно поворачивается и открывает клапан. Когда воздушный поток прекращается, клапан возвращается в исходное положение. Соседствующие детали выполнены из стали и латуни, поскольку эти металлы при соприкосновении не высекают искр.
Назад к списку



